Land
Site At 38 Islandranny Road
Bushmills, BT57 8YE
offers over
£64,500
- Status For Sale
- Property Type Land
-
Stamp Duty
Higher amount applies when purchasing as buy to let or as an additional property£0 / £3,225*
Key Features & Description
Approx 7 Miles From Giants Causeway
Rural Location
Drawings Available For Contemporary Dwelling
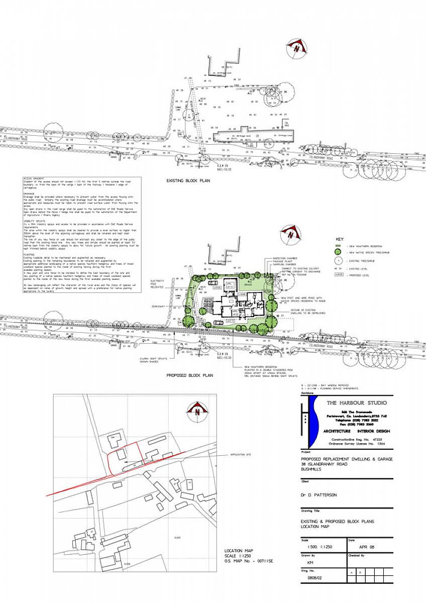
Full Planning Application No: E/2008/0190/RM
Description
Set along one of the most breathtaking stretches of coastline in Northern Ireland, this exceptional site on the North Antrim Coast presents a rare opportunity to create a striking modern chalet bungalow in an area of outstanding natural beauty. With full planning permission (E/2008/0190/RM) already granted, the foundations are in place for a thoughtfully designed home that maximises both space and the spectacular surroundings. Located approximately 7 miles from the world renowned Giants Causeway and approximately 3.3 miles from Whitepark Bay, the site enjoys a truly enviable and rural location with rolling countryside and a peaceful environment coming together. The location offers a perfect balance of tranquillity and accessibility, making it ideal for a permanent residence, holiday home, or investment property. The approved outline planning permission allows for a contemporary chalet style bungalow, offering flexibility for prospective buyers to tailor the design to their own vision, subject to the necessary consents. The elevated nature of the site provides the potential for stunning outlooks, with the ever-changing coastal scenery forming a captivating backdrop throughout the year. The surrounding area is rich in natural heritage and leisure opportunities, with coastal walks, renowned golf courses, and charming villages all within easy reach. Excellent road links ensure convenient access to nearby towns and amenities, while still retaining a sense of seclusion and escape. Opportunities of this calibre, in such a prestigious and iconic location, are seldom available. Early viewing is highly recommended to fully appreciate the potential and setting on offer.
Set along one of the most breathtaking stretches of coastline in Northern Ireland, this exceptional site on the North Antrim Coast presents a rare opportunity to create a striking modern chalet bungalow in an area of outstanding natural beauty. With full planning permission (E/2008/0190/RM) already granted, the foundations are in place for a thoughtfully designed home that maximises both space and the spectacular surroundings. Located approximately 7 miles from the world renowned Giants Causeway and approximately 3.3 miles from Whitepark Bay, the site enjoys a truly enviable and rural location with rolling countryside and a peaceful environment coming together. The location offers a perfect balance of tranquillity and accessibility, making it ideal for a permanent residence, holiday home, or investment property. The approved outline planning permission allows for a contemporary chalet style bungalow, offering flexibility for prospective buyers to tailor the design to their own vision, subject to the necessary consents. The elevated nature of the site provides the potential for stunning outlooks, with the ever-changing coastal scenery forming a captivating backdrop throughout the year. The surrounding area is rich in natural heritage and leisure opportunities, with coastal walks, renowned golf courses, and charming villages all within easy reach. Excellent road links ensure convenient access to nearby towns and amenities, while still retaining a sense of seclusion and escape. Opportunities of this calibre, in such a prestigious and iconic location, are seldom available. Early viewing is highly recommended to fully appreciate the potential and setting on offer.
Property Location
Mortgage Calculator
Directions
Driving through the village of Bushmills on Main Street, take your next left after the Bushmills Distillery onto the Straid Road. Travel out this road for approximately 4.1 miles until you come across the Moycraig Road. Turn right onto the Moycraig Road and travel past Toberkeigh Presbyterian Church. Take your next right onto the Islandranny Road and No 38 will be on your right hand side approximately 0.4 miles down this road.
Contact Agent
Contact Armstrong Gordon & Co
Request More Information
Requesting Info about...
Site At 38 Islandranny Road, Bushmills, BT57 8YE
By registering your interest, you acknowledge our Privacy Policy
By registering your interest, you acknowledge our Privacy Policy