12 Caherty Hill
Broughshane, BT42 4BD

Description
This 3 bedroom semi-detached home is positioned within the popular Caherty Hill development looking onto landscaped communal gardens to front and located within a short stroll to the excellent amenities Broughshane Village has to offer.
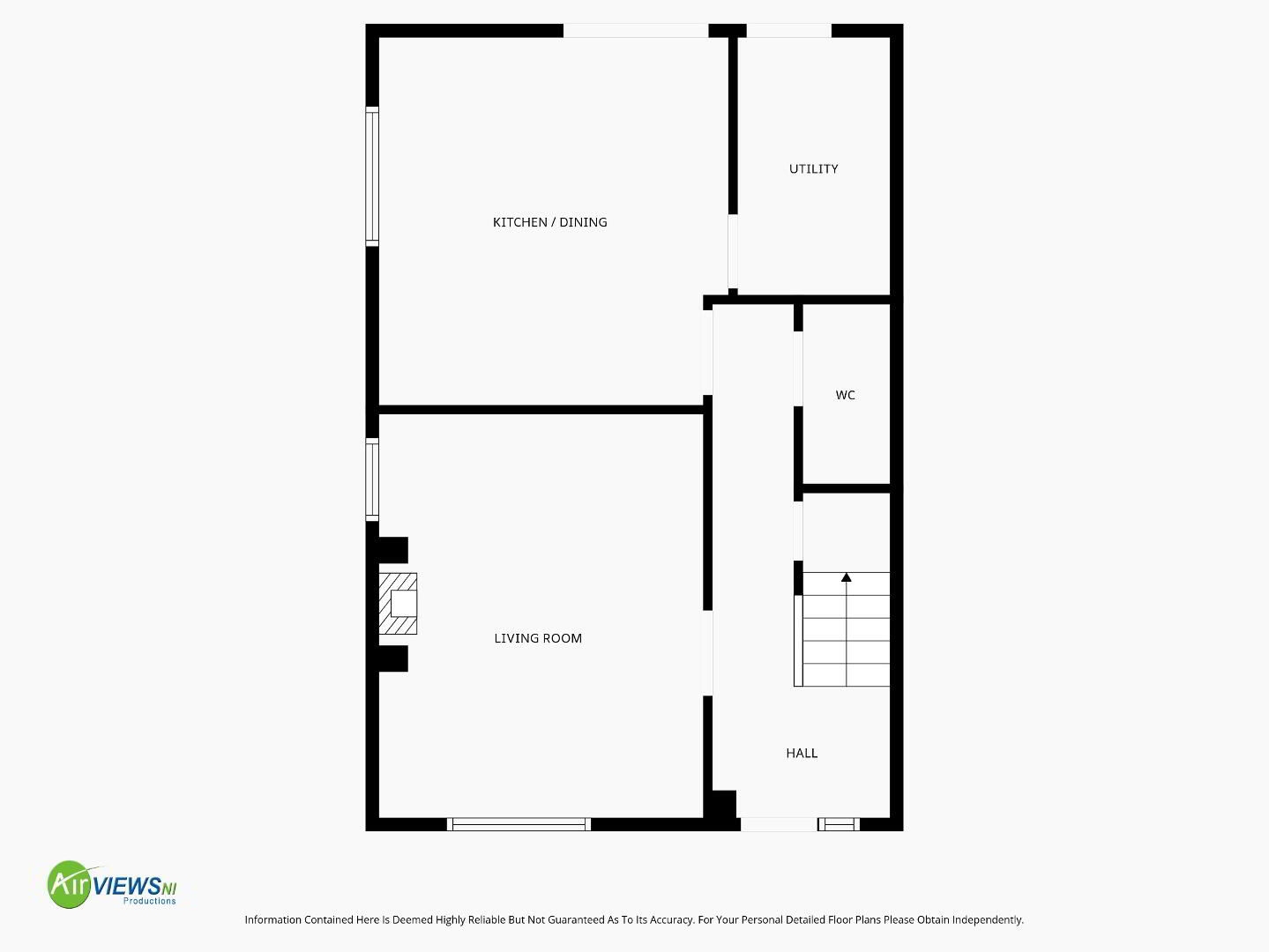
Internally, to the ground floor of this beautifully presented property features a hallway with cloaks/wc, lounge with inglenook style fireplace and multi fuel stove, a modern fitted kitchen/diner complete with a range of integrated appliances and a utility room also with an excellent level of fitted units, one which houses the gas boiler.
The first floor comprises of a luxury four piece family bathroom suite and three generous bedrooms with the master bedroom benefitting from an ensuite shower room.
Externally, the front garden is laid in lawn with a tarmac driveway to side providing ample off street parking leading to an enclosed rear garden with patio area and remainder of gardens laid in lawn.
Hall:
Composite double glazed door to front with triple glazed side window, radiator, laminated wooden flooring, understairs cupboard, staircase to first floor
Lounge:
14’11 x 12’7 (4.544m x 3.846m)
uPVC triple glazed windows to front and side, radiator, multi fuel stove, set on granite hearth, wooden panelling to one and a half walls, TV point
Ground Floor wc:
Low flush wc, wash hand basin with mixer tap set on vanity unit, part tiled walls, radiator, tiled flooring
Kitchen/Diner:
13’9 x 13’7 (4.197m x 4.151m)
Range of modern eye and low level units with under unit lighting, integrated dishwasher, fridge freezer, 4 ring gas hob, stainless steel and glass extractor hood, electric oven, part tiled walls, work surface with matching upstand, Blanco 1 1/4 sink with mixer tap, tiled flooring, radiator, recessed ceiling lighting, uPVC triple glazed window to side, uPVC triple glazed French doors to rear, door into utility room
Utility Room:
9’8 x 5’9 (2.948m x 1.763m)
Modern eye and low level units, work surface with matching upstand, stainless steel sink with mixer tap, plumbed for washing machine, space for tumble dryer, tiled flooring, radiator, gas boiler housed in cupboard, composite double glazed door to rear
Landing:
Built in storage cupboard, access to floored roof via Slingsby ladder
Bedroom 1:
16’ x 9’8 (4.870m x 2.941m)
uPVC triple glazed windows to front, radiator, door to ensuite
Ensuite:
Quadrant shower cubicle with rainfall and handheld thermostatic shower, wash hand basin with mixer tap set on vanity unit, low flush wc, part tiled walls, tiled flooring, radiator, uPVC triple glazed window to front, recessed ceiling lighting
Bedroom 2:
11’7 x 11’2 (3.528m x 3.399m)
uPVC triple glazed windows to rear, radiator
Bedroom 3:
11’2 x 9’7 (3.398m x 2.918m)
uPVC triple glazed window to rear, radiator, panelling to one wall
Bathroom:
Luxury 4 piece suite comprising of freestanding bath, wash hand basin with mixer tap set on vanity unit, low flush wc, quadrant shower cubicle with rainfall and hand held thermostatic shower, part tiled walls, tiled flooring, chrome radiator towel rail, recessed ceiling lighting, uPVC triple glazed window to side
ADDITIONAL FEATURES
Tarmac driveway to side
Enclosed rear garden with patio area and gardens laid in lawn
Outside lighting and tap
Gas central heating
Triple glazed windows
Composite front and rear doors
Ground floor wc
Luxury four piece bathroom suite
Modern kitchen/diner with integrated appliances
Lounge with multi fuel stove
Chain free sale
Broadband Speed Availability
Potential Speeds for 12 Caherty Hill
Property Location

Mortgage Calculator
Contact Agent

Contact Lynn and Brewster

By registering your interest, you acknowledge our Privacy Policy