Contact Agent

Contact Simon Brien (North Belfast)

Contact Simon Brien (North Belfast)

4 Bed Terrace House

11 Wolseley Street

Belfast, County Antrim, BT7 1LG

price £225,000
  • Status For Sale
  • Property Type Terrace
  • Bedrooms 4
  • Receptions 2
  • Bathrooms 2
  • EPC Rating F30 / C77
  • Stamp Duty
    Higher amount applies when purchasing as buy to let or as an additional property
    £2,000 / £13,250*
  • Typical Mortgage
    Click price to use our mortgage calculator
EPC Rating

Key Features & Description

  • Attractive red-brick terrace
  • Partial uPVC double glazing
  • Economy 7 heating
  • Investment opportunity consisting of a one-bedroom & two-bedroom flats
  • Situated in popular Botanic area in Belfast
  • Generating a total income of £17,820 per annum
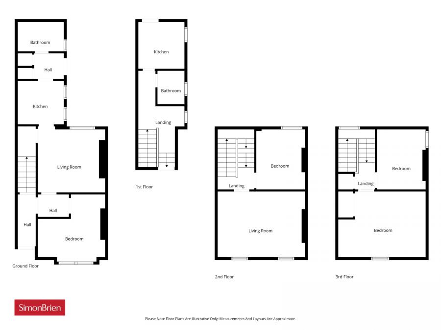
  • Description
    Located in the popular Botanic area of Belfast, the property is well placed to local amenities and is within comfortable walking distance of Belfast City Centre and Queen's University.

    The property consists of a one-bedroom ground floor flat and a three-bedroom flat on the first and second floor and acheives a cumulative rent of £17,820 per annum.

    Viewing by appointment through our South Belfast office on 028 9066 8888.

    Rooms

    Flat One Double Glazed, Economy seven heating.
    Bedroom 13'5" X 11'1" (4.10m X 3.39m)
    Living Room 11'6" X 10'11" (3.50m X 3.33m)
    Kitchen 7'10" X 7'6" (2.39m X 2.28m) High and low level units with electric oven, extractor hood, stainless steel sink unit and mixer tap.
    Bathroom Panelled, tiled floor and corner shower.
    Flat 2 Double Glazed, Economy seven heating.
    Kitchen and Fire Escape 8'5" X 8'3" (2.56m X 2.52m) High and low level units, stainless steel sink with mixer tap, electric oven and extractor hood.
    Living Room 15'5" X 12'0" (4.70m X 3.66m)
    Bedroom One 10'11" X 8'11" (3.32m X 2.71m)
    Second Floor
    Hot Press
    Bedroom Two 16'8" X 12'1" (5.07m X 3.68m) Built in wardrobe.
    Bedroom Three 11'0" X 8'9" (3.35m X 2.66m)

    Property Location

    Show Map

    Mortgage Calculator

    Disclaimer: The following calculations act as a guide only, and are based on a typical repayment mortgage model. Financial decisions should not be made based on these calculations and accuracy is not guaranteed. Always seek professional advice before making any financial decisions.

    Contact Agent

    Contact Simon Brien (North Belfast)

    Contact Simon Brien (North Belfast)

    Request More Information
    Requesting Info about...
    11 Wolseley Street, Belfast, County Antrim, BT7 1LG 11 Wolseley Street, Belfast, County Antrim, BT7 1LG

    By registering your interest, you acknowledge our Privacy Policy
    Ask Holmes
    Ask Holmes
    Let's find your next home

    Are you sure you want to reset the chat?

    Checking API...