4 Bed Semi-Detached House
4 Bloomfield Park West
Belfast, County Antrim, BT5 5JX
price
£375,000
Key Features & Description
Description
Conveniently situated in the heart of East Belfast, this deceptively spacious semi-detached home is perfectly suited to the needs of a growing family.
Beautifully extended and thoughtfully modernised, the property has been finished to an exceptional standard throughout, allowing the new owners to simply move in and enjoy. Offering a wealth of stylish touches, the well-proportioned accommodation is arranged over two floors and provides excellent flexibility for modern family living.
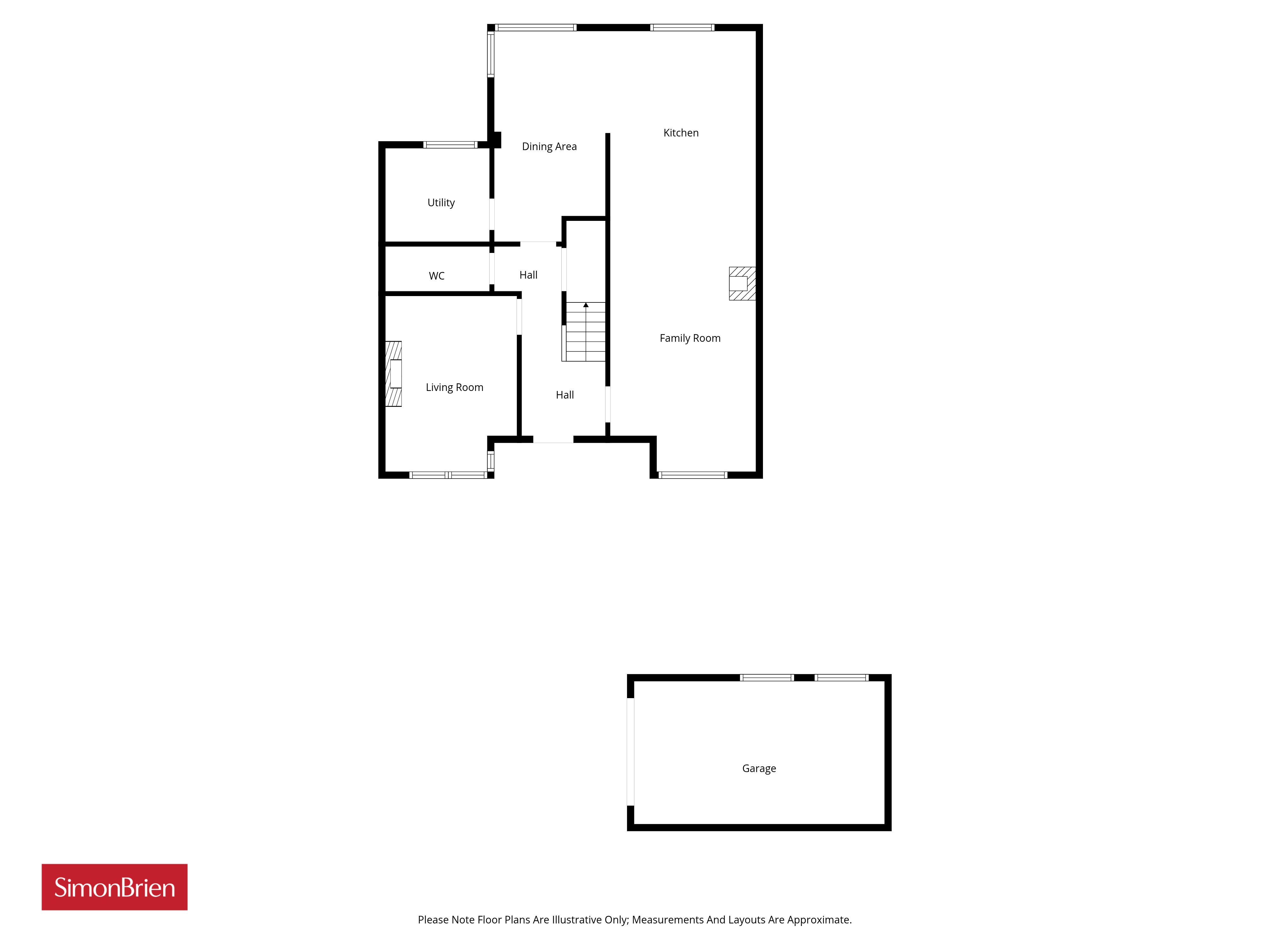
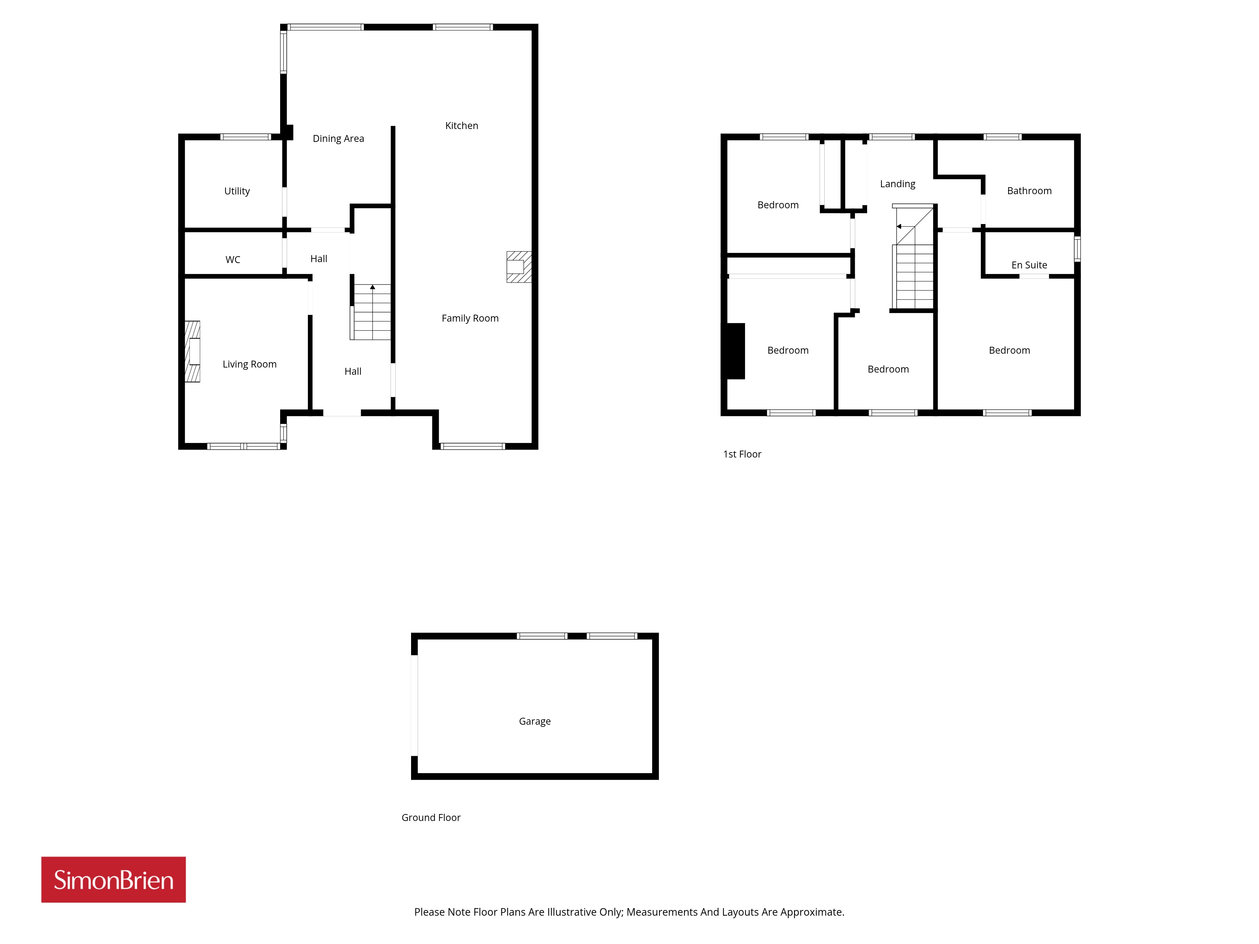
At the heart of the home is a superb open-plan living space, seamlessly connecting the living room, kitchen, and dining area-ideal for both everyday living and entertaining. Additional living areas include a comfortable family room and a practical utility room, enhancing the home´s functionality.
Upstairs, there are four generous bedrooms, including a spacious principal bedroom with a contemporary ensuite shower room, along with a luxurious family bathroom finished to a high specification.
Externally, the property benefits from a detached garage and a large, private rear garden with a desirable south-west facing aspect-perfect for enjoying afternoon and evening sun.
Further benefits include a full rewire and replumb in 2018, as well as cavity wall insulation, ensuring improved energy efficiency and peace of mind.
Located just a short walk from excellent local schools, as well as the vibrant Ballyhackamore and Belmont villages, this home offers superb convenience. Excellent transport links are close at hand, including the Glider system, while the nearby Comber Greenway provides fantastic outdoor and recreational opportunities.
Conveniently situated in the heart of East Belfast, this deceptively spacious semi-detached home is perfectly suited to the needs of a growing family.
Beautifully extended and thoughtfully modernised, the property has been finished to an exceptional standard throughout, allowing the new owners to simply move in and enjoy. Offering a wealth of stylish touches, the well-proportioned accommodation is arranged over two floors and provides excellent flexibility for modern family living.
At the heart of the home is a superb open-plan living space, seamlessly connecting the living room, kitchen, and dining area-ideal for both everyday living and entertaining. Additional living areas include a comfortable family room and a practical utility room, enhancing the home´s functionality.
Upstairs, there are four generous bedrooms, including a spacious principal bedroom with a contemporary ensuite shower room, along with a luxurious family bathroom finished to a high specification.
Externally, the property benefits from a detached garage and a large, private rear garden with a desirable south-west facing aspect-perfect for enjoying afternoon and evening sun.
Further benefits include a full rewire and replumb in 2018, as well as cavity wall insulation, ensuring improved energy efficiency and peace of mind.
Located just a short walk from excellent local schools, as well as the vibrant Ballyhackamore and Belmont villages, this home offers superb convenience. Excellent transport links are close at hand, including the Glider system, while the nearby Comber Greenway provides fantastic outdoor and recreational opportunities.
Rooms
Entrance Door
Front hall pull out storage under stairs and oak doors throughout.
Cloakroom
Low flush WC and vanity unit with mixer tap.
Kitchen Open to Living Room 3'2" X 10'6" (0.97m X 3.20m)
Cast iron wood burning stove, wood laminate floor, excellent range of high and level unit, plumed for washing machine, recess for cooker, stainless steel extractor canopy, stainless steel single sink unit, built in dishwasher, ceramic tiled floor and open plan to...
Dining Room 15'5" X 7'5" (4.70m X 2.26m)
Ceramic tiled floor.
Utility Room 7'8" X 6'10" (2.34m X 2.08m)
Plumbed for washing machine, tumble dryer and ceramic tiled floor.
Living Room 13'2" X 9'10" (4.01m X 3.00m)
Cast iron gas stove.
Bedroom One 10'6" X 10'9" (3.20m X 3.28m)
Wood laminate floor.
Ensuite Shower Room
Fully tiled shower cubicle, overhead rain shower. Low flush WC, vanity unit with mixer tap, fully tiled walls and ceramic tiled floor.
Bedroom Two 10'1" X 8'5" (3.07m X 2.57m)
Built in wardrobes with mirrored sliding doors and wood laminate floor.
Bedroom Three 9'9" X 9'0" (2.97m X 2.74m)
Built in wardrobes with mirrored sliding doors and wood laminate floor.
Bedroom Four 7'7" X 7'5" (2.30m X 2.26m)
Bathroom
White suite comprising of free standing bath with mixer tap and shower fitting, vanity unit, low flush WC, shower cubicle with overhead rain shower, fully tiled walls and ceramic tiled floor.
Landing
Wooden floor, built in cupboards, access to roof space (Floored and lighting) and access to gas boiler.
Double Garage 18'2" X 9'9" (5.54m X 2.97m)
Roller door, power and light.
Outside
Tarmac driveway to the front.
Broadband Speed Availability
Potential Speeds for 4 Bloomfield Park West
Max Download
1800
Mbps
Max Upload
220
MbpsThe speeds indicated represent the maximum estimated fixed-line speeds as predicted by Ofcom. Please note that these are estimates, and actual service availability and speeds may differ.
Property Location
Mortgage Calculator
Contact Agent
Contact Simon Brien (East Belfast)
Request More Information
Requesting Info about...
4 Bloomfield Park West, Belfast, County Antrim, BT5 5JX
By registering your interest, you acknowledge our Privacy Policy
By registering your interest, you acknowledge our Privacy Policy