Contact Agent
Contact Best Property Services (Newry)
3 Bed End Terrace
1 Thomas Street
Bessbrook, Newry, BT35 7AB
price
£125,000
Key Features & Description
Description
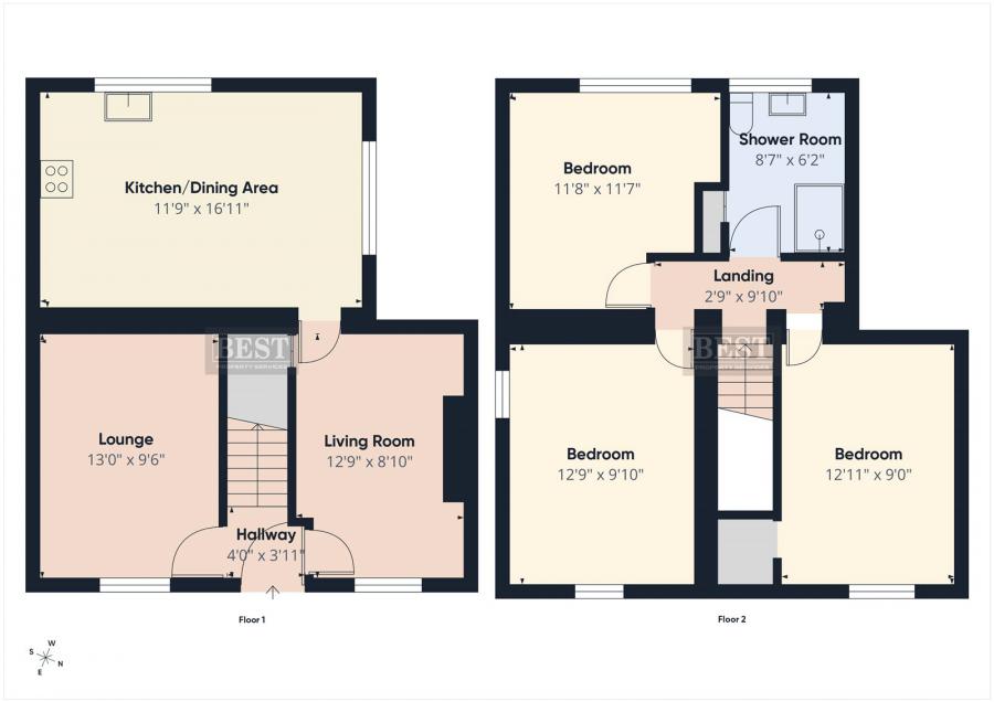
End-of-Terrace Three-Bedroom Home
This well-presented end-of-terrace property offers spacious and versatile accommodation, ideally suited to first-time buyers, growing families, or investors alike.
The property is entered via a welcoming entrance hallway featuring laminate flooring, with carpeted stairs leading to the first floor. To the front of the home are two bright reception rooms, both enjoying front-facing aspects and laminate flooring. The lounge provides a comfortable living space, while the living room is enhanced by a decorative fireplace with open fire, creating a warm and inviting focal point.
To the rear is a generous kitchen/dining area, fitted with a range of upper and lower level units. The room is finished with tiled flooring and is plumbed for both a washing machine and tumble dryer, with space for a cooker and fridge freezer - ideal for modern family living.
On the first floor, the landing features laminate flooring and provides access to the roof space. There are three well-proportioned bedrooms, all bright and airy: two front-facing bedrooms with vinyl and laminate flooring respectively, and a rear-facing bedroom finished with vinyl flooring. The accommodation is completed by a rear-facing shower room, fitted with a white suite including a separate shower cubicle with PVC panelling, vinyl flooring, and a heated towel rail.
Externally, the property benefits from an enclosed rear yard with a boiler house. The home is serviced by oil-fired central heating and is mainly double glazed throughout.
Early viewing is recommended to fully appreciate the space and potential this home has to offer.
End-of-Terrace Three-Bedroom Home
This well-presented end-of-terrace property offers spacious and versatile accommodation, ideally suited to first-time buyers, growing families, or investors alike.
The property is entered via a welcoming entrance hallway featuring laminate flooring, with carpeted stairs leading to the first floor. To the front of the home are two bright reception rooms, both enjoying front-facing aspects and laminate flooring. The lounge provides a comfortable living space, while the living room is enhanced by a decorative fireplace with open fire, creating a warm and inviting focal point.
To the rear is a generous kitchen/dining area, fitted with a range of upper and lower level units. The room is finished with tiled flooring and is plumbed for both a washing machine and tumble dryer, with space for a cooker and fridge freezer - ideal for modern family living.
On the first floor, the landing features laminate flooring and provides access to the roof space. There are three well-proportioned bedrooms, all bright and airy: two front-facing bedrooms with vinyl and laminate flooring respectively, and a rear-facing bedroom finished with vinyl flooring. The accommodation is completed by a rear-facing shower room, fitted with a white suite including a separate shower cubicle with PVC panelling, vinyl flooring, and a heated towel rail.
Externally, the property benefits from an enclosed rear yard with a boiler house. The home is serviced by oil-fired central heating and is mainly double glazed throughout.
Early viewing is recommended to fully appreciate the space and potential this home has to offer.
Broadband Speed Availability
Potential Speeds for 1 Thomas Street
Max Download
1800
Mbps
Max Upload
220
MbpsThe speeds indicated represent the maximum estimated fixed-line speeds as predicted by Ofcom. Please note that these are estimates, and actual service availability and speeds may differ.
Property Location
Mortgage Calculator
Contact Agent
Contact Best Property Services (Newry)
Request More Information
Requesting Info about...
1 Thomas Street, Bessbrook, Newry, BT35 7AB
By registering your interest, you acknowledge our Privacy Policy
By registering your interest, you acknowledge our Privacy Policy