3 Bed Semi-Detached House
6 Clonallon Gardens
Belfast, County Antrim, BT4 2BY
price
£325,000

Key Features & Description
Description
This attractive semi-detached property is found off the Belmont Road, in Clonallon Gardens, within walking distance of the vast array of amenities within this very popular part of East Belfast.
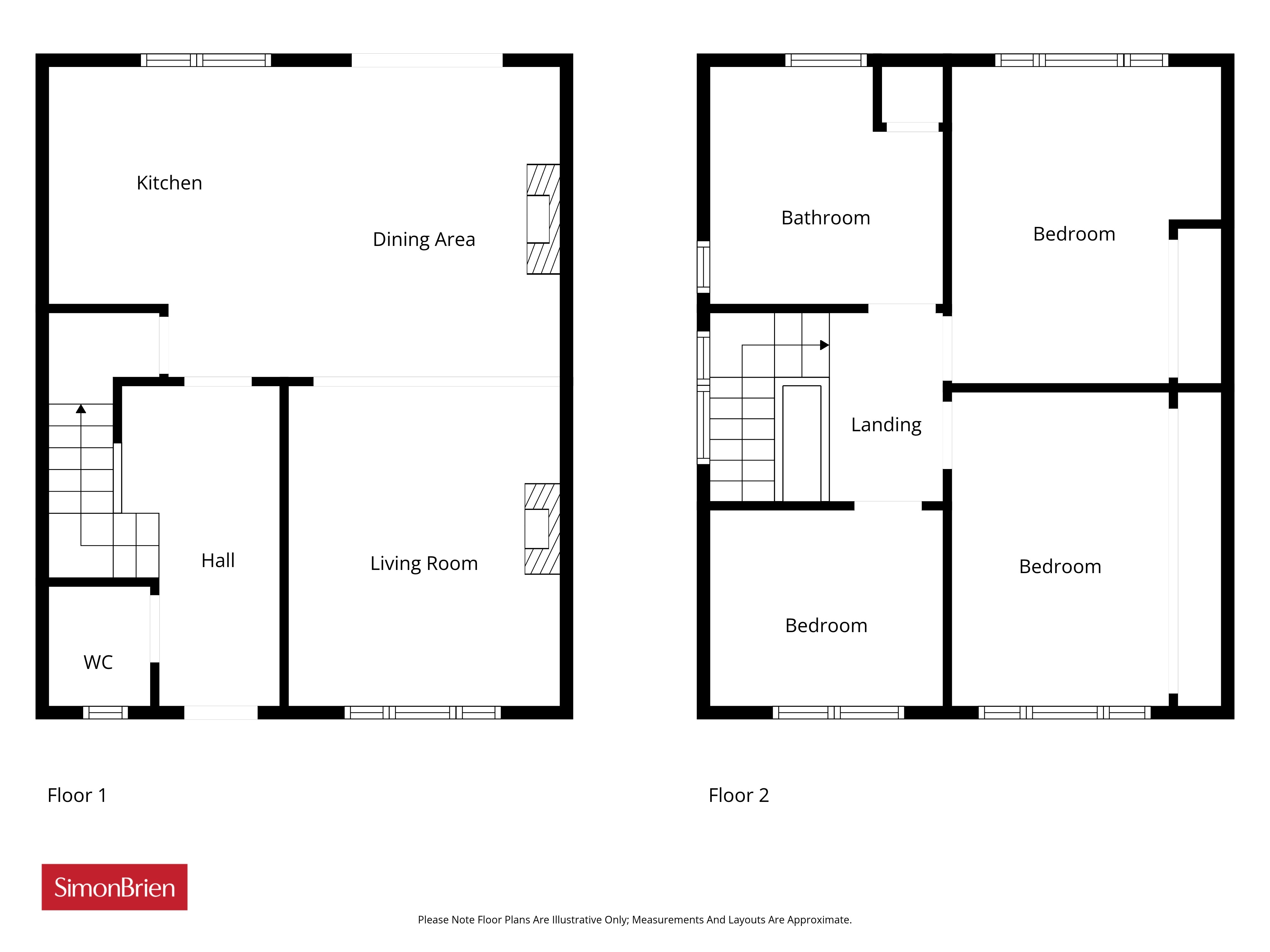
The property comprises an entrance hall, cloakroom with wc, living room open to kitchen and dining area. On the first floor, there are three bedrooms and a large shower room in white suite. Outside, the property has a large site with ample off street parking, detached garage and large rear gardens.
Ready to walk in and put your furniture down, this property comes to the market and will no doubt appeal to those seeking to find a well finished home within this wonderful location. Early viewing is recommended.
This attractive semi-detached property is found off the Belmont Road, in Clonallon Gardens, within walking distance of the vast array of amenities within this very popular part of East Belfast.
The property comprises an entrance hall, cloakroom with wc, living room open to kitchen and dining area. On the first floor, there are three bedrooms and a large shower room in white suite. Outside, the property has a large site with ample off street parking, detached garage and large rear gardens.
Ready to walk in and put your furniture down, this property comes to the market and will no doubt appeal to those seeking to find a well finished home within this wonderful location. Early viewing is recommended.
Rooms
Ground Floor
Entrance Door.
Entrance Hall
Cloakroom
Low flush WC, wash hand basin with mixer taps, ceramic tiled floor.
Kitchen With Dining Area 20'3" X 12'3" (6.17m X 3.73m)
Full range of high and low level white high gloss units, single drainer sink unit with mixer taps, central island, Smeg 4 ring gas hob and Smeg eye level oven, built in dishwasher, plumbed for washing machine, wood laminate floor. Open to:
Living Room 12'5" X 12'3" (3.78m X 3.73m)
Cast iron wood burning stove, wood laminate floor.
First Floor
Bedroom 1 12'8" X 8'8" (3.86m X 2.64mtorobes.)
Wardrobes with mirrored sliding doors.
Bedroom 2 12'4" X 10'7" (3.76m X 3.23m)
Built in robes with mirrored sliding doors.
Bedroom 3 8'3" X 7'9" (2.51m X 2.36m)
Shower Room
Fully tiled shower cubicle with overhead rain shower, low flush WC, vanity sink unit, PVC panelled walls, chrome towel radiator.
Outside
To the rear is a paved patio with southerly aspect and garden laid in lawn.
Bin store to side. To the front is a large driveway.
Bin store to side. To the front is a large driveway.
Detached Garage 18'7" X 9'10" (5.66m X 3.00m)
Roller door, side service door.
Broadband Speed Availability
Potential Speeds for 6 Clonallon Gardens
Max Download
1800
Mbps
Max Upload
220
MbpsThe speeds indicated represent the maximum estimated fixed-line speeds as predicted by Ofcom. Please note that these are estimates, and actual service availability and speeds may differ.
Property Location

Mortgage Calculator
Contact Agent

Contact Simon Brien (East Belfast)
Request More Information
Requesting Info about...
6 Clonallon Gardens, Belfast, County Antrim, BT4 2BY
By registering your interest, you acknowledge our Privacy Policy

By registering your interest, you acknowledge our Privacy Policy