Contact Agent

Contact Templeton Robinson (Ballyhackamore)

Contact Templeton Robinson (Ballyhackamore)

4 Bed Terrace House

15 Bathgate Drive

Off Belmont Road, Belfast, BT4 2BA

offers over £235,000
  • Status For Sale
  • Property Type Terrace
  • Bedrooms 4
  • Receptions 1
  • Heating Gas
  • EPC Rating D64 / C71 -
  • Stamp Duty
    Higher amount applies when purchasing as buy to let or as an additional property
    £2,200 / £13,950*
  • Typical Mortgage
    Click price to use our mortgage calculator
EPC Rating

Key Features & Description

Modern town terrace in heart of Belmont village
Four well-proportioned bedrooms across two floors
Lounge with wood burning stove, open plan to...
Dining area with bespoke built-in cupboards
Kitchen with built in oven and hob
Modern family bathroom
Gas central heating/Majority double glazing
Enclosed rear yard with utility cupboard and storage house
Independent shops, restaurants and schools on your doorstep
Excellent transport links into Belfast city centre, ideal for commuters
Description
Situated in the heart of Belmont Village, this good-sized town terrace would be perfect for a range of purchasers wishing to avail of the area's renowned schools and abundance of amenities.

The beautifully presented living room is open plan to dining area giving the ground floor that modern day living feel. There are four bedrooms located on the first and second floors.

Externally the rear yard can encompass a sitting area making it ideal for those sunnier days ahead. Additionally, there is a utility cupboard and additional storage house.

With a range of excellent shops, amenities and eateries practically on your doorstep, Ballyhackamore is also within a short stroll.

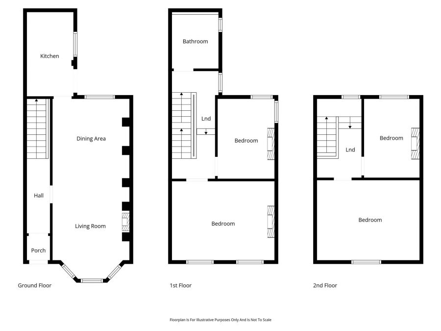
Rooms

Hardwood front door to . . .
ENTRANCE PORCH: Tiled floor. Glazed door to . . .
ENTRANCE HALL: Laminate wood effect floor, cornice ceiling, ceiling rose.
LOUNGE / DINING: 25' 2" X 10' 7" (7.67m X 3.23m) Feature fireplace with wood burning stove and slate hearth, laminate wood effect floor, cornice ceiling, casual dining area with built-in storage and shelving, understairs storage cupboard.
KITCHEN: 11' 2" X 6' 9" (3.40m X 2.06m) Modern fitted kitchen with range of high and low level units, four ring electric hob, electric under oven, stainless steel extracotr hood, Belfast sink, plumbed for dishwasher, part tiled walls.
BATHROOM: White suite comprising low flush wc, vanity sink unit, bath with telephone hand shower, part tiled walls, shelved storage cupboard with gas boiler, heated towel rail.
LANDING:
BEDROOM (1): 14' 6" X 10' 11" (4.42m X 3.33m) Feature fireplace with tiled inset and hearth, built-in wardrobes, cornice ceiling, wooden floor.
BEDROOM (2): 11' 1" X 8' 3" (3.38m X 2.51m) Cast iron fireplace, wooden floor, built-in storage cupboard, picture rail.
LANDING:
BEDROOM (3): 13' 5" X 10' 11" (4.09m X 3.33m) Velux window, feature cast iron fireplace, sanded and varnished floor boards.
BEDROOM (4): 11' 1" X 8' 3" (3.38m X 2.51m) Velux window, wooden floor, feature cast iron fireplace.
FRONT: Gated forecourt with mature shrubs.
REAR: Enclosed yard with gate to rear, outside tap. Utility cupboard plumbed for washing machine. Storage house.

Broadband Speed Availability

Ultrafast

Potential Speeds for 15 Bathgate Drive

Max Download
1800
Mbps
Max Upload
220
Mbps
The speeds indicated represent the maximum estimated fixed-line speeds as predicted by Ofcom. Please note that these are estimates, and actual service availability and speeds may differ.

Property Location

Show Map

Mortgage Calculator

Disclaimer: The following calculations act as a guide only, and are based on a typical repayment mortgage model. Financial decisions should not be made based on these calculations and accuracy is not guaranteed. Always seek professional advice before making any financial decisions.

Directions

Coming from Strand Cinema, Bathgate Drive is the third road on the left off the Belmont Road. Please note it is one way from Edenvale Drive so vehicular access can be via Ranfurly or Ferguson.

Contact Agent

Contact Templeton Robinson (Ballyhackamore)

Contact Templeton Robinson (Ballyhackamore)

Request More Information
Requesting Info about...
15 Bathgate Drive, Off Belmont Road, Belfast, BT4 2BA 15 Bathgate Drive, Off Belmont Road, Belfast, BT4 2BA

By registering your interest, you acknowledge our Privacy Policy
Ask Holmes
Ask Holmes
Let's find your next home

Are you sure you want to reset the chat?

Checking API...