3 Bed Semi-Detached House
3 Loughside Chase
Belfast, BT15 4JE
offers over
£199,950
Key Features & Description
Modern, Semi Detached Home
Three Bedroom; Principal En Suite
Lounge; Focal Point Fire
Kitchen With Informal Dining Area
Modern Fitted Kitchen
Utility Room; Furnished Cloakroom
Deluxe Bathroom
Gas Heating; PVC Double Glazing
Private Double Driveway
Fully Enclosed Rear Garden; Communal Service Area
Description
Immaculately presented, modern, three bedroom, semi detached home situated within a small, recently constructed, cul-de-sac development off Shore Road, North Belfast.
The property comprises entrance hall, lounge, open through to kitchen with informal dining area, modern fitted kitchen, utility room, furnished cloakroom, three bedrooms, to include principal en suite, and separate, deluxe family bathroom.
Externally, the property enjoys double private driveway, enclosed, communal service area to side, and fully enclosed garden to rear, finished in lawn, paved patio area and timber decking.
Other attributes include gas heating, PVC double glazing, and convenient location.
Ideal first time buy / buy to let investment alike.
Early viewing highly recommended.
Immaculately presented, modern, three bedroom, semi detached home situated within a small, recently constructed, cul-de-sac development off Shore Road, North Belfast.
The property comprises entrance hall, lounge, open through to kitchen with informal dining area, modern fitted kitchen, utility room, furnished cloakroom, three bedrooms, to include principal en suite, and separate, deluxe family bathroom.
Externally, the property enjoys double private driveway, enclosed, communal service area to side, and fully enclosed garden to rear, finished in lawn, paved patio area and timber decking.
Other attributes include gas heating, PVC double glazing, and convenient location.
Ideal first time buy / buy to let investment alike.
Early viewing highly recommended.
Rooms
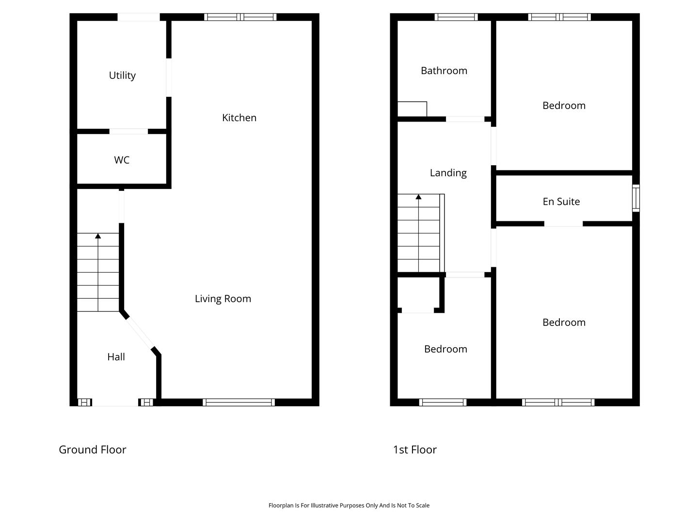
ACCOMMODATION
ENTRANCE HALL
PVC front door with matching PVC double glazed side screen. Tiled floor. Stairwell to first floor.
LOUNGE 14'4" X 13'3" (wps) (4.39m X 4.05m (wps))
Contemporary, wall mounted, focal point, electric fire. Access to under stairs store. Open through to:
KITCHEN WITH INFORMAL DINING AREA 11'10" X 10'0" (3.62m X 3.06m)
Modern fitted kitchen with range of high and low level storage units with contrasting stone effect melamine worktop, Stainless steel 1.5 bowl sink unit with draining bay. Integrated touch screen ceramic hob with stainless steel extractor hood over. Integrated oven, fridge washer and dishwasher. Splashback tiling to walls. Tiled floor.
UTILITY ROOM 7'10" X 6'2" (2.40m X 1.89m)
Range of fitted storage units with contrasting worktop to match kitchen. Stainless steel sink unit with draining bay. Plumbed and space for washing machine. Gas fired central heating boiler (housed within matching unit). Splashback tiling to walls. Tiled floor. Access to furnished cloakroom. PVC double glazed door leading to rear garden.
FURNISHED CLOAKROOM
Contemporary, white, two piece suite comprising semi pedestal wash hand basin and WC. Splashback tiling to sink. Tiled floor.
FIRST FLOOR
LANDING
PRINCIPAL BEDROOM 12'3" X 9'5" (3.75m X 2.89m)
DELUXE EN SUITE SHOWER ROOM
Contemporary, white, three piece suite comprising fully tiled shower enclosure, vanity unit and WC. Thermostat controlled main shower unit. Splashback tiling to sink. Chrome towel radiator. Tiled floor.
BEDROOM 2 10'2" X 9'6" (3.12m X 2.90m)
BEDROOM 3 8'5" X 6'9" (wps) (2.59m X 2.08m (wps))
Built in wardrobe/store.
DELUXE FAMILY BATHROOM
Contemporary, white, three piece suite comprising panelled bath, vanity unit and WC. Glass shower screen over bath. Part tiling to walls. Chrome towel radiator. Tiled floor.
EXTERNAL
Private driveway finished in tarmac.
Front garden finished in lawn and trees.
External lighting.
Seamless aluminium guttering.
Fully enclosed rear garden finished in lawn, timber decking and paving.
Outside tap.
External power points.
Enclosed, communal service area.
Front garden finished in lawn and trees.
External lighting.
Seamless aluminium guttering.
Fully enclosed rear garden finished in lawn, timber decking and paving.
Outside tap.
External power points.
Enclosed, communal service area.
IMPORTANT NOTE TO ALL POTENTIAL PURCHASERS
Every care has been taken with the preparation of these particulars, but complete accuracy cannot be guaranteed. If there is any point, which is of particular importance to you, please obtain professional confirmation. Alternatively, we will be pleased to check the information for you. All measurements quoted are approximate. The Fixtures, Fittings & Appliances have not been tested and therefore no guarantee can be given that they are in working order. Photographs are reproduced for general information and it cannot be inferred that any item shown is included in the sale.
Broadband Speed Availability
Potential Speeds for 3 Loughside Chase
Max Download
1800
Mbps
Max Upload
220
MbpsThe speeds indicated represent the maximum estimated fixed-line speeds as predicted by Ofcom. Please note that these are estimates, and actual service availability and speeds may differ.
Property Location
Mortgage Calculator
Contact Agent
Contact Colin Graham Residential
Request More Information
Requesting Info about...
3 Loughside Chase, Belfast, BT15 4JE
By registering your interest, you acknowledge our Privacy Policy
By registering your interest, you acknowledge our Privacy Policy