Commercial
'The Harbour Cafe' 7 Dargan Road
Belfast, BT3 9JU
offers over
£99,950
- Status For Sale
- Property Type Commercial
- Heating Gas
-
Stamp Duty
Higher amount applies when purchasing as buy to let or as an additional property£0 / £4,998*
Key Features & Description
Exciting Business Opportunity
Popular & Profitable Bistro Café
Prominent And Convenient Trading Position
Offering Hot Food, Takeaway & Deli Counter
Capacity To Comfortably Seat c.35 People
Customer & Staff Bathroom Facilities
Current Lease With c,30 Months Remaining
Gas And Electric Services To Premises
Generous Car Parking Facilities
Ready For Immediate Occupation
Description
Exciting opportunity to purchase a popular and profitable bistro café business offering a range of food to either sit in or takeaway, together with leasing the trading premises which benefits from access to generous communal parking facilities, occupying a prominent position situated off Dargan Road, Belfast.
The property has been refurbished over the years to provide the thriving bistro with an extremely attractive and quirky space encompassing an open plan design, providing the capacity to seat c.35 people comfortably. The leased premises further benefits from gas and electric services, with accommodation comprising main retail unit/seating area, deli counter, kitchen, separate customer and staff bathroom facilities, and access to generous car parking areas front and rear.
The property is fitted out to a high standard to allow any new buyer the ability to continue trading immediately with fixtures and fittings available via separate negotiation. The current lease (managed by Savills, Belfast) has c.30 months remaining with the landlord open to further extending the lease period (subject to market value, terms and conditions at time of negotiation).
The business attracts a very loyal customer base, further enhanced by a prime trading position and is being tendered for sale due to our clients´ desire to take early retirement. Business accounts for the previous 3 years trading can be provided on request to those who portray a genuine interest of purchase.
Early viewing strongly recommended to avoid disappointment.
Exciting opportunity to purchase a popular and profitable bistro café business offering a range of food to either sit in or takeaway, together with leasing the trading premises which benefits from access to generous communal parking facilities, occupying a prominent position situated off Dargan Road, Belfast.
The property has been refurbished over the years to provide the thriving bistro with an extremely attractive and quirky space encompassing an open plan design, providing the capacity to seat c.35 people comfortably. The leased premises further benefits from gas and electric services, with accommodation comprising main retail unit/seating area, deli counter, kitchen, separate customer and staff bathroom facilities, and access to generous car parking areas front and rear.
The property is fitted out to a high standard to allow any new buyer the ability to continue trading immediately with fixtures and fittings available via separate negotiation. The current lease (managed by Savills, Belfast) has c.30 months remaining with the landlord open to further extending the lease period (subject to market value, terms and conditions at time of negotiation).
The business attracts a very loyal customer base, further enhanced by a prime trading position and is being tendered for sale due to our clients´ desire to take early retirement. Business accounts for the previous 3 years trading can be provided on request to those who portray a genuine interest of purchase.
Early viewing strongly recommended to avoid disappointment.
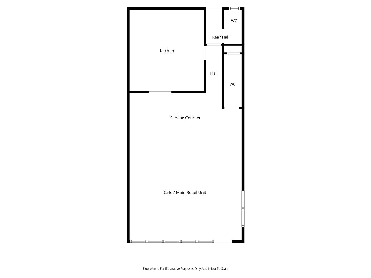
Rooms
ACCOMMODATION
Aluminium framed, double glazed front door with matching dual aspect windows leading into:
MAIN RETAIL UNIT / CAFE 27'6" X 20'8" (8.40m X 6.32m)
Wood effect lino floor covering. Suspended ceiling tiles with lighting tiles inset. Reception and deli counter with integrated storage and shelving. Range of glass display cabinets Under counter fridge. Servers hatch open to kitchen.
KITCHEN 14'7" X 13'8" (4.46m X 4.19m)
Range of stainless steel food preparation benches with two separate sinks. Range of burners, cookers, fryers and hot plate. Integrated stainless steel fridge freezer and separate freezer. Dishwasher. Suspended ceiling tiles with lighting tiles inset. Extractor fan. Tiled floor.
WASHROOM FACILITIES 9'11" X 3'1" (3.04m X 0.95m)
White two piece suite comprising vanity unit with wash hand basin and WC. Wood effect lino floor covering. PVC panelling to walls and ceiling.
REAR HALL
Wood effect lino floor covering. Fire exit door with steel shutter. Alarm panel.
STAFF WC
White two piece suite with wash hand basin and WC. Tiled floor. Water tap.
EXTERNAL
Communal car parking spaces front and rear finished in tarmac.
EPC RATING: D84
IMPORTANT NOTE TO ALL POTENTIAL PURCHASERS
Fixtures and fittings available via separate negotiation. Lease renewal and/or extension to be negotiated separately through Savills, Belfast. Every care has been taken with the preparation of these particulars, but complete accuracy cannot be guaranteed. If there is any point, which is of particular importance to you, please obtain professional confirmation. Alternatively, we will be pleased to check the information for you. All measurements quoted are approximate. The Fixtures, Fittings & Appliances have not been tested and therefore no guarantee can be given that they are in working order. Photographs are reproduced for general information and it cannot be inferred that any item shown is included in the sale.
Property Location
Mortgage Calculator
Contact Agent
Contact Colin Graham Residential
Request More Information
Requesting Info about...
The Harbour Cafe 7 Dargan Road, Belfast, BT3 9JU
By registering your interest, you acknowledge our Privacy Policy
By registering your interest, you acknowledge our Privacy Policy