Contact Agent

Contact Colin Graham Residential

Contact Colin Graham Residential

2 Bed Terrace House

14 Castlereagh Place

Belfast, BT5 4NN

offers over £89,950
  • Status Sale Agreed
  • Property Type Terrace
  • Bedrooms 2
  • Receptions 2
  • Bathrooms 1
  • Heating Gas
  • EPC Rating D63 / B85 -
  • Stamp Duty
    Higher amount applies when purchasing as buy to let or as an additional property
    £0 / £4,498*
  • Typical Mortgage
    Click price to use our mortgage calculator
EPC Rating

Key Features & Description

Spacious Mid Terrace Property
Two Bedroom; Two+ Reception
Kitchen Through Dining Room
Bathroom; White Suite
Gas Heating
Double Glazing
Fully Enclosed Rear Yard
Garage
Convenient Location
Ideal First Time Buy/Buy To Let
Description
Generous sized, two bedroom, mid terrace property, with garage to rear, conveniently situated off Woodstock Road/Castlereagh Street, East Belfast.

The property comprises entrance porch, entrance hall, lounge, family room, kitchen though dining room, two well-proportioned bedrooms, and bathroom, with white three piece suite.

Externally, the property enjoys fully enclosed yard and garage to rear.

Other attributes include gas heating and double glazing.

Ideal first time buy / buy to let investment alike.

The property is in need of modernising and maintenance, as fairly reflected within marketing figure.

Early viewing highly recommended.

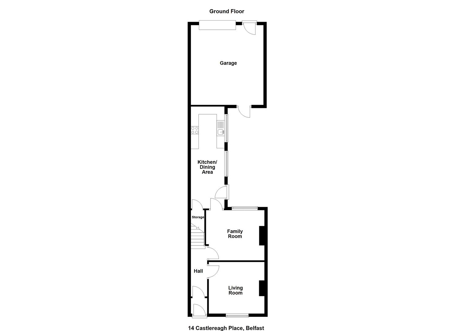
Rooms

ACCOMMODATION
ENTRANCE PORCH PVC double glazed front door with fanlight over. Hardwood glass panelled door, with glass fan light over, leading to:
ENTRANCE HALL Stairwell to first floor.
LOUNGE 11'6" X 10'11" (3.52m X 3.33m)
FAMILY ROOM 11'11" X 10'11" (3.65m X 3.35m) Glass panelled door leading to:
KITCHEN THROUGH DINING ROOM 22'2" X 7'0" (6.76m X 2.14m) Fitted kitchen with range of high and low level storage units with contrasting granite effect melamine work surface. Stainless steel sink unit with twin draining bays. Cooker point. Space for fridge freezer. Plumbed and space for washing machine. Splashback panelling to walls.
DINING AREA Access to under stairs store. Aluminium framed double glazed door leading to rear garden.
FIRST FLOOR
LANDING Access to store. Access to roof space.
BEDROOM 1 14'1" X 10'11" (4.30m X 3.33m) Fitted wardrobes in mirror panelled sliding doors. Separate built in wardrobes/storage units.
BEDROOM 2 12'7" X 8'2" (3.85m X 2.49m) Twin built in storage units.
BATHROOM White three piece suite comprising panelled bath, vanity unit and WC. Electric shower and glass shower screen over bath. Fully panelled walls. Chrome towel radiator. Access to roof space.
EXTERNAL Fully enclosed rear yard.
GARAGE 16'9" X 15'3" (5.13m X 4.67m)
IMPORTANT NOTE TO ALL POTENTIAL PURCHASERS Every care has been taken with the preparation of these particulars, but complete accuracy cannot be guaranteed. If there is any point, which is of particular importance to you, please obtain professional confirmation. Alternatively, we will be pleased to check the information for you. All measurements quoted are approximate. The Fixtures, Fittings & Appliances have not been tested and therefore no guarantee can be given that they are in working order. Photographs are reproduced for general information and it cannot be inferred that any item shown is included in the sale.

Broadband Speed Availability

Ultrafast

Potential Speeds for 14 Castlereagh Place

Max Download
1800
Mbps
Max Upload
220
Mbps
The speeds indicated represent the maximum estimated fixed-line speeds as predicted by Ofcom. Please note that these are estimates, and actual service availability and speeds may differ.

Property Location

Show Map

Mortgage Calculator

Disclaimer: The following calculations act as a guide only, and are based on a typical repayment mortgage model. Financial decisions should not be made based on these calculations and accuracy is not guaranteed. Always seek professional advice before making any financial decisions.

Contact Agent

Contact Colin Graham Residential

Contact Colin Graham Residential

Request More Information
Requesting Info about...
14 Castlereagh Place, Belfast, BT5 4NN 14 Castlereagh Place, Belfast, BT5 4NN

By registering your interest, you acknowledge our Privacy Policy
Ask Holmes
Ask Holmes
Let's find your next home

Are you sure you want to reset the chat?

Checking API...