Commercial
330 & 330A Shankill Road
Belfast, BT13 3AB
offers over
£79,950
- Status For Sale
- Property Type Commercial
-
Stamp Duty
Higher amount applies when purchasing as buy to let or as an additional property£0 / £3,998*
Key Features & Description
Three Storey Commercial Premises
Prominent Arterial Road Frontage Position
Ground Floor Main Retail Unit / Studio
Ground Floor Kitchenette & WC
First & Second Floor Offices / Studios / Stores
Enclosed Rear Yard Area
Potential To Convert (Subject To Checks & Approvals)
Option To Purchase With Sitting Tenant If Desired
Convenient Location
EPC Rating: D99
Description
Exciting investment opportunity comprising of a three storey commercial premises with enclosed rear yard, occupying a prominent position fronting the main retail pitch on the Shankill Road, further benefiting from a dense residential population in the surrounding area.
Accommodation comprises main retail unit/studio, kitchenette and furnished cloakroom to the ground floor, with four separate offices/studios/store rooms spread across first and second floors. Externally, there is access via the kitchenette to an enclosed rear yard.
The premises further benefits from single phase electric supply, mains water supply, generous electrical specification throughout, and potential to convert upper floors to residential accommodation (subject to necessary checks and approvals).
The business, currently trading as a popular hair and beauty salon, attracts a very loyal customer base, enhanced by a prime trading position on a main arterial route, and the property is being tendered for sale due to our clients´ desire to downsize.
Early viewing highly recommended to avoid disappointment.
Exciting investment opportunity comprising of a three storey commercial premises with enclosed rear yard, occupying a prominent position fronting the main retail pitch on the Shankill Road, further benefiting from a dense residential population in the surrounding area.
Accommodation comprises main retail unit/studio, kitchenette and furnished cloakroom to the ground floor, with four separate offices/studios/store rooms spread across first and second floors. Externally, there is access via the kitchenette to an enclosed rear yard.
The premises further benefits from single phase electric supply, mains water supply, generous electrical specification throughout, and potential to convert upper floors to residential accommodation (subject to necessary checks and approvals).
The business, currently trading as a popular hair and beauty salon, attracts a very loyal customer base, enhanced by a prime trading position on a main arterial route, and the property is being tendered for sale due to our clients´ desire to downsize.
Early viewing highly recommended to avoid disappointment.
Rooms
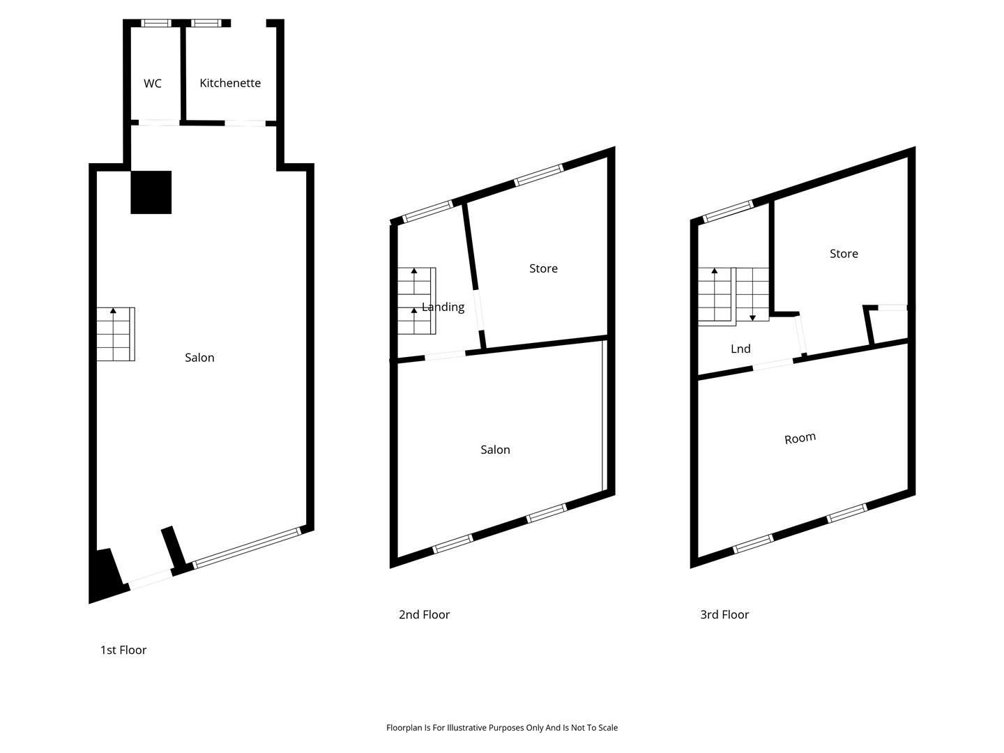
ACCOMMODATION
Electric roller shutter to front. Aluminium framed, double glazed entrance door leading into:
MAIN RETAIL UNIT / STUDIO 27'9" X 12'9" (8.48m X 3.89m)
Tiled floor. Stairwell leading to upper floors. Picture window to front elevation. Suspended tile ceiling with lights inset. Generous electrical specification. Air conditioning and heating unit inset to ceiling tiles. Access hatch to roof space area.
KITCHENETTE 5'10" X 5'6" (1.79m X 1.68m)
Low level storage units and contrasting melamine work surface. Stainless steel sink unit with draining bay and mixer tap over. Plumbed for automatic washing machine. Tiled floor. Strip lighting and power points. Rear door to enclosed yard area.
FURNISHED CLOAKROOM 5'6" X 3'2" (1.69m X 0.99m)
White two piece suite comprising wash hand basin and WC. Tiled floor. PVC double glazed frosted window to rear. Extractor fan. Redring hot water unit over sink.
FIRST FLOOR
LANDING
Return stairwell leading to second floor.
OFFICE / STUDIO 1 14'4" X 11'8" (wps) (4.37m X 3.57m (wps))
Twin windows to front elevation. Feature brick decorative fireplace. Wood laminate floor covering. Light and power.
OFFICE / STUDIO 2 10'2" X 9'3" (wps) (3.12m X 2.84m (wps))
PVC double glazed window to rear. Light and power. Wood laminate floor covering.
SECOND FLOOR
LANDING
OFFICE / STUDIO 3 14'4" X 10'6" (wps) (4.37m X 3.21m (wps))
Light and power. PVC double glazed window to front elevation.
STORE 10'1" X 8'2" (wps) (3.08m X 2.49m (wps))
Light. Plumbed for bathroom suite.
EXTERNAL
Enclosed rear yard finished in concrete.
IMPORTANT NOTE TO ALL POTENTIAL PURCHASERS
Please note that we have not tested the services or systems in this property. Purchasers should make/commission their own inspections if they feel it is necessary.
Property Location
Mortgage Calculator
Contact Agent
Contact Colin Graham Residential
Request More Information
Requesting Info about...
330 & 330A Shankill Road, Belfast, BT13 3AB
By registering your interest, you acknowledge our Privacy Policy
By registering your interest, you acknowledge our Privacy Policy