Contact Agent
Contact Gerard McClinton Estate Agent
Retail
535C Falls Road
Belfast, BT11 9AA
price
£124,950
- Status For Sale
- Property Type Retail
-
Stamp Duty
Higher amount applies when purchasing as buy to let or as an additional property£0 / £6,248*
Key Features & Description
Fantastic Investment Opportunity in Prime West Belfast Location
Income Generating Retail Unit - Currently Let at 800 pcm until 2028
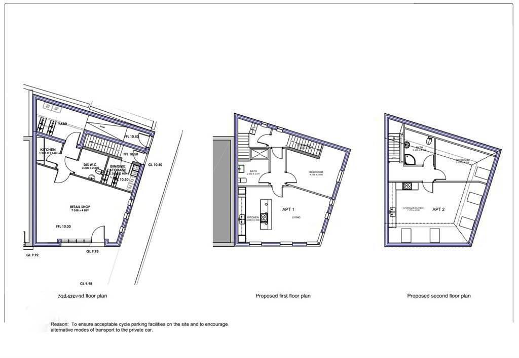
Planning Permission For Demolish and Rebuild - Retail & 2 x 1 Bed Apartments
Priced To Sell - Serious Enquiries Only
Description
Income-Producing Development Opportunity - Prime Falls Road Position (Circa 7.7% Yield)
Occupying a prominent corner position on the Falls Road directly facing The Kennedy Centre Shopping Centre, this highly visible site benefits from constant passing vehicular traffic and strong pedestrian footfall throughout the day. This is one of West Belfast´s most established commercial locations.
The property currently comprises a single-storey retail unit with a long-established tenant in situ, producing £800 per month (£9,600 per annum) and offering an attractive gross yield of approximately 7.7% at the asking price. The tenant is secured in place until 2028, providing reliable, long-term income.
While the existing income is strong, the real value lies in the long-term enhancement of the property, with full planning permission already granted for redevelopment into a new-build commercial retail unit with two one-bedroom apartments above. This presents a clear opportunity to significantly increase overall rental income, or alternatively to sell the apartments individually, unlocking further capital value.
Full planning permission granted under reference LA04/2023/3217/F.
An ideal opportunity for investors seeking immediate income alongside genuine future upside
Offers Around 124,950
Income-Producing Development Opportunity - Prime Falls Road Position (Circa 7.7% Yield)
Occupying a prominent corner position on the Falls Road directly facing The Kennedy Centre Shopping Centre, this highly visible site benefits from constant passing vehicular traffic and strong pedestrian footfall throughout the day. This is one of West Belfast´s most established commercial locations.
The property currently comprises a single-storey retail unit with a long-established tenant in situ, producing £800 per month (£9,600 per annum) and offering an attractive gross yield of approximately 7.7% at the asking price. The tenant is secured in place until 2028, providing reliable, long-term income.
While the existing income is strong, the real value lies in the long-term enhancement of the property, with full planning permission already granted for redevelopment into a new-build commercial retail unit with two one-bedroom apartments above. This presents a clear opportunity to significantly increase overall rental income, or alternatively to sell the apartments individually, unlocking further capital value.
Full planning permission granted under reference LA04/2023/3217/F.
An ideal opportunity for investors seeking immediate income alongside genuine future upside
Offers Around 124,950
Video
Broadband Speed Availability
Potential Speeds for 535c Falls Road
Max Download
10000
Mbps
Max Upload
10000
MbpsThe speeds indicated represent the maximum estimated fixed-line speeds as predicted by Ofcom. Please note that these are estimates, and actual service availability and speeds may differ.
Property Location
Mortgage Calculator
Contact Agent
Contact Gerard McClinton Estate Agent
Request More Information
Requesting Info about...