3 Bed Semi-Detached House
11 Kimona Street
Belfast, County Antrim, BT4 1LP
price
£199,950
Key Features & Description
Description
This beautifully presented three-bedroom home offers stylish, modern living with well-proportioned accommodation throughout, ideal for first-time buyers, young families, or those seeking a turnkey property.
The property opens with a covered entrance porch leading into a welcoming entrance hall, complete with a walk-in cloak cupboard and useful under-stairs storage. To the front, the lounge is a cosy yet contemporary space, featuring a multi-fuel wood-burning stove with tiled hearth and floating mantle-perfect for relaxing evenings.
The heart of the home is the stunning open plan kitchen and dining area, finished to a high standard with an excellent range of fitted units and integrated appliances including hob, oven, and dishwasher. A built-in larder cupboard and ample dining space make this an ideal setting for both everyday living and entertaining. A rear hallway provides additional storage, space for laundry appliances, and access to the garden.
Upstairs, there are three well-proportioned bedrooms along with a beautifully appointed contemporary family bathroom, featuring a fully tiled suite with walk-in shower, separate bath, vanity unit, and the added luxury of underfloor heating.
Externally, the property benefits from a well-maintained front garden and generous driveway providing ample off-street parking. The enclosed rear garden is private and low maintenance, with a combination of patio and feature decking areas-perfect for outdoor dining and entertaining.
Early viewing is highly recommended to fully appreciate all this superb home has to offer.
This beautifully presented three-bedroom home offers stylish, modern living with well-proportioned accommodation throughout, ideal for first-time buyers, young families, or those seeking a turnkey property.
The property opens with a covered entrance porch leading into a welcoming entrance hall, complete with a walk-in cloak cupboard and useful under-stairs storage. To the front, the lounge is a cosy yet contemporary space, featuring a multi-fuel wood-burning stove with tiled hearth and floating mantle-perfect for relaxing evenings.
The heart of the home is the stunning open plan kitchen and dining area, finished to a high standard with an excellent range of fitted units and integrated appliances including hob, oven, and dishwasher. A built-in larder cupboard and ample dining space make this an ideal setting for both everyday living and entertaining. A rear hallway provides additional storage, space for laundry appliances, and access to the garden.
Upstairs, there are three well-proportioned bedrooms along with a beautifully appointed contemporary family bathroom, featuring a fully tiled suite with walk-in shower, separate bath, vanity unit, and the added luxury of underfloor heating.
Externally, the property benefits from a well-maintained front garden and generous driveway providing ample off-street parking. The enclosed rear garden is private and low maintenance, with a combination of patio and feature decking areas-perfect for outdoor dining and entertaining.
Early viewing is highly recommended to fully appreciate all this superb home has to offer.
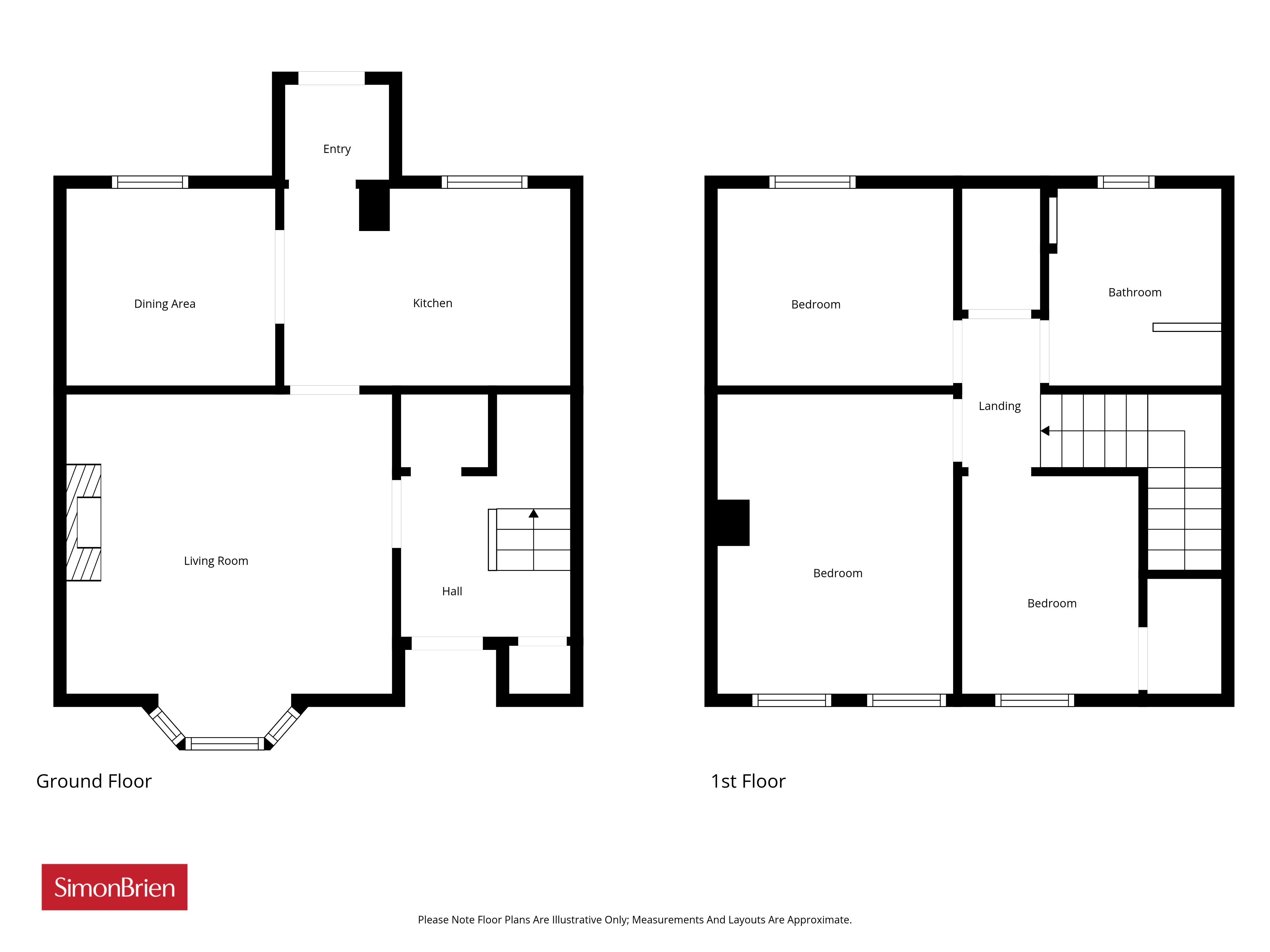
Rooms
Ground Floor
Covered Entrance Porch
uPVC front door with glazed inset to:
Entrance Hall
Walk in cloaks cupboard, under stairs storage. Laminate wooden flooring.
Lounge 13'8" X 12'3" (4.17m X 3.73m)
Multi fuel wood burning stove with tiled hearth and floating mantle. Laminate wooden flooring. Oriel bay window.
Stunning Fitted Kitchen Open Plan To Dining Area 20'7" X 8'5" (6.27m X 2.57mAtwidestpoints)
1 bowl sink unit with dual mixer tap, excellent range of high and low level units with stainless steel door furniture, integrated four ring ceramic hob and chimney extractor hood. Separate eye level built in stainless steel oven, plumbed for washing machine, integrated dishwasher, space for fridge freezer, built in larder cupboard, partly tiled walls, ample dining area, laminate wooden flooring.
Rear Hallway
uPVC door to enclosed rear garden.
First Floor
Bedroom 1 12'4" X 9'10" (3.76m X 3.00m)
Bedroom 2 9'10" X 8'0" (3.00m X 2.44m)
Laminate wooden flooring.
Bedroom 3 9'6" X 7'4" (2.90m X 2.24m)
Laminate wooden flooring, built in wardrobe.
Contemporary Family Bathroom
Comprising: Fully tiled bath with chrome dual mixer tap and telephone hand shower. Fully tiled walk in shower and thermostatically controlled shower unit with telephone hand shower and overhead drencher, vanity unit with inset sink and chrome dual mixer tap, dual flush WC, under floor heating, fully tiled walls, ceramic tiled flooring, recessed spotlighting.
Landing
Built in storage cupboard with gas fired boiler.
Outside
Well tended garden area to front. Ample car parking. Side access. Enclosed private easy to maintain rear garden bordered by fencing in patio and feature deck area enjoying afternoon sunshine. Outside tap/light.
Broadband Speed Availability
Potential Speeds for 11 Kimona Street
Max Download
1800
Mbps
Max Upload
220
MbpsThe speeds indicated represent the maximum estimated fixed-line speeds as predicted by Ofcom. Please note that these are estimates, and actual service availability and speeds may differ.
Property Location
Mortgage Calculator
Contact Agent
Contact Simon Brien (East Belfast)
Request More Information
Requesting Info about...
11 Kimona Street, Belfast, County Antrim, BT4 1LP
By registering your interest, you acknowledge our Privacy Policy
By registering your interest, you acknowledge our Privacy Policy