Contact Agent

Contact Simon Brien (North Belfast)

Contact Simon Brien (North Belfast)

3 Bed Semi-Detached House

75 Torrens Crescent

Belfast, County Antrim, BT14 6HS

offers over £155,000
  • Status For Sale
  • Property Type Semi-Detached
  • Bedrooms 3
  • Receptions 2
  • Bathrooms 1
  • EPC Rating D55 / D60
  • Stamp Duty
    Higher amount applies when purchasing as buy to let or as an additional property
    £600 / £8,350*
  • Typical Mortgage
    Click price to use our mortgage calculator
EPC Rating

Key Features & Description

  • Immaculately presented three-bedroom semi-detached home
  • Located in a popular and convenient area of North Belfast
  • Welcoming entrance hall
  • Bright open plan living and dining area with dual aspect bay windows
  • Modern fitted kitchen with access to rear garden
  • Three well-proportioned bedrooms
  • Contemporary shower room on first floor
  • Enclosed rear garden with raised decking area
  • Ideal for first-time buyers and young families
  • Ready to move into with minimal maintenance required
  • Description
    This immaculately presented three-bedroom semi-detached home offers stylish, modern living in a highly convenient North Belfast location.

    Upon entering, you are greeted by a welcoming entrance hall that leads into a bright and spacious open plan living and dining area, enhanced by dual aspect bay windows that flood the space with natural light.

    To the rear, the property benefits from a contemporary fitted kitchen, thoughtfully designed with modern finishes and providing direct access to an enclosed rear garden. The outdoor space features a raised decking area, ideal for outdoor dining and enjoying the warmer months.

    The first floor comprises three well-proportioned bedrooms along with a sleek, modern shower room, finished to a high standard.

    This home is perfect for first-time buyers, young families, or anyone seeking a turnkey property with nothing to do but move in and enjoy.

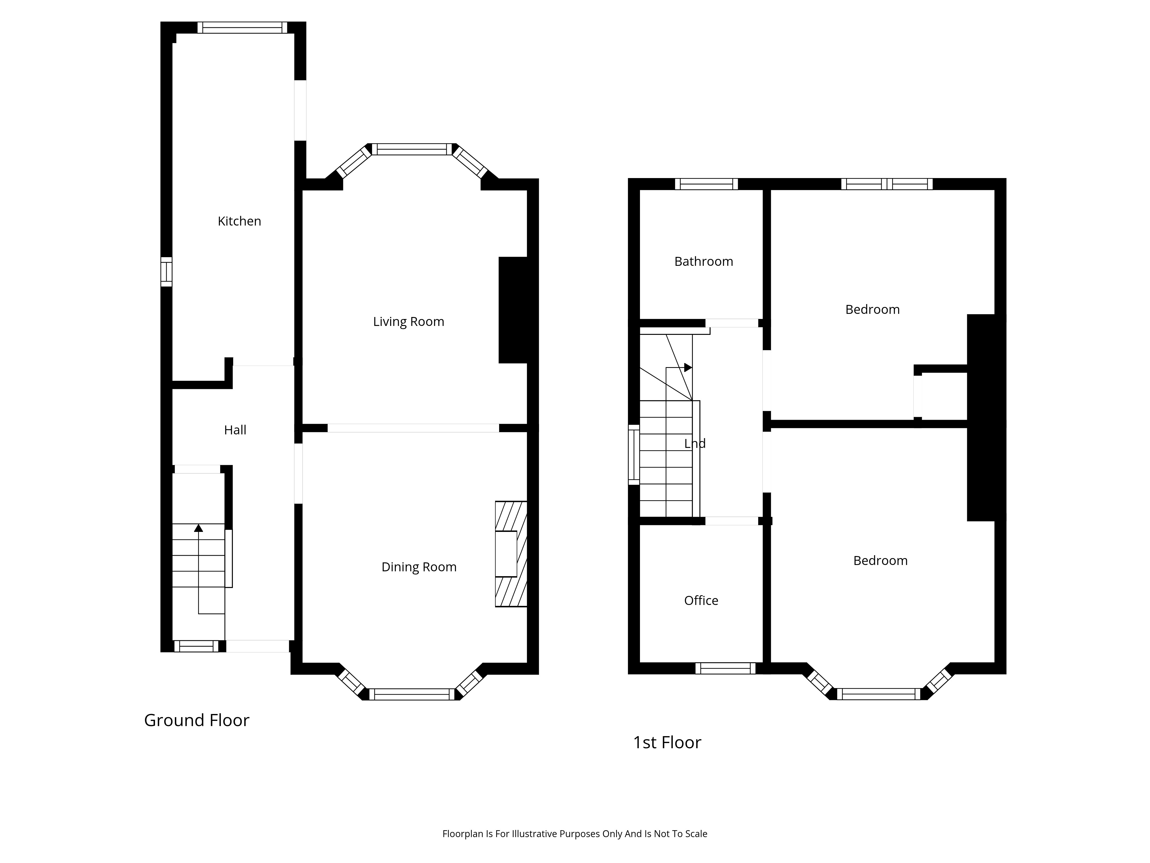
    Rooms

    Entrance Composite front door with glass side window.
    Entrance Hall Under stair storage and laminate wooden floor.
    Open Plan Living/ Dining. 25'1" X 9'11" (7.65m X 3.02m) Dual aspect lighting via two bay windows and laminate wood floor.
    Kitchen 16'1" X 6'1" (4.90m X 1.85m) Comprises of excellent range of units, four ring hob with stainless steel splash back and overhead stainless steel extractor unit. Under bench oven, one and a half bowl sink unit with mixer tap, integrated fridge, integrated freezer, plumbed for washer/dryer and access to rear garden .
    First Floor
    Landing Access to loft via Slingsby ladder.
    Bedroom One 12'4" X 10'0" (3.76m X 3.05m) Feature bay window and views over Black Mountain.
    Bedroom Two 10'8" X 10'3" (3.25m X 3.12m)
    Bedroom Three 6'6" X 3'5" (1.98m X 1.04m)
    Shower Room Comprises of walk in shower with glass shower screen, pedestal wash hand basin with mixer tap, low flush WC, heated towel rail, recessed lighting and extractor fan.
    Outside Enclosed rear garden with sunny aspect and raised decking. Front with enclosed forecourt , sunny aspect, light and tap.

    Broadband Speed Availability

    Ultrafast

    Potential Speeds for 75 Torrens Crescent

    Max Download
    1800
    Mbps
    Max Upload
    220
    Mbps
    The speeds indicated represent the maximum estimated fixed-line speeds as predicted by Ofcom. Please note that these are estimates, and actual service availability and speeds may differ.

    Property Location

    Show Map

    Mortgage Calculator

    Disclaimer: The following calculations act as a guide only, and are based on a typical repayment mortgage model. Financial decisions should not be made based on these calculations and accuracy is not guaranteed. Always seek professional advice before making any financial decisions.

    Contact Agent

    Contact Simon Brien (North Belfast)

    Contact Simon Brien (North Belfast)

    Request More Information
    Requesting Info about...
    75 Torrens Crescent, Belfast, County Antrim, BT14 6HS 75 Torrens Crescent, Belfast, County Antrim, BT14 6HS

    By registering your interest, you acknowledge our Privacy Policy
    Ask Holmes
    Ask Holmes
    Let's find your next home

    Are you sure you want to reset the chat?

    Checking API...