Site
114 Upper Lisburn Road
Belfast, County Antrim, BT10 0BD
offers over
£1,250,000
- Status For Sale
- Property Type Site
-
Stamp Duty
Higher amount applies when purchasing as buy to let or as an additional property£68,750 / £131,250*
Description
114 Upper Lisburn Road, Belfast - a unique opportunity to acquire a "Ready to Go Site" in a sought after location in South Belfast with close links to the Lisburn Road.
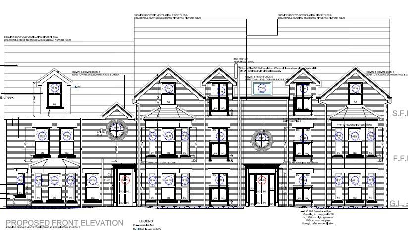
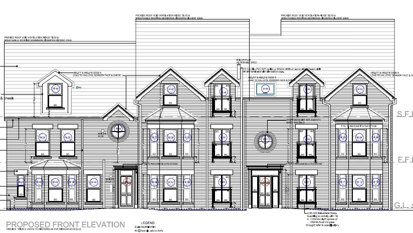
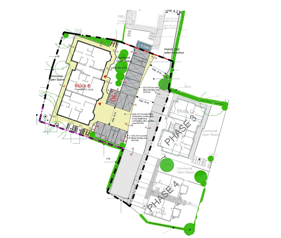
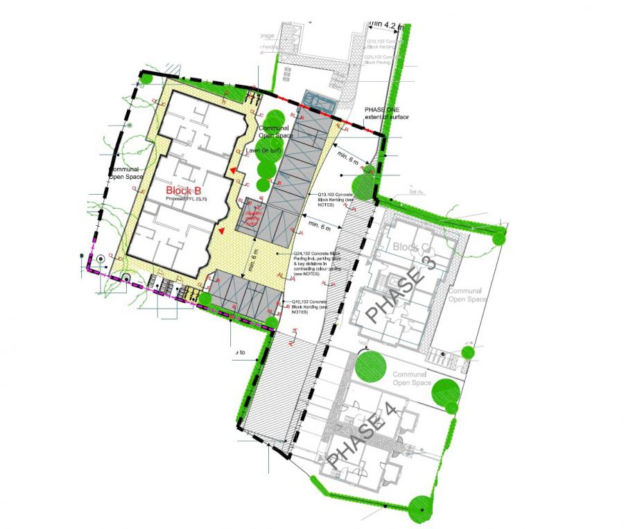
The site itself extends to approximately 0.4 Acres and benefits from close links to the Lisburn Road and Belfast City Centre. The site benefits from full planning permission under planning reference LA04/2017/0063/F granted on the 12th of April 2017. The current planning permission is approved for two apartment blocks comprising 9 and 6 apartments and two 3 bedroom detached homes.
"Apartment Block B" comprises eight 2 bedroom apartments and one 1 bedroom apartment ranging from circa 600 to 800 square feet over three storeys. "Apartment Block C" comprises six 2 bedroom apartments ranging from 664 square feet to 668 square feet. The two 3 bedroom detached homes offer circa 1,050 square feet of living space. All services including power, water, foul and storm are available on site.
The subject lands and house types in the proposed development present a unique opportunity to provide sought after new homes in an ever popular location. The concept apartment blocks and detached houses designed for the lands at 114 Upper Lisburn Road are ideal for this location, providing superb layouts and spacious living throughout. Newly built, high quality, apartments and houses would be in high demand in this location, given its close links to South Belfast and the City Centre.
The site itself extends to approximately 0.4 Acres and benefits from close links to the Lisburn Road and Belfast City Centre. The site benefits from full planning permission under planning reference LA04/2017/0063/F granted on the 12th of April 2017. The current planning permission is approved for two apartment blocks comprising 9 and 6 apartments and two 3 bedroom detached homes.
"Apartment Block B" comprises eight 2 bedroom apartments and one 1 bedroom apartment ranging from circa 600 to 800 square feet over three storeys. "Apartment Block C" comprises six 2 bedroom apartments ranging from 664 square feet to 668 square feet. The two 3 bedroom detached homes offer circa 1,050 square feet of living space. All services including power, water, foul and storm are available on site.
The subject lands and house types in the proposed development present a unique opportunity to provide sought after new homes in an ever popular location. The concept apartment blocks and detached houses designed for the lands at 114 Upper Lisburn Road are ideal for this location, providing superb layouts and spacious living throughout. Newly built, high quality, apartments and houses would be in high demand in this location, given its close links to South Belfast and the City Centre.
Property Location
Mortgage Calculator
Contact Agent
Contact Simon Brien (South Belfast)
Request More Information
Requesting Info about...
114 Upper Lisburn Road, Belfast, County Antrim, BT10 0BD
By registering your interest, you acknowledge our Privacy Policy
By registering your interest, you acknowledge our Privacy Policy