3 Bed Semi-Detached House
258 Stranmillis Road
Belfast, BT9 5DZ
per month
£1,350pm
Key Features & Description
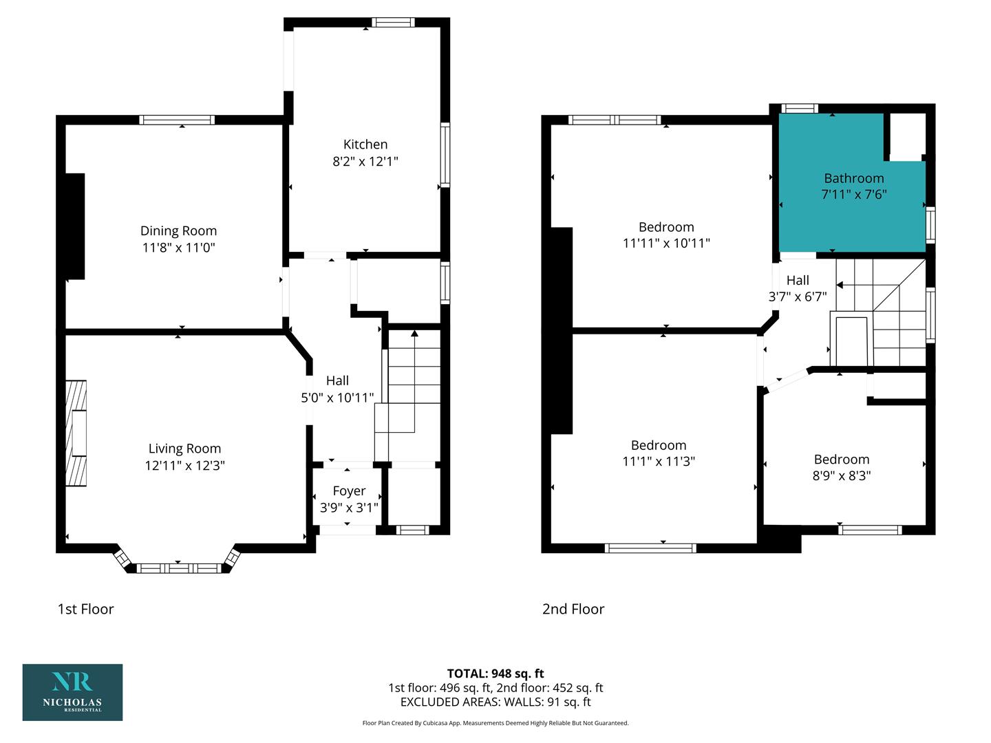
Recently renovated semi detached property located in Stranmillis
Welcoming entrance hall with two storage cupboards
Two reception rooms - one with feature gas fire
Fitted kitchen with appliances provided
Two double bedrooms & one single bedroom
White four piece bathroom suited
Gas fired central heating
Furnishings are optional
Driveway for off street parking, enclosed garden area to rear
Available immediately - not HMO registered
Description
This is a beautiful semi detached property tastefully located on Stranmillis Road of South Belfast. Amenities are close-by which include shops, boutiques, cafes, bars, and restaurants. Some of the province's leading schools are within walking distance as well as Stranmillis College, Queens University and Belfast City Hospital.
Downstairs comprises a welcoming entrance hall with two storage cupboards, two reception rooms - one with a feature gas fire and a fully fitted kitchen with appliances. Upstairs are three bedrooms and a white four piece bathroom suite.
To the front is a driveway for off street parking, to the rear is a private and enclosed garden area with outhouse for storage,
The property is ready for immediate occupancy and furnishings are optional.
Call 02890 388383 to arrange your personal viewing today!
Please note the property isn't HMO registered so would only be suitable to a family or a maximum of two individuals.
This is a beautiful semi detached property tastefully located on Stranmillis Road of South Belfast. Amenities are close-by which include shops, boutiques, cafes, bars, and restaurants. Some of the province's leading schools are within walking distance as well as Stranmillis College, Queens University and Belfast City Hospital.
Downstairs comprises a welcoming entrance hall with two storage cupboards, two reception rooms - one with a feature gas fire and a fully fitted kitchen with appliances. Upstairs are three bedrooms and a white four piece bathroom suite.
To the front is a driveway for off street parking, to the rear is a private and enclosed garden area with outhouse for storage,
The property is ready for immediate occupancy and furnishings are optional.
Call 02890 388383 to arrange your personal viewing today!
Please note the property isn't HMO registered so would only be suitable to a family or a maximum of two individuals.
Broadband Speed Availability
Potential Speeds for 258 Stranmillis Road
Max Download
10000
Mbps
Max Upload
10000
MbpsThe speeds indicated represent the maximum estimated fixed-line speeds as predicted by Ofcom. Please note that these are estimates, and actual service availability and speeds may differ.
Property Location
Contact Agent
Contact Nicholas Residential
Request More Information
Requesting Info about...
258 Stranmillis Road, Belfast, BT9 5DZ
By registering your interest, you acknowledge our Privacy Policy
By registering your interest, you acknowledge our Privacy Policy