Contact Agent

Contact CPS Commercials

Contact CPS Commercials

Commercial

22 - 24 Berry Street

Belfast, BT1 1FJ

price £275,000
  • Status Sale Agreed
  • Property Type Commercial
  • Rates
    Rate information is for guidance only and may change as sources are updated.
    £1.00
  • Stamp Duty
    Higher amount applies when purchasing as buy to let or as an additional property
    £3,750 / £17,500*
  • Typical Mortgage
    Click price to use our mortgage calculator

Property Financials

  • Price £275,000
  • Rates £1.00

Description

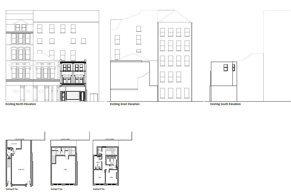
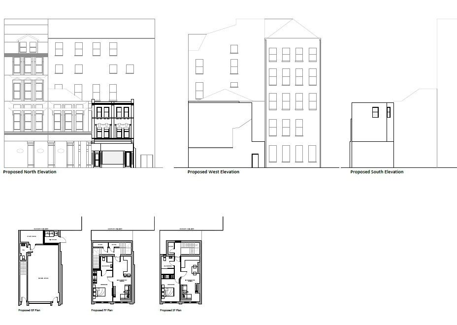
CPS are pleased to bring to the market this three-storey end-terrace mixed use commercial development based on Berry Street, Belfast. The property is currently vacant with the benefit of full planning permission for a change of use from office space at first and second floor to 2 No. 1 bedroom short term lets; which offers a great re-development opportunity.

LOCATION

The commercial property is situated on Berry Street, Belfast City Centre on a prominent corner site accessed via the short link of Berry Street off Royal Avenue and leading to Bank Square.  The area is up and coming with some significant redevelopment boasting some of Belfast’s most popular food and drink establishments; to include the likes of Mourne Seafood and Kelly Cellars.  A new boutique hotel is currently under construction at Bank Square, which is in very close proximity. 

DESCRIPTION

No. 22-24 Berry Street currently comprises a three-storey premises circa 1,440 Sqft with a ground floor retail unit and office/storage space on the first and second floor. 

The full planning permission granted May 2024 as per reference LA04/2023/3789/F is for the:

Proposed change of use from office space at first and second floor to 2no. short term holiday lets

(Planning Information Available Upon Request)

GUIDE PRICE

We have been instructed to seek a guide price of £275,000 (Two Hundred and Seventy-Five Thousand Pounds)

RATES

As per the LPS website:

    • 22 Berry Street – Office (1st Floor) – NAV £1,800 – 2024/25 Rates Payable £1,078.85
    • 24 Berry Street – Shop – NAV £5,150 – 2024/25 Rates Payable £3,086.71

VIEWING INFO

For further information or if you wish to arrange a viewing, please contact our commercial team on 

028 9562 2188 or email commercials@cps-property.com

Property Location

Show Map

Mortgage Calculator

Disclaimer: The following calculations act as a guide only, and are based on a typical repayment mortgage model. Financial decisions should not be made based on these calculations and accuracy is not guaranteed. Always seek professional advice before making any financial decisions.

Contact Agent

Contact CPS Commercials

Contact CPS Commercials

Request More Information
Requesting Info about...
22 - 24 Berry Street, Belfast, BT1 1FJ 22 - 24 Berry Street, Belfast, BT1 1FJ

By registering your interest, you acknowledge our Privacy Policy