Contact Agent

Contact CPS Belfast

Contact CPS Belfast

2 Bed Apartment

Apt E1.2 Whitehall Square

Belfast, BT12 5EU

price £179,950
  • Status Sale Agreed
  • Property Type Apartment
  • Bedrooms 2
  • Receptions 1
  • Rates
    Rate information is for guidance only and may change as sources are updated.
    £1,055.23
  • Interior Area 764.238
  • Heating Gas
  • EPC Rating B82 / B82
  • Stamp Duty
    Higher amount applies when purchasing as buy to let or as an additional property
    £1,099 / £10,097*
  • Tenure Leasehold
  • Typical Mortgage
    Click price to use our mortgage calculator
EPC Rating

Property Financials

  • Price £179,950
  • Rates £1,055.23

Description

Apt E1.2 Whitehall Square

Stylish and well-presented two -bedroom apartment situated within the ever-popular Whitehall Square, located just off the highly sought after Lisburn Road, in the heart of Belfast City Centre. This property offers opportunity for first time buyers and investors alike providing modern city living within walking distance from all key amenities and major transport links.

This modern apartment comprises of an open-plan lounge/ kitchen area, two impressive bedrooms, master with ensuite and a main bathroom with three-piece suite. This apartment benefits further from various built-in storage throughout.

Features:

Stylish Two-Bedroom Apartment

Highly Sought After City Centre Location

Open-Plan Lounge/Kitchen Area

Secure Gated Allocated Parking

Modern Fitted Kitchen Area

Two Spacious Double Bedrooms

Master Bedroom with Ensuite

Contemporary Bathroom

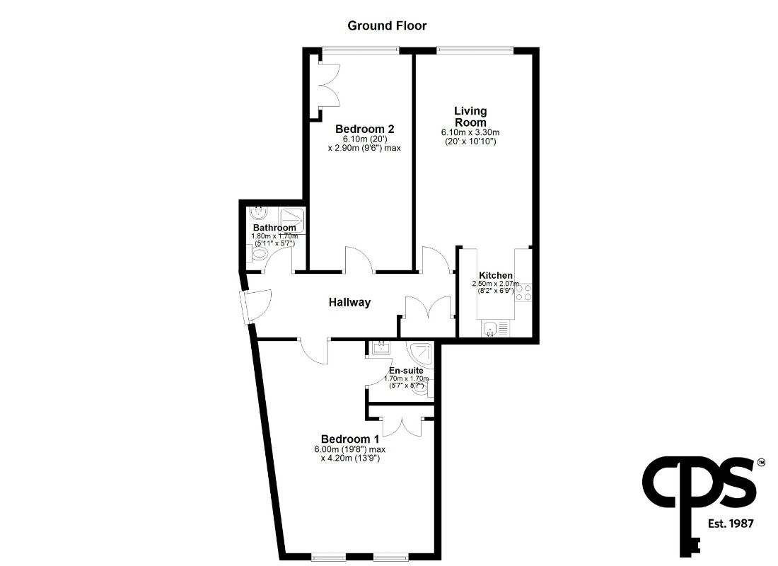
Accommodation

Entrance Hall

Welcoming hall with built-in storage.

Lounge- 5.4m x 3.3m

Spacious lounge room open to kitchen area, perfect for relaxing or entertaining.

Kitchen- 2.5m x 2.07m

Modern fitted kitchen with a range of high and low units and integrated appliance space.

Bedroom 1-6.0m x 4.2m

Generous master bedroom with ensuite. Flooded with natural light through two large windows.

Ensuite- 1.7m x 1.7m

Modern ensuite with three-piece white suite, including corner shower, WC and wash hand basin.

Bedroom 2- 2.9m x 6.1m

Spacious second bedroom with built in storage. Ideal for guest room or home office.

Bathroom- 1.8m x 1.7m

Contemporary bathroom suite comprising shower, wash hand basin and WC.

 

CPS Property are delighted to present 8 Kitchener Street, a beautifully presented two-bedroom mid terrace home set in a highly convenient South Belfast location. Finished to an excellent standard throughout, this property offers two bright reception rooms, a modern fitted kitchen, and a contemporary bathroom suite, complemented by uPVC windows and doors, mains gas central heating with a combi boiler, and upgraded PVC fascia and guttering. With stylish internal finishes and a privately enclosed rear yard, this is an ideal home for first time buyers and investors alike seeking a move in ready property close to local amenities and transport links. 

 

For more information or to arrange a viewing, please contact our Belfast office on 028 9095 8888 and speak with a member of our sales team. 

 

Features:

Two Bedrooms 

Two Reception Rooms 

Excellent Condition Throughout 

uPVC Windows and External Doors 

PVC Facia, Downspouts and Guttering 

Main Gas Central Heating with Combi Boiler 

Modern Fitted Kitchen  

Modern Three-Piece Bathroom Suite 

 

Accommodation:

Entrance Hall – 1m x 4.09m 

Internal glass panel door, light wood effect laminate flooring, feature wall panelling, double panel radiator. 

Front Reception Room - 2.97m x 3.2m 

Light wood effect laminate flooring, double panel radiator. 

Rear Reception Room - 2.94m x 2.66m  

Light wood effect laminate flooring, feature wall panelling, anthracite vertical radiator.  

Kitchen – 5.45m x 2.38m  

Tile flooring, range of high- and low-level units, stone effect worktops, integrated single oven, four ring ceramic hob, cooker hood, under cabinet LED lighting, brick tile splashback surround, plumbed with undercounter space for a washing machine, double panel radiator, external glass panel PVC door leading to the rear yard. 

Storage Room - 1.75m x 1.99m 

Tile flooring, range of integrated storage cupboards.  

Stairs & Landing 

Fitted carpet. 

Bedroom 1 – 4.37m x 2.99m  

Spacious double bedroom, fitted carpet, double panel radiator. 

Bedroom 2 - 2.13m x 3.32m  

Double bedroom, fitted carpet, double panel radiator, storage cupboard.  

Bathroom - 2.06m x 2.07m  

Tile flooring, walls partially tiled, chrome effect corner shower enclosure, electric shower with wand attachment, low flush WC, vanity sink unit with chrome mixer tap, chrome effect towel heater, extractor fan. 

Outside 

Privately enclosed rear yard, feature timber slatted panelling. 

 

CUSTOMER DUE DILIGENCE
As a business providing estate agency services, we are legally required to verify the identity of both the vendor and the purchaser in accordance with the Money Laundering, Terrorist Financing and Transfer of Funds (Information on the Payer) Regulations 2017.

In order to buy or sell a property in the United Kingdom, estate agents must carry out identity checks on customers involved in the transaction to meet their obligations under Anti-Money Laundering legislation.

These checks are conducted on our behalf by a third-party provider, and a charge of £25 + VAT per person will apply.

Further information on the legislation is available at  www.legislation.gov.uk.

 

 

Property Location

Show Map

Mortgage Calculator

Disclaimer: The following calculations act as a guide only, and are based on a typical repayment mortgage model. Financial decisions should not be made based on these calculations and accuracy is not guaranteed. Always seek professional advice before making any financial decisions.

Contact Agent

Contact CPS Belfast

Contact CPS Belfast

Request More Information
Requesting Info about...
Apt E1.2 Whitehall Square, Belfast, BT12 5EU Apt E1.2 Whitehall Square, Belfast, BT12 5EU

By registering your interest, you acknowledge our Privacy Policy