4 Bed Detached House
48 Dunmurry Lane
Dunmurry, Belfast, BT17 9JR
offers over
£575,000
Key Features & Description
Attractive Detached Family Home in a Prestigious Residential Location
Lounge with Dining Area and Bay Window
Dining Room Leading to Sun Room
Separate Living Room
Kitchen with Breakfast Area / Utility Room
4 Well Proportioned Bedrooms, 2 with Ensuite (one currently used as a 1st Floor Living Room)
Family Bathroom / Ground Floor Cloakroom with WC
Integral Garage/Driveway Parking/Oil Fired Central Heating
Generous Site with Mature Front & Rear Gardens in Lawns
Convenient to Amenities Including Shops, Public Transport and Leading Schools
Description
This attractive, detached family home is situated in a prime and much sought after residential location just off the prestigious Upper Malone Road and close to Dunmurry crossroads.
The property is well presented by the current owner and offers spacious, well-proportioned accommodation.
The internal accommodation benefits from the impressive reception hall, generous lounge which is open plan to a dining area, a dining room which leads to a delightful sun room overlooking the rear garden, a separate living room, fitted kitchen with breakfast area and utility room along with a guest cloakroom with wc all on the ground floor.
On the first floor there are four bedrooms, including two with ensuite bathroom and a bathroom with white suite.
The internal accommodation is perfectly complemented by the generous mature site with gardens in lawns to the front and rear along with a sheltered sitting area, driveway parking and an integral garage.
Providing superb value for money and endless potential this fine home is ideally located close to many local amenities including shops and public transport along with convenience to leisure facilities such as The Lagan Towpath, Sir Thomas and Lady Dixon Park and local golf clubs, viewing is highly recommended.
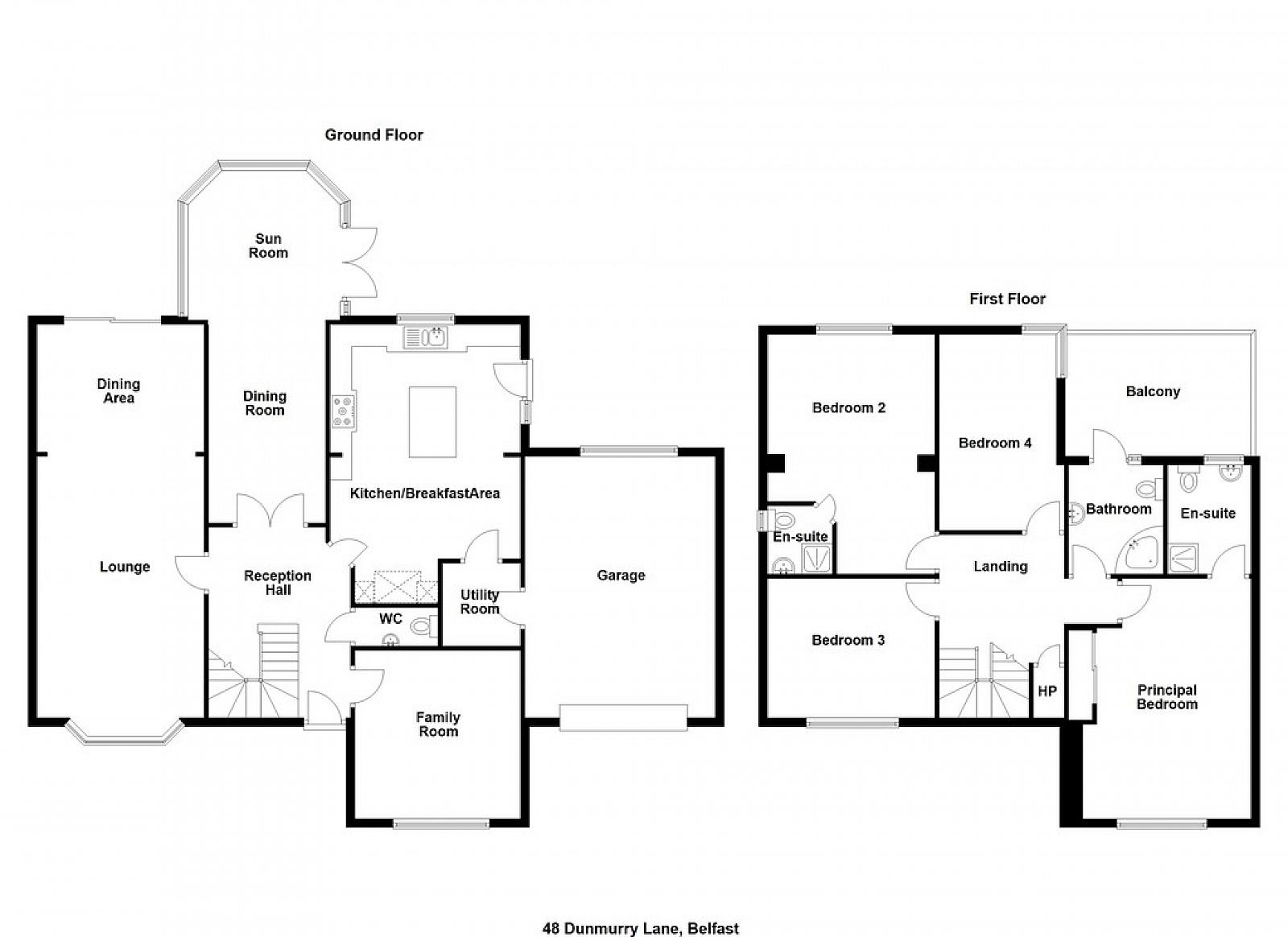
Covered entrance porch with tiled floor, hardwood front door to reception hall.
RECEPTION HALL Wood flooring.
CLOAKROOM Wash hand basin, low flush WC, extractor fan, tiled floor.
LOUNGE OPEN PLAN TO DINING AREA 30' 9" x 12' 5" (9.37m x 3.78m) (@ widest points) Attractive fireplace, part Chinese slate floor, glazed sliding doors to rear garden, cornice ceiling, bay window.
LIVING ROOM 12' 5" x 12' 6" (3.78m x 3.81m) Cornice ceiling.
DINING ROOM LEADING TO SUN ROOM 25' 6" x 11' 5" (7.77m x 3.48m) (overall @ widest points) Tiled floor, part vaulted tongue and groove ceiling, low voltage spotlights, uPVC double glazed patio doors to rear.
KITCHEN WITH BREAKFAST AREA 18' 9" x 14' 3" (5.72m x 4.34m) Range of high and low level units, granite work surfaces, 1.5 bowl stainless steel sink unit with granite drainer, Britannia cooker range with gas hob, electric oven, extractor fan, stainless steel splashback over, integrated dishwasher, plate rack, glass display cabinets, island unit with matching granite work surfaces, breakfast bar, external access, part tiled walls, tiled floor, low voltage spotlights, housing and plumbing for American fridge freezer.
UTILITY ROOM 6' 1" x 5' 9" (1.85m x 1.75m) Plumbing for washing machine, tiled floor, service door to garage.
FIRST FLOOR LANDING Feature coloured glass window, access to roof space, hot press.
BEDROOM 17' 7" x 11' 11" (5.36m x 3.63m) Laminate wood effect floor.
ENSUITE SHOWER ROOM White suite comprising pedestal wash hand basin, low flush WC, fully tiled shower cubicle with Mira shower, part tiled walls, low voltage spotlights, tiled floor.
BEDROOM 16' 5" x 12' 5" (5m x 3.78m) Wood flooring.
ENSUITE SHOWER ROOM White suite comprising vanity unit, low flush WC, fully tiled shower cubicle, tiled floor, tongue and groove ceiling, low voltage spotlights.
BEDROOM 12' 7" x 10' 5" (3.84m x 3.18m) Laminate wood effect floor.
BEDROOM 14' 4" x 9' 5" (4.37m x 2.87m) Laminate wood effect floor.
BATHROOM White suite comprising corner panelled bath with multi-jets, low flush WC, pedestal wash hand basin, fully tiled walls, tongue and groove ceiling, spotlights, tiled floor.
OUTSIDE Front garden in lawns, tarmac driveway with parking for several cars leading to integral garage. Delightfully enclosed and private rear garden in lawns, paviour sitting area, mature trees and planting, boundary fence, steps to upper tier with further mature planting and sheltered sitting area.
INTEGRAL GARAGE 19' 5" x 13' 8" (5.92m x 4.17m) Up and over door, power and light, oil fired boiler.
This attractive, detached family home is situated in a prime and much sought after residential location just off the prestigious Upper Malone Road and close to Dunmurry crossroads.
The property is well presented by the current owner and offers spacious, well-proportioned accommodation.
The internal accommodation benefits from the impressive reception hall, generous lounge which is open plan to a dining area, a dining room which leads to a delightful sun room overlooking the rear garden, a separate living room, fitted kitchen with breakfast area and utility room along with a guest cloakroom with wc all on the ground floor.
On the first floor there are four bedrooms, including two with ensuite bathroom and a bathroom with white suite.
The internal accommodation is perfectly complemented by the generous mature site with gardens in lawns to the front and rear along with a sheltered sitting area, driveway parking and an integral garage.
Providing superb value for money and endless potential this fine home is ideally located close to many local amenities including shops and public transport along with convenience to leisure facilities such as The Lagan Towpath, Sir Thomas and Lady Dixon Park and local golf clubs, viewing is highly recommended.
Covered entrance porch with tiled floor, hardwood front door to reception hall.
RECEPTION HALL Wood flooring.
CLOAKROOM Wash hand basin, low flush WC, extractor fan, tiled floor.
LOUNGE OPEN PLAN TO DINING AREA 30' 9" x 12' 5" (9.37m x 3.78m) (@ widest points) Attractive fireplace, part Chinese slate floor, glazed sliding doors to rear garden, cornice ceiling, bay window.
LIVING ROOM 12' 5" x 12' 6" (3.78m x 3.81m) Cornice ceiling.
DINING ROOM LEADING TO SUN ROOM 25' 6" x 11' 5" (7.77m x 3.48m) (overall @ widest points) Tiled floor, part vaulted tongue and groove ceiling, low voltage spotlights, uPVC double glazed patio doors to rear.
KITCHEN WITH BREAKFAST AREA 18' 9" x 14' 3" (5.72m x 4.34m) Range of high and low level units, granite work surfaces, 1.5 bowl stainless steel sink unit with granite drainer, Britannia cooker range with gas hob, electric oven, extractor fan, stainless steel splashback over, integrated dishwasher, plate rack, glass display cabinets, island unit with matching granite work surfaces, breakfast bar, external access, part tiled walls, tiled floor, low voltage spotlights, housing and plumbing for American fridge freezer.
UTILITY ROOM 6' 1" x 5' 9" (1.85m x 1.75m) Plumbing for washing machine, tiled floor, service door to garage.
FIRST FLOOR LANDING Feature coloured glass window, access to roof space, hot press.
BEDROOM 17' 7" x 11' 11" (5.36m x 3.63m) Laminate wood effect floor.
ENSUITE SHOWER ROOM White suite comprising pedestal wash hand basin, low flush WC, fully tiled shower cubicle with Mira shower, part tiled walls, low voltage spotlights, tiled floor.
BEDROOM 16' 5" x 12' 5" (5m x 3.78m) Wood flooring.
ENSUITE SHOWER ROOM White suite comprising vanity unit, low flush WC, fully tiled shower cubicle, tiled floor, tongue and groove ceiling, low voltage spotlights.
BEDROOM 12' 7" x 10' 5" (3.84m x 3.18m) Laminate wood effect floor.
BEDROOM 14' 4" x 9' 5" (4.37m x 2.87m) Laminate wood effect floor.
BATHROOM White suite comprising corner panelled bath with multi-jets, low flush WC, pedestal wash hand basin, fully tiled walls, tongue and groove ceiling, spotlights, tiled floor.
OUTSIDE Front garden in lawns, tarmac driveway with parking for several cars leading to integral garage. Delightfully enclosed and private rear garden in lawns, paviour sitting area, mature trees and planting, boundary fence, steps to upper tier with further mature planting and sheltered sitting area.
INTEGRAL GARAGE 19' 5" x 13' 8" (5.92m x 4.17m) Up and over door, power and light, oil fired boiler.
Broadband Speed Availability
Potential Speeds for 48 Dunmurry Lane
Max Download
10000
Mbps
Max Upload
10000
MbpsThe speeds indicated represent the maximum estimated fixed-line speeds as predicted by Ofcom. Please note that these are estimates, and actual service availability and speeds may differ.
Property Location
Mortgage Calculator
Contact Agent
Contact Fetherstons (South Belfast)
Request More Information
Requesting Info about...
48 Dunmurry Lane, Dunmurry, Belfast, BT17 9JR
By registering your interest, you acknowledge our Privacy Policy
By registering your interest, you acknowledge our Privacy Policy