3 Bed Apartment
126 The Rose Garden
Dunmurry, Belfast, BT17 9GY
offers over
£189,950
Key Features & Description
Superb Duplex 2nd Floor Apartment in a Popular Modern Development
Delightful Lounge with Access to Sheltered Balcony Sitting Area
Luxury Fitted Kitchen with Appliances & Open Plan to Dining Area
3 Bedrooms Including 1 on Mezzanine
Bathroom with White Suite
Adaptable Accomodation, Mezzanine Level Could Be Used as Home Office or Additional Sitting Room
Gas Central Heating/Double Glazed Windows/Exceptional Presentation Throughout
Private, South Facing Sun Terrace
Secure Gated Residents Parking
Convenient to a Wide Range of Amenities Including Public Transport
Description
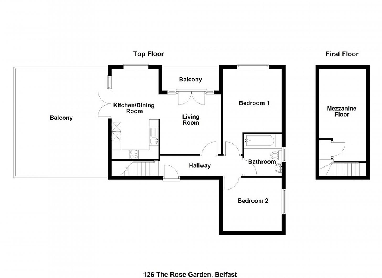
This superb 2nd floor duplex apartment is located within a highly regarded and modern complex on Queensway, close to Dunmurry. The property will be of interest to a range of prospective buyers given the spacious room sizes and excellent location.
The property is extremely well presented and tastefully decorated by the current owner and offers spacious, well-proportioned accommodation which is finished to an extremely high specification throughout.
The internal accommodation benefits from the generous lounge with vaulted ceiling and access to a sheltered balcony sitting area along with a modern kitchen which is open plan to the dining area.
In addition, there are two double bedrooms and a bathroom along with a mezzanine level which currently provides a third bedroom but which could be adapted to a home office or additional reception space.
The internal accommodation is perfectly complemented by the access from the kitchen/dining area to a private and south facing sun terrace.
The property also benefits from gas central heating, double glazing and secure gated residents parking.
This fine apartment is ideally located close to many local amenities including shops, public parks and public transport as well as convenience to the motorway network.
Viewing is highly recommended.
Communal front door to communal entrance hall.
COMMUNAL ENTRANCE HALL Stairs and lift to second floor.
SECOND FLOOR Communal landing, front door to entrance hall.
ENTRANCE HALL Laminate wood effect floor, access to part floored roof space via ladder.
LOUNGE 10' 11" x 10' 7" (3.33m x 3.23m) Laminate wood effect floor, vaulted ceiling, double glazed patio doors to sheltered balcony sitting area.
KITCHEN WITH DINING AREA 16' 4" x 8' 3" (4.98m x 2.51m) Range of high and low level units, work surfaces, single drainer stainless steel sink unit with mixer tap, Indesit four ring h with extractor fan over, electric oven under, plumbed for washing machine, part tiled walls, tile effect floor, integrated dishwasher, integrated fridge/freezer, low voltage spotlights, uPVC double glazed patio doors to sun terrace.
BEDROOM 15' 3" x 10' 5" (4.65m x 3.18m) Laminate wood effect floor.
BEDROOM 10' 5" x 9' 6" (3.18m x 2.9m) Laminate wood effect floor.
BATHROOM White suite comprising of panelled bath with mixer tap and shower over, low flush WC, pedestal wash hand basin with splash tiling, tiled floor part tiled walls, extractor fan.
UPPER FLOOR
LANDING
MEZZANINE BEDROOM 16' 5" x 8' 3" (5m x 2.51m) Overlook lounge, with the potential to be used as additional reception space.
OUTSIDE Remote control entrance gates leading to residents parking. Access to superb enclosed and private south facing sun terrace.
This superb 2nd floor duplex apartment is located within a highly regarded and modern complex on Queensway, close to Dunmurry. The property will be of interest to a range of prospective buyers given the spacious room sizes and excellent location.
The property is extremely well presented and tastefully decorated by the current owner and offers spacious, well-proportioned accommodation which is finished to an extremely high specification throughout.
The internal accommodation benefits from the generous lounge with vaulted ceiling and access to a sheltered balcony sitting area along with a modern kitchen which is open plan to the dining area.
In addition, there are two double bedrooms and a bathroom along with a mezzanine level which currently provides a third bedroom but which could be adapted to a home office or additional reception space.
The internal accommodation is perfectly complemented by the access from the kitchen/dining area to a private and south facing sun terrace.
The property also benefits from gas central heating, double glazing and secure gated residents parking.
This fine apartment is ideally located close to many local amenities including shops, public parks and public transport as well as convenience to the motorway network.
Viewing is highly recommended.
Communal front door to communal entrance hall.
COMMUNAL ENTRANCE HALL Stairs and lift to second floor.
SECOND FLOOR Communal landing, front door to entrance hall.
ENTRANCE HALL Laminate wood effect floor, access to part floored roof space via ladder.
LOUNGE 10' 11" x 10' 7" (3.33m x 3.23m) Laminate wood effect floor, vaulted ceiling, double glazed patio doors to sheltered balcony sitting area.
KITCHEN WITH DINING AREA 16' 4" x 8' 3" (4.98m x 2.51m) Range of high and low level units, work surfaces, single drainer stainless steel sink unit with mixer tap, Indesit four ring h with extractor fan over, electric oven under, plumbed for washing machine, part tiled walls, tile effect floor, integrated dishwasher, integrated fridge/freezer, low voltage spotlights, uPVC double glazed patio doors to sun terrace.
BEDROOM 15' 3" x 10' 5" (4.65m x 3.18m) Laminate wood effect floor.
BEDROOM 10' 5" x 9' 6" (3.18m x 2.9m) Laminate wood effect floor.
BATHROOM White suite comprising of panelled bath with mixer tap and shower over, low flush WC, pedestal wash hand basin with splash tiling, tiled floor part tiled walls, extractor fan.
UPPER FLOOR
LANDING
MEZZANINE BEDROOM 16' 5" x 8' 3" (5m x 2.51m) Overlook lounge, with the potential to be used as additional reception space.
OUTSIDE Remote control entrance gates leading to residents parking. Access to superb enclosed and private south facing sun terrace.
Broadband Speed Availability
Potential Speeds for 126 The Rose Garden
Max Download
1800
Mbps
Max Upload
220
MbpsThe speeds indicated represent the maximum estimated fixed-line speeds as predicted by Ofcom. Please note that these are estimates, and actual service availability and speeds may differ.
Property Location
Mortgage Calculator
Contact Agent
Contact Fetherstons (South Belfast)
Request More Information
Requesting Info about...
126 The Rose Garden, Dunmurry, Belfast, BT17 9GY
By registering your interest, you acknowledge our Privacy Policy
By registering your interest, you acknowledge our Privacy Policy