3 Bed Apartment
66 St Johns Wharf, 1-3 Laganbank Road
Belfast, BT1 3LT
offers over
£269,950
Key Features & Description
Superb Apartment in A Prime City Centre Location Extending To 1,374 Square Feet
Three Large Double Bedrooms - Main Bedroom Has An Ensuite & Feature Balcony
Very Spacious Lounge with Dining Area With Feature Balcony
Open To Kitchen
Family Shower Room
Gas Central Heating / Double Glazed Windows
Secure Allocated Parking Within Garage
Access to Idyllic Walkway Along River Lagan
Chain Free
Ideal for Investors or Owner Occupiers
Description
This city centre apartment offers excellent accommodation extending to 1,347 square feet. The room proportions are strong across the whole property. Comprising of three generous bedrooms - main bedroom with an ensuite, a extra large open plan kitchen / living / dining room and another shower room.
Apartments this size dont come onto the market that frequently and the apartment offers panoramic views of Cavehill, Belfast Castle, the iconic H&W cranes and Stormont.
The apartment has allocated parking within the gated development situated within the garage at ground level.
Within a few minutes walk of Belfast City centre this property is ideal for investors or owner occupiers and viewing is highly recommended
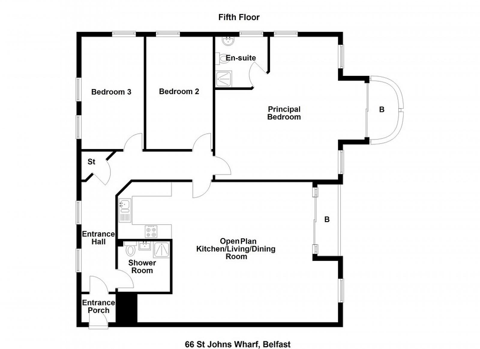
Communal entrance. Stairs and lift access to 6th floor.
Hardwood front door into...
ENTRANCE HALL Storage cupboard. Cornice ceiling. Laminate floor.
SHOWER ROOM Corner shower enclosure with thermostatic shower unit. Wall mounted wash hand basin with mixer tap and splash back. Low flush wc. Extractor fan.
KITCHEN / LIVING / DINING ROOM 27' 4" x 19' 3" (8.337m x 5.883m) Fantastic spacious room with views over Belfast. Range of high and low level units with formica worktops. 1.5 stainless steel sink unit with mixer tap. Integrated oven with matching hob and a stainless steel etxractor hood. Bosch integrated dishwasher. Plumbed for washing machine and space for fridge freezer. Tiled walls and floors within the kitchen area. Feature balcony accessed via glazed sliding doors. Continuation of laminate floor.
MAIN BEDROOM 21' 4" x 19' 8" (6.503m x 5.995m) awp Sliding glazed doors to feature balcony with excellent views across Belfast.
ENSUITE Corner shower with thermostatic shower unit. Pedestal wash hand basin with splash back. Low flush wc. Extractor fan.
BEDROOM TWO 15' 6" x 9' 5" (4.726m x 2.886m) Continuation of laminate floor.
BEDROOM THREE 15' 5" x 8' 9" (4.721m x 2.680m) Spacious corner bedroom with excellent views across Belfast. Laminate floor.
OUSTIDE Secure remote control entrance gates to allocated parking
This city centre apartment offers excellent accommodation extending to 1,347 square feet. The room proportions are strong across the whole property. Comprising of three generous bedrooms - main bedroom with an ensuite, a extra large open plan kitchen / living / dining room and another shower room.
Apartments this size dont come onto the market that frequently and the apartment offers panoramic views of Cavehill, Belfast Castle, the iconic H&W cranes and Stormont.
The apartment has allocated parking within the gated development situated within the garage at ground level.
Within a few minutes walk of Belfast City centre this property is ideal for investors or owner occupiers and viewing is highly recommended
Communal entrance. Stairs and lift access to 6th floor.
Hardwood front door into...
ENTRANCE HALL Storage cupboard. Cornice ceiling. Laminate floor.
SHOWER ROOM Corner shower enclosure with thermostatic shower unit. Wall mounted wash hand basin with mixer tap and splash back. Low flush wc. Extractor fan.
KITCHEN / LIVING / DINING ROOM 27' 4" x 19' 3" (8.337m x 5.883m) Fantastic spacious room with views over Belfast. Range of high and low level units with formica worktops. 1.5 stainless steel sink unit with mixer tap. Integrated oven with matching hob and a stainless steel etxractor hood. Bosch integrated dishwasher. Plumbed for washing machine and space for fridge freezer. Tiled walls and floors within the kitchen area. Feature balcony accessed via glazed sliding doors. Continuation of laminate floor.
MAIN BEDROOM 21' 4" x 19' 8" (6.503m x 5.995m) awp Sliding glazed doors to feature balcony with excellent views across Belfast.
ENSUITE Corner shower with thermostatic shower unit. Pedestal wash hand basin with splash back. Low flush wc. Extractor fan.
BEDROOM TWO 15' 6" x 9' 5" (4.726m x 2.886m) Continuation of laminate floor.
BEDROOM THREE 15' 5" x 8' 9" (4.721m x 2.680m) Spacious corner bedroom with excellent views across Belfast. Laminate floor.
OUSTIDE Secure remote control entrance gates to allocated parking
Property Location
Mortgage Calculator
Contact Agent
Contact Fetherstons (East Belfast)
Request More Information
Requesting Info about...
66 St Johns Wharf, 1-3 Laganbank Road, Belfast, BT1 3LT
By registering your interest, you acknowledge our Privacy Policy
By registering your interest, you acknowledge our Privacy Policy