3 Bed Semi Detached
36 Locksley Park
Upper Lisburn Road, Belfast, BT10 0AR
offers over
£299,950
Key Features & Description
Attractive Semi Detached Family Home in a Prime Location
Delightful Living Room with Bay Window
Separate Dining Room
Fitted Kitchen with Breakfast Area
3 Bedrooms
Family Bathroom / Ground Floor Cloakroom with WC
Priced to Allow for Some Updating
Double Glazed Windows / Oil Fired Central Heating
Driveway Parking / Detached Garage
Convenient to many Amenities including Shops & Public Transport
Description
This attractive semi detached property is situated on a prime site on the ever popular Locksley Park, just off Upper Lisburn Road.
The property has been immaculately maintained and presented by the current owners and is priced to allow for some updating offering spacious, well proportioned accommodation.
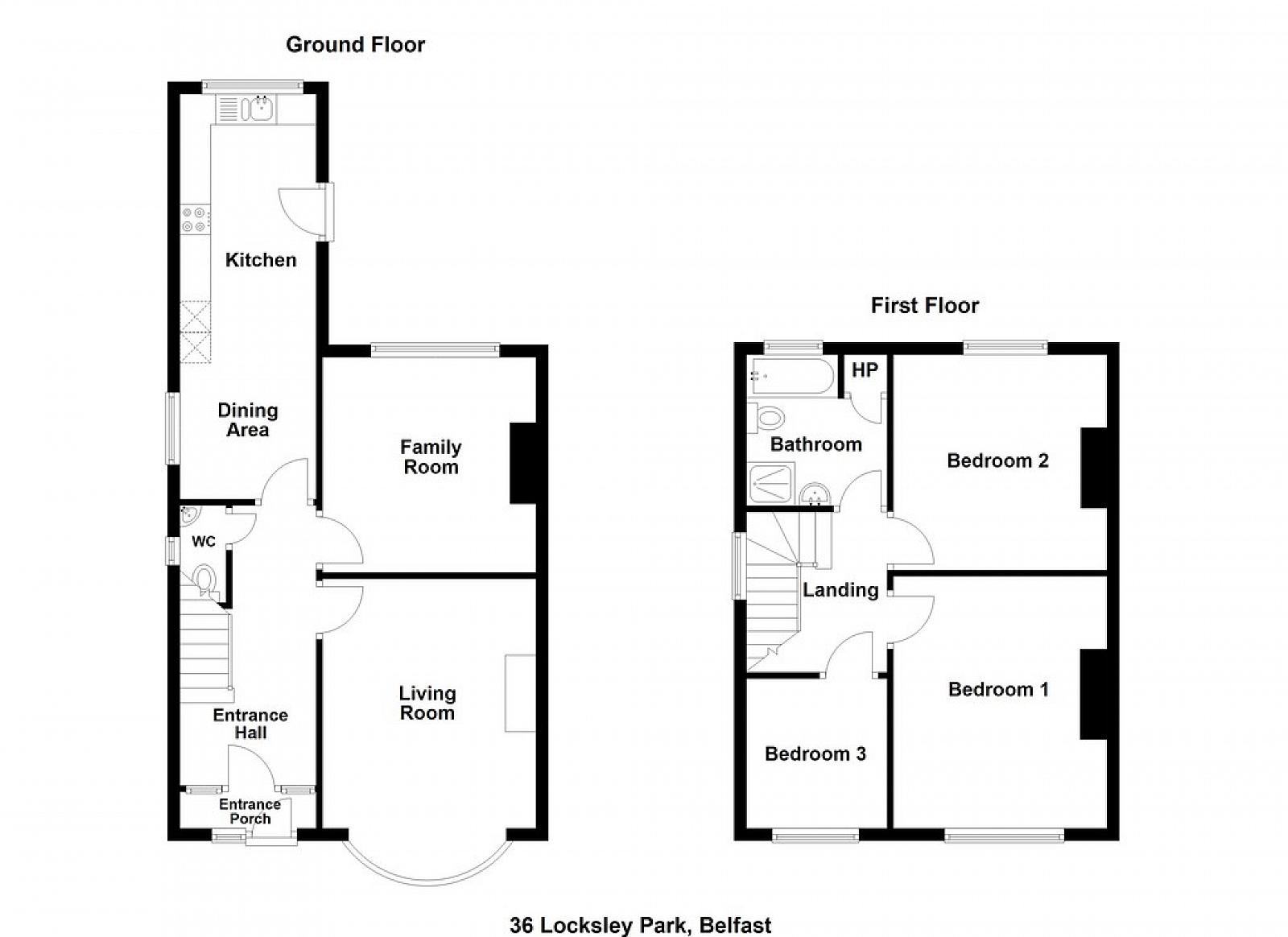
The internal accommodation briefly comprises a welcoming reception hall, living room with bay window, separate dining room, a fitted kitchen with breakfast area and guest wc on the ground floor. On the first floor there are three bedrooms and a family bathroom.
The internal accommodation is perfectly complimented by the generous site with gardens to the front and rear with sheltered sitting areas along with a driveway and detached garage.
This fine home is ideally located close to many local amenities including shops, leading schools and public transport.
Arched glazed double front doors to entrance porch.
ENTRANCE PORCH Terrazzo floor, glazed door with glazed side windows to reception hall.
RECEPTION HALL Wood panelled walls.
CLOAKROOM White suite comprising low flush WC, pedestal wash hand basin, splash tiling.
LIVING ROOM 17' 1" x 11' 4" (5.21m x 3.45m) Picture rail, cornice ceiling, bay window, tiled fireplace.
DINING ROOM 11' 5" x 11' 4" (3.48m x 3.45m) Picture rail.
KITCHEN WITH BREAKFAST AREA 21' 11" x 7' 4" (6.68m x 2.24m) Range of high and low level units, work surfaces, 1.5 bowl single drainer stainless steel sink unit with mixer tap, space for cooker, plumbed for washing machine, space for fridge freezer, part tiled walls, external access.
FIRST FLOOR LANDING Access via Slingsby ladder to floored roof space with light.
BEDROOM 11' 6" x 11' 4" (3.51m x 3.45m) Picture rail.
BEDROOM 13' 4" x 11' 4" (4.06m x 3.45m) Picture rail.
BEDROOM 11' 10" x 7' 5" (3.61m x 2.26m) Picture rail.
BATHROOM Light coloured suite comprising panelled bath with mixer tap, low flush WC, pedestal wash hand basin, fully tiled shower cubicle, fully tiled walls, tongue and groove ceiling, airing cupboard.
OUTSIDE Front garden in lawns, tarmac driveway with parking for several cars, access to detached garage. Superb and enclosed rear garden in lawns with boundary hedge and spacious sheltered sitting area.
DETACHED GARAGE 22' 4" x 11' 6" (6.81m x 3.51m) Roller shutter door, power and light.
This attractive semi detached property is situated on a prime site on the ever popular Locksley Park, just off Upper Lisburn Road.
The property has been immaculately maintained and presented by the current owners and is priced to allow for some updating offering spacious, well proportioned accommodation.
The internal accommodation briefly comprises a welcoming reception hall, living room with bay window, separate dining room, a fitted kitchen with breakfast area and guest wc on the ground floor. On the first floor there are three bedrooms and a family bathroom.
The internal accommodation is perfectly complimented by the generous site with gardens to the front and rear with sheltered sitting areas along with a driveway and detached garage.
This fine home is ideally located close to many local amenities including shops, leading schools and public transport.
Arched glazed double front doors to entrance porch.
ENTRANCE PORCH Terrazzo floor, glazed door with glazed side windows to reception hall.
RECEPTION HALL Wood panelled walls.
CLOAKROOM White suite comprising low flush WC, pedestal wash hand basin, splash tiling.
LIVING ROOM 17' 1" x 11' 4" (5.21m x 3.45m) Picture rail, cornice ceiling, bay window, tiled fireplace.
DINING ROOM 11' 5" x 11' 4" (3.48m x 3.45m) Picture rail.
KITCHEN WITH BREAKFAST AREA 21' 11" x 7' 4" (6.68m x 2.24m) Range of high and low level units, work surfaces, 1.5 bowl single drainer stainless steel sink unit with mixer tap, space for cooker, plumbed for washing machine, space for fridge freezer, part tiled walls, external access.
FIRST FLOOR LANDING Access via Slingsby ladder to floored roof space with light.
BEDROOM 11' 6" x 11' 4" (3.51m x 3.45m) Picture rail.
BEDROOM 13' 4" x 11' 4" (4.06m x 3.45m) Picture rail.
BEDROOM 11' 10" x 7' 5" (3.61m x 2.26m) Picture rail.
BATHROOM Light coloured suite comprising panelled bath with mixer tap, low flush WC, pedestal wash hand basin, fully tiled shower cubicle, fully tiled walls, tongue and groove ceiling, airing cupboard.
OUTSIDE Front garden in lawns, tarmac driveway with parking for several cars, access to detached garage. Superb and enclosed rear garden in lawns with boundary hedge and spacious sheltered sitting area.
DETACHED GARAGE 22' 4" x 11' 6" (6.81m x 3.51m) Roller shutter door, power and light.
Broadband Speed Availability
Potential Speeds for 36 Locksley Park
Max Download
10000
Mbps
Max Upload
10000
MbpsThe speeds indicated represent the maximum estimated fixed-line speeds as predicted by Ofcom. Please note that these are estimates, and actual service availability and speeds may differ.
Property Location
Mortgage Calculator
Contact Agent
Contact Fetherstons (South Belfast)
Request More Information
Requesting Info about...
36 Locksley Park, Upper Lisburn Road, Belfast, BT10 0AR
By registering your interest, you acknowledge our Privacy Policy
By registering your interest, you acknowledge our Privacy Policy