3 Bed Semi Detached
8 Berkley Court
Newtownbreda Road, Belfast, BT8 7FJ
offers over
£235,000
Key Features & Description
Extended Semi Detached Property in a Quiet Cul-de-Sac Location
Spacious Lounge with Feature Fireplace
Modern Fitted Kitchen Open Plan to Dining Area
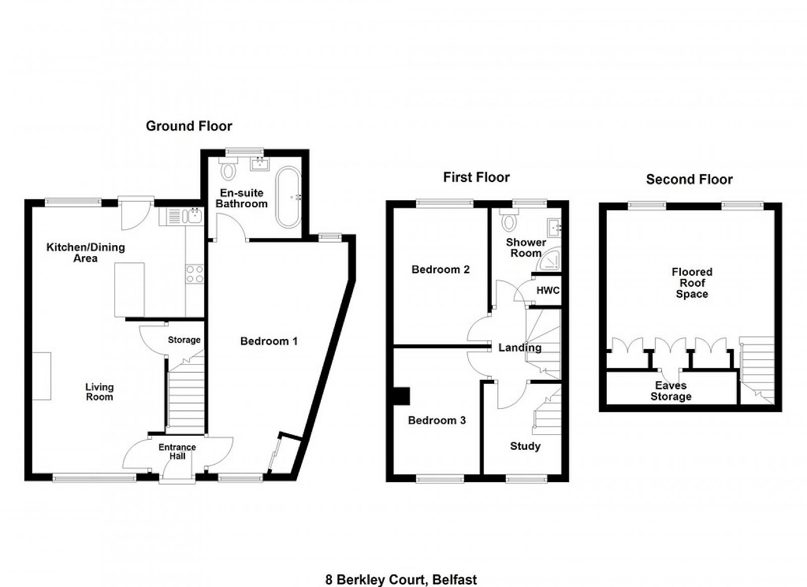
3 Bedrooms plus Study / Office & Attic Room
Adaptable Accommodation as the Grd Floor Bedroom has Potential to Be Used As An Additional Reception
Ground Floor Bathroom / 1st Floor Shower Room
Oil Fired Central Heating / Double Glazed Windows
Well Presented Throughout
Enclosed and Paved Rear Garden Sitting Area with Further Raised Sitting Area
Convenient to Amenities Including Shops, Public Transport and Leading Schools
Description
This attractive, extended semi detached property is situated in a prime cul-de-sac location just off Newtownbreda Road.
The property is extremely well presented and tastefully decorated by the current owner and offers spacious, well-proportioned accommodation.
The internal accommodation benefits from the generous lounge with feature fireplace, modern kitchen which is open plan to breakfast area and a bedroom with adjoining bathroom on the ground floor. On the first floor there are two further bedrooms, shower room and an office/study with stairs leading to large converted attic room with windows overlooking the back garden and built in wardrobes.
The adaptable accommodation could also be changed to provide an additional ground floor reception room.
The internal accommodation is perfectly complemented by the enclosed and paved rear garden sitting area along with a further raised sitting area and ample driveway parking.
This fine home is ideally located close to many local amenities including shops and public transport; viewing is highly recommended.
Front door to entrance hall.
ENTRANCE HALL
LOUNGE 11' 4" x 13' 2" (3.45m x 4.01m) Laminate wood effect floor, feature cast iron fireplace, slate hearth wood beam mantle.
OPEN PLAN TO KITCHEN WITH DINING AREA 14' 6" x 9' 6" (4.42m x 2.9m) Range of high and low level units, work surfaces with matching splash back, 1.5 bowl single drainer stainless steel sink unit with mixer tap, space for cooker, plumbed for washing machine, part tiled walls, laminate wood effect floor, external access, breakfast bar.
BEDROOM (POTENTIAL ADDITONAL RECEPTION ROOM) 19' 9" x 12' 1" (6.02m x 3.68m) Built in storage.
BATHROOM White suite comprising panelled bath with mixer tap, vanity unit with storage, low flush WC, chrome heated towel rail, fully tiled walls, tiled floor, panelled ceiling, low voltage spotlights.
FIRST FLOOR LANDING
BEDROOM 11' 7" x 8' 1" (3.53m x 2.46m)
BEDROOM 11' 5" x 8' 1" (3.48m x 2.46m)
SHOWER ROOM White suite comprising low flush WC, vanity unit with storage, fully tiled shower cubicle with rainwater shower, chrome heated towel rail, panelled walls and ceiling, tiled floor, airing cupboard, low voltage spotlights.
OFFICE / STUDY 8' 2" x 6' 9" (2.49m x 2.06m) Fixed staircase to attic room.
ATTIC ROOM 14' 1" x 12' (4.29m x 3.66m) Range of built in robes and storage, low voltage spotlights.
OUTSIDE Front garden in lawns, driveway with parking. Enclosed rear garden with paving and decked area with further raised garden sitting area.
This attractive, extended semi detached property is situated in a prime cul-de-sac location just off Newtownbreda Road.
The property is extremely well presented and tastefully decorated by the current owner and offers spacious, well-proportioned accommodation.
The internal accommodation benefits from the generous lounge with feature fireplace, modern kitchen which is open plan to breakfast area and a bedroom with adjoining bathroom on the ground floor. On the first floor there are two further bedrooms, shower room and an office/study with stairs leading to large converted attic room with windows overlooking the back garden and built in wardrobes.
The adaptable accommodation could also be changed to provide an additional ground floor reception room.
The internal accommodation is perfectly complemented by the enclosed and paved rear garden sitting area along with a further raised sitting area and ample driveway parking.
This fine home is ideally located close to many local amenities including shops and public transport; viewing is highly recommended.
Front door to entrance hall.
ENTRANCE HALL
LOUNGE 11' 4" x 13' 2" (3.45m x 4.01m) Laminate wood effect floor, feature cast iron fireplace, slate hearth wood beam mantle.
OPEN PLAN TO KITCHEN WITH DINING AREA 14' 6" x 9' 6" (4.42m x 2.9m) Range of high and low level units, work surfaces with matching splash back, 1.5 bowl single drainer stainless steel sink unit with mixer tap, space for cooker, plumbed for washing machine, part tiled walls, laminate wood effect floor, external access, breakfast bar.
BEDROOM (POTENTIAL ADDITONAL RECEPTION ROOM) 19' 9" x 12' 1" (6.02m x 3.68m) Built in storage.
BATHROOM White suite comprising panelled bath with mixer tap, vanity unit with storage, low flush WC, chrome heated towel rail, fully tiled walls, tiled floor, panelled ceiling, low voltage spotlights.
FIRST FLOOR LANDING
BEDROOM 11' 7" x 8' 1" (3.53m x 2.46m)
BEDROOM 11' 5" x 8' 1" (3.48m x 2.46m)
SHOWER ROOM White suite comprising low flush WC, vanity unit with storage, fully tiled shower cubicle with rainwater shower, chrome heated towel rail, panelled walls and ceiling, tiled floor, airing cupboard, low voltage spotlights.
OFFICE / STUDY 8' 2" x 6' 9" (2.49m x 2.06m) Fixed staircase to attic room.
ATTIC ROOM 14' 1" x 12' (4.29m x 3.66m) Range of built in robes and storage, low voltage spotlights.
OUTSIDE Front garden in lawns, driveway with parking. Enclosed rear garden with paving and decked area with further raised garden sitting area.
Broadband Speed Availability
Potential Speeds for 8 Berkley Court
Max Download
1800
Mbps
Max Upload
220
MbpsThe speeds indicated represent the maximum estimated fixed-line speeds as predicted by Ofcom. Please note that these are estimates, and actual service availability and speeds may differ.
Property Location
Mortgage Calculator
Contact Agent
Contact Fetherstons (South Belfast)
Request More Information
Requesting Info about...
8 Berkley Court, Newtownbreda Road, Belfast, BT8 7FJ
By registering your interest, you acknowledge our Privacy Policy
By registering your interest, you acknowledge our Privacy Policy