Contact Agent
Contact Fetherstons (South Belfast)
4 Bed Detached House
2 Grasmere Gardens
Antrim Road, Belfast, BT15 5EG
offers over
£425,000
Key Features & Description
Attractive, Detached Family Home
Generous Lounge with Feature Fireplace
Separate Living Room
Superb Kitchen, Open Plan Dining & Family Areas
4 Bedrooms, Including Principal Room with Ensuite Shower Room
Family Bathroom & Ground Floor Cloakroom with WC
Exceptionally Well Presented Throughout
Driveway Parking / Detached Garage / Utility Room
Front and Rear Gardens in Lawns with Sitting Area & South Westerly Aspect
Convenient to Amenities Including Shops, Public Transport and Leading Schools
Description
This attractive, detached family home is situated on a prime site in a much sought after residential location just off Antrim Road.
The property provides good sized family accommodation, which is bright and spacious throughout. Offering a welcoming reception hall, generous lounge with attractive fireplace, a separate living room and a superb kitchen. The kitchen is open plan to a family and dining area, along with a WC on the ground floor.
On the first floor there are four bedrooms, including one with ensuite shower room and a family bathroom.
The internal accommodation is perfectly complemented by the delightful, enclosed and private South West facing garden to the rear along with a detached garage and driveway parking.
The area itself is well known as being amongst the most sought after in Belfast with many leading schools, public transport routes and the excellent amenities of the Antrim Road only a few minutes walk away.
Hardwood front door to entrance porch.
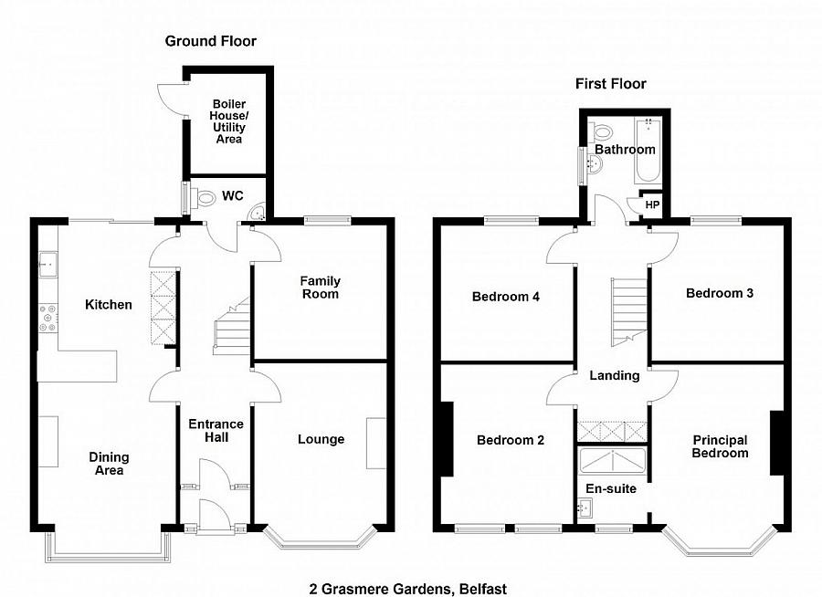
ENTRANCE PORCH Original tiled floor, glazed door with stained glass side windows to reception hall.
RECEPTION HALL Hardwood flooring.
CLOAKROOM/WC White suite comprising low flush WC, wash hand basin, splash tiling, tongue and groove walls and ceiling, tiled floor.
LOUNGE 16' 3" x 10' 9" (4.95m x 3.28m) Cornice ceiling, picture rail, bay window, fireplace.
LIVING ROOM 10' 11" x 10' 10" (3.33m x 3.3m) Cornice ceiling, picture rail.
KITCHEN OPEN PLAN TO FAMILY & DINING AREA 27' 9" x 10' 9" (8.46m x 3.28m) (overall @ widest points) Extensive range of high and low level units, granite work surfaces with matching splash back, butlers sink unit with Perrin & Rowe mixer taps, Bertazzoni cooker range, extractor fan over, integrated dishwasher, integrated fridge/freezer, larder cupboard with automatic lighting, concealed under unit lighting, LVT wooden flooring, hole in the wall fireplace with glass fronted stove and slate hearth, cornice ceiling, low voltage spotlights, double glazed sliding doors to rear garden, bay window with feature stained glass insets, window bench seating.
FIRST FLOOR LANDING Built in storage cupboards.
BEDROOM 1 16' 3" x 10' 8" (4.95m x 3.25m) Bay window, cornice ceiling.
ENSUITE SHOWER ROOM White suite comprising vanity unit with storage, splash tiling, walk in shower cubicle with rainwater shower, tiled floor.
BEDROOM 2 12' 11" x 10' 9" (3.94m x 3.28m) Laminate wood effect floor, cornice ceiling, built in display shelves.
BEDROOM 3 10' 11" x 10' 9" (3.33m x 3.28m)
BEDROOM 4 10' 11" x 10' 11" (3.33m x 3.33m)
BATHROOM White suite comprising panelled bath with Mira shower over, low flush WC, pedestal wash hand basin, part tiled walls, part tongue and groove walls, tiled floor, tongue and groove ceiling, airing cupboard.
OUTSIDE Front garden in flowerbeds with mature planting and boundary hedge. Driveway with parking for several cars. Enclosed and private rear garden with South West aspect in lawns, with mature planting and boundary fences, sheltered and private patio sitting area, further enclosed parking area leading to detached garage.
DETACHED GARAGE 24' 7" x 10' 10" (7.49m x 3.3m) Up and over door, power and light.
UTILITY / STORE ROOM Plumbed for washing machine, oil fired boiler.
This attractive, detached family home is situated on a prime site in a much sought after residential location just off Antrim Road.
The property provides good sized family accommodation, which is bright and spacious throughout. Offering a welcoming reception hall, generous lounge with attractive fireplace, a separate living room and a superb kitchen. The kitchen is open plan to a family and dining area, along with a WC on the ground floor.
On the first floor there are four bedrooms, including one with ensuite shower room and a family bathroom.
The internal accommodation is perfectly complemented by the delightful, enclosed and private South West facing garden to the rear along with a detached garage and driveway parking.
The area itself is well known as being amongst the most sought after in Belfast with many leading schools, public transport routes and the excellent amenities of the Antrim Road only a few minutes walk away.
Hardwood front door to entrance porch.
ENTRANCE PORCH Original tiled floor, glazed door with stained glass side windows to reception hall.
RECEPTION HALL Hardwood flooring.
CLOAKROOM/WC White suite comprising low flush WC, wash hand basin, splash tiling, tongue and groove walls and ceiling, tiled floor.
LOUNGE 16' 3" x 10' 9" (4.95m x 3.28m) Cornice ceiling, picture rail, bay window, fireplace.
LIVING ROOM 10' 11" x 10' 10" (3.33m x 3.3m) Cornice ceiling, picture rail.
KITCHEN OPEN PLAN TO FAMILY & DINING AREA 27' 9" x 10' 9" (8.46m x 3.28m) (overall @ widest points) Extensive range of high and low level units, granite work surfaces with matching splash back, butlers sink unit with Perrin & Rowe mixer taps, Bertazzoni cooker range, extractor fan over, integrated dishwasher, integrated fridge/freezer, larder cupboard with automatic lighting, concealed under unit lighting, LVT wooden flooring, hole in the wall fireplace with glass fronted stove and slate hearth, cornice ceiling, low voltage spotlights, double glazed sliding doors to rear garden, bay window with feature stained glass insets, window bench seating.
FIRST FLOOR LANDING Built in storage cupboards.
BEDROOM 1 16' 3" x 10' 8" (4.95m x 3.25m) Bay window, cornice ceiling.
ENSUITE SHOWER ROOM White suite comprising vanity unit with storage, splash tiling, walk in shower cubicle with rainwater shower, tiled floor.
BEDROOM 2 12' 11" x 10' 9" (3.94m x 3.28m) Laminate wood effect floor, cornice ceiling, built in display shelves.
BEDROOM 3 10' 11" x 10' 9" (3.33m x 3.28m)
BEDROOM 4 10' 11" x 10' 11" (3.33m x 3.33m)
BATHROOM White suite comprising panelled bath with Mira shower over, low flush WC, pedestal wash hand basin, part tiled walls, part tongue and groove walls, tiled floor, tongue and groove ceiling, airing cupboard.
OUTSIDE Front garden in flowerbeds with mature planting and boundary hedge. Driveway with parking for several cars. Enclosed and private rear garden with South West aspect in lawns, with mature planting and boundary fences, sheltered and private patio sitting area, further enclosed parking area leading to detached garage.
DETACHED GARAGE 24' 7" x 10' 10" (7.49m x 3.3m) Up and over door, power and light.
UTILITY / STORE ROOM Plumbed for washing machine, oil fired boiler.
Broadband Speed Availability
Potential Speeds for 2 Grasmere Gardens
Max Download
1800
Mbps
Max Upload
220
MbpsThe speeds indicated represent the maximum estimated fixed-line speeds as predicted by Ofcom. Please note that these are estimates, and actual service availability and speeds may differ.
Property Location
Mortgage Calculator
Contact Agent
Contact Fetherstons (South Belfast)
Request More Information
Requesting Info about...
2 Grasmere Gardens, Antrim Road, Belfast, BT15 5EG
By registering your interest, you acknowledge our Privacy Policy
By registering your interest, you acknowledge our Privacy Policy