Contact Agent
Contact Fetherstons (East Belfast)
4 Bed Detached House
8 New Line
Dundonald, Belfast, BT16 1UU
offers over
£395,000
Key Features & Description
A Substantial Detached Family Home
Excellent Location Just Off The Comber Road
Close To Many Shops, Amenities And Main Arterial Routes
Three Reception Rooms
Kitchen With Dining Area
Four Double Bedrooms (Master With Ensuite)
Recently Fitted Luxury Family Bathroom
Super Rear Garden With Patio
Driveway Parking Leading To An Integral Double Garage
Oil Fired Central Heating / Double Glazing
Description
An impressive, detached family located just off the Comber Road. The property is within close proximity to the many shops and amenities of the Comber Road, Dundonald village, the Ulster Hospital and Billy Neill Country Park. Belfast city centre along with nearby towns such as Comber and Newtownards are easily accessible.
The accommodation is substantial and comprises of three receptions, kitchen with dining area, four double bedrooms (master with ensuite), a recently fitted luxury bathroom complete with shower cubicle and a separate w.c.
The property enjoys a large plot with driveway parking for several vehicles to the front leading to the integral double garage and a private rear garden laid in lawn with a large patio area.
Early viewing is advised to appreciate this fine family home.
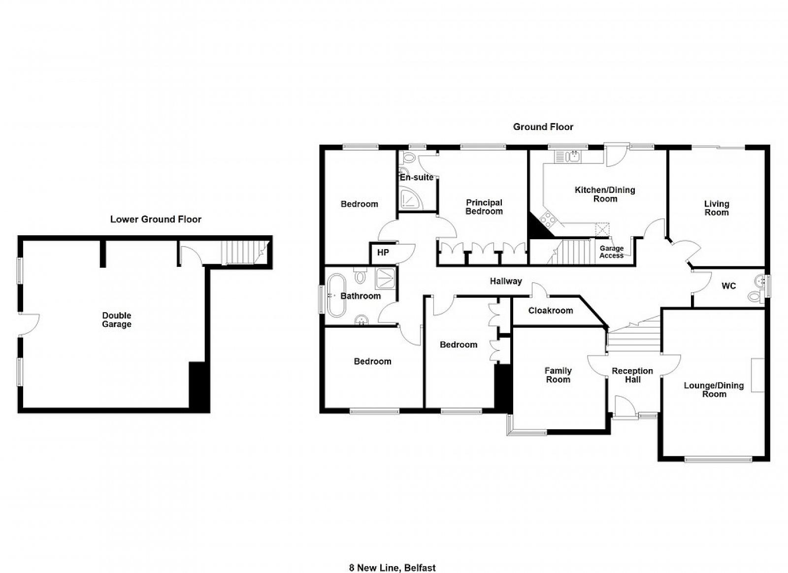
COVERED ENTRANCE PORCH
RECEPTION HALL Wood strip flooring, cornicing.
Stairs to upper level.
FAMILY ROOM 12' 2" x 11' 2" (3.73m x 3.41m) Wood strip flooring.
LIVING / DINING ROOM 18' 3" x 11' 6" (5.58m x 3.52m) Feature gas fire with sandstone surround and mantle, cornicing, ceiling rose.
MAIN HALLWAY Stairs from reception hall. Wood strip flooring, cornicing.
CLOAKROOM
W.C Low flush w.c, pedestal wash hand basin with chrome taps.
LIVING ROOM 14' 3" x 11' 10" (4.35m x 3.62m) Wood strip flooring, picture rail, cornicing, ceiling rose, sliding doors to rear garden.
KITCHEN WITH DINING AREA 16' 8" x 11' 0" (5.10m x 3.36m) Excellent range of high and low level units with chrome handles, feature under lighting, glazed display cabinet, laminate work surfaces, stainless steel sink unit, integrated oven and hob, extractor fan over, integrated fridge freezer, plumbed for washing machine, plumbed for dishwasher, tongue and groove ceiling, partly tiled walls, spot lighting. Staircase leading down to integral double garage.
MASTER BEDROOM 12' 2" x 10' 10" (3.71m x 3.31m) Built in double robes.
ENSUITE Fully tiled shower cubicle, wash hand basin with chrome taps and storage, low flush w.c, heated chrome towel radiator, tiled floor, partly tiled walls, spot lighting.
BEDROOM 2 12' 11" x 8' 7" (3.95m x 2.63m) Built in double robes.
BEDROOM 3 13' 3" x 8' 7" (4.04m x 2.63m)
BEDROOM 4 11' 11" x 9' 6" (3.65m x 2.91m)
FAMILY BATHROOM Luxury suite comprising of a multi panel shower cubicle with drench style shower, free standing bath, wash hand basin with storage under, low flush w.c, tiled floor, spot lighting.
HOTPRESS
INTEGRAL DOUBLE GARAGE 21' 8" x 20' 2" (6.62m x 6.16m) Light, power, 2 x up and over external doors.
OUTSIDE Brick paviour driveway with parking for several vehicles.
Front garden laid in lawn with mature shrubs.
Private, rear garden laid in lawn with large patio, mature borders, trees and shrubs. Timber fencing, outside tap, outside light.
An impressive, detached family located just off the Comber Road. The property is within close proximity to the many shops and amenities of the Comber Road, Dundonald village, the Ulster Hospital and Billy Neill Country Park. Belfast city centre along with nearby towns such as Comber and Newtownards are easily accessible.
The accommodation is substantial and comprises of three receptions, kitchen with dining area, four double bedrooms (master with ensuite), a recently fitted luxury bathroom complete with shower cubicle and a separate w.c.
The property enjoys a large plot with driveway parking for several vehicles to the front leading to the integral double garage and a private rear garden laid in lawn with a large patio area.
Early viewing is advised to appreciate this fine family home.
COVERED ENTRANCE PORCH
RECEPTION HALL Wood strip flooring, cornicing.
Stairs to upper level.
FAMILY ROOM 12' 2" x 11' 2" (3.73m x 3.41m) Wood strip flooring.
LIVING / DINING ROOM 18' 3" x 11' 6" (5.58m x 3.52m) Feature gas fire with sandstone surround and mantle, cornicing, ceiling rose.
MAIN HALLWAY Stairs from reception hall. Wood strip flooring, cornicing.
CLOAKROOM
W.C Low flush w.c, pedestal wash hand basin with chrome taps.
LIVING ROOM 14' 3" x 11' 10" (4.35m x 3.62m) Wood strip flooring, picture rail, cornicing, ceiling rose, sliding doors to rear garden.
KITCHEN WITH DINING AREA 16' 8" x 11' 0" (5.10m x 3.36m) Excellent range of high and low level units with chrome handles, feature under lighting, glazed display cabinet, laminate work surfaces, stainless steel sink unit, integrated oven and hob, extractor fan over, integrated fridge freezer, plumbed for washing machine, plumbed for dishwasher, tongue and groove ceiling, partly tiled walls, spot lighting. Staircase leading down to integral double garage.
MASTER BEDROOM 12' 2" x 10' 10" (3.71m x 3.31m) Built in double robes.
ENSUITE Fully tiled shower cubicle, wash hand basin with chrome taps and storage, low flush w.c, heated chrome towel radiator, tiled floor, partly tiled walls, spot lighting.
BEDROOM 2 12' 11" x 8' 7" (3.95m x 2.63m) Built in double robes.
BEDROOM 3 13' 3" x 8' 7" (4.04m x 2.63m)
BEDROOM 4 11' 11" x 9' 6" (3.65m x 2.91m)
FAMILY BATHROOM Luxury suite comprising of a multi panel shower cubicle with drench style shower, free standing bath, wash hand basin with storage under, low flush w.c, tiled floor, spot lighting.
HOTPRESS
INTEGRAL DOUBLE GARAGE 21' 8" x 20' 2" (6.62m x 6.16m) Light, power, 2 x up and over external doors.
OUTSIDE Brick paviour driveway with parking for several vehicles.
Front garden laid in lawn with mature shrubs.
Private, rear garden laid in lawn with large patio, mature borders, trees and shrubs. Timber fencing, outside tap, outside light.
Broadband Speed Availability
Potential Speeds for 8 New Line
Max Download
1800
Mbps
Max Upload
220
MbpsThe speeds indicated represent the maximum estimated fixed-line speeds as predicted by Ofcom. Please note that these are estimates, and actual service availability and speeds may differ.
Property Location
Mortgage Calculator
Contact Agent
Contact Fetherstons (East Belfast)
Request More Information
Requesting Info about...
8 New Line, Dundonald, Belfast, BT16 1UU
By registering your interest, you acknowledge our Privacy Policy
By registering your interest, you acknowledge our Privacy Policy