5 Bed Semi Detached
9 Cleaver Avenue
Malone Road, Belfast, BT9 5JA
offers over
£715,000

Key Features & Description
Attractive Semi Detached Property in a Prestigious Residential Location
Generous Lounge with Feature Fireplace
Superb Kitchen Open Plan to Family & Dining Areas/Separate Utility Room
5 Bedrooms, 2 with Ensuite Facilities
Family Bathroom / Additional Ground Floor Cloakroom with WC
Gas Fired Central Heating (Underfloor Heating Throughout The Ground Floor) / Double Glazed Windows
Exceptional Presentation Throughout
South Facing Rear Garden With Paved Patio
Driveway To Front with Electric Gates / Advanced Security System
Convenient Location Within Walking Distance of Leading Schools & Range of Amenities
Description
This attractive semi detached family home is situated on a prime site in a much sought location just off Malone Road.
The property provides good sized family accommodation which is bright and spacious throughout offering a generous lounge with attractive fireplace along with a superb kitchen which is open plan to the family and dining areas overlooking the rear garden. In addition, on the ground floor there is a utility room and guest cloakroom with wc.
On the upper floors there are five bedrooms, including the principle room with ensuite shower room and a further bedroom with an additional ensuite along with a family bathroom.
The internal accommodation is perfectly complemented by the delightful, enclosed and private south facing garden to the rear along with electric entrance gates leading to driveway parking for several cars to the front.
The area itself is well known as being amongst the most sought after in Belfast with many leading schools, public transport routes and the excellent amenities of the Lisburn Road only a few minutes' walk away.
Viewing is highly recommended.
Hardwood front door with double glazed side panels.
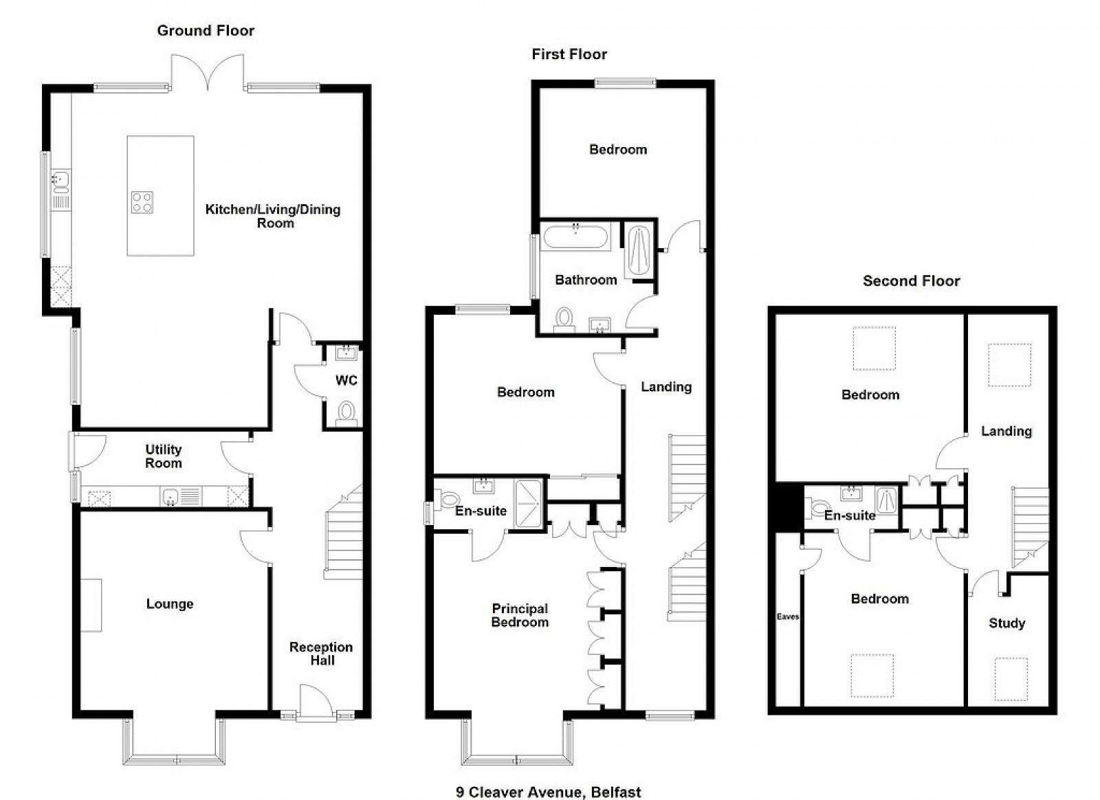
RECEPTION HALL Porcelain tiled floor.
LOUNGE 19' 8" x 14' 9" (5.99m x 4.5m) Feature marble fireplace with matching hearth, gas fire, porcelain tiled floor.
KITCHEN / LIVING / DINING 26' 6" x 24' 11" (8.08m x 7.59m) Extensive range of high and low level units, 1.5 bowl single drainer stainless steel sink unit, granite work surfaces, island unit with granite work surfaces, Smeg appliances to include four ring hob, stainless steel oven / grill & extractor fan, microwave, porcelain tiled floor, timber double glazed doors to south facing rear garden.
UTILITY ROOM 12' 11" x 6' (3.94m x 1.83m) Range of high and low level units, single drainer stainless steel sink unit, plumbed for washing machine, door to outside.
CLOAKROOM Low flush W.C, pedestal wash hand basin.
FIRST FLOOR LANDING Stain glass window.
PRINCIPAL BEDROOM 18' 11" x 14' 7" (5.77m x 4.44m) Solid oak floor. Excellent range of built in robes.
ENSUITE SHOWER ROOM Fully tiled shower cubicle, wash hand basin, low flush W.C, tiled floor, tiled walls, chrome heated towel rail.
BEDROOM 14' 6" x 12' 7" (4.42m x 3.84m) Solid oak floor, mirrored sliding robes.
BEDROOM 13' 3" x 12' 9" (4.04m x 3.89m) Solid oak floor.
BATHROOM White suite comprising Jacuzzi bath, walk in shower, wash hand basin, low flush W.C, fully tiled walls & floor.
SECOND FLOOR LANDING
BEDROOM 15' 1" x 12' 2" (4.6m x 3.71m) Solid oak floor. Storage into eaves.
ENSUITE SHOWER ROOM Fully tiled shower cubicle with contemporary shower, wash hand basin, low flush W.C, chrome heated towel rail, ceramic tiled floor, fully tiled walls.
BEDROOM 15' 3" x 14' 7" (4.65m x 4.44m) Solid wood floor.
STUDY 10' 2" x 7' 1" (3.1m x 2.16m) Solid wood floor.
OUTSIDE Electric gates to spacious paved driveway, pedestrian gate. South facing enclosed rear garden in lawn with paved patio area. Power sockets.
This attractive semi detached family home is situated on a prime site in a much sought location just off Malone Road.
The property provides good sized family accommodation which is bright and spacious throughout offering a generous lounge with attractive fireplace along with a superb kitchen which is open plan to the family and dining areas overlooking the rear garden. In addition, on the ground floor there is a utility room and guest cloakroom with wc.
On the upper floors there are five bedrooms, including the principle room with ensuite shower room and a further bedroom with an additional ensuite along with a family bathroom.
The internal accommodation is perfectly complemented by the delightful, enclosed and private south facing garden to the rear along with electric entrance gates leading to driveway parking for several cars to the front.
The area itself is well known as being amongst the most sought after in Belfast with many leading schools, public transport routes and the excellent amenities of the Lisburn Road only a few minutes' walk away.
Viewing is highly recommended.
Hardwood front door with double glazed side panels.
RECEPTION HALL Porcelain tiled floor.
LOUNGE 19' 8" x 14' 9" (5.99m x 4.5m) Feature marble fireplace with matching hearth, gas fire, porcelain tiled floor.
KITCHEN / LIVING / DINING 26' 6" x 24' 11" (8.08m x 7.59m) Extensive range of high and low level units, 1.5 bowl single drainer stainless steel sink unit, granite work surfaces, island unit with granite work surfaces, Smeg appliances to include four ring hob, stainless steel oven / grill & extractor fan, microwave, porcelain tiled floor, timber double glazed doors to south facing rear garden.
UTILITY ROOM 12' 11" x 6' (3.94m x 1.83m) Range of high and low level units, single drainer stainless steel sink unit, plumbed for washing machine, door to outside.
CLOAKROOM Low flush W.C, pedestal wash hand basin.
FIRST FLOOR LANDING Stain glass window.
PRINCIPAL BEDROOM 18' 11" x 14' 7" (5.77m x 4.44m) Solid oak floor. Excellent range of built in robes.
ENSUITE SHOWER ROOM Fully tiled shower cubicle, wash hand basin, low flush W.C, tiled floor, tiled walls, chrome heated towel rail.
BEDROOM 14' 6" x 12' 7" (4.42m x 3.84m) Solid oak floor, mirrored sliding robes.
BEDROOM 13' 3" x 12' 9" (4.04m x 3.89m) Solid oak floor.
BATHROOM White suite comprising Jacuzzi bath, walk in shower, wash hand basin, low flush W.C, fully tiled walls & floor.
SECOND FLOOR LANDING
BEDROOM 15' 1" x 12' 2" (4.6m x 3.71m) Solid oak floor. Storage into eaves.
ENSUITE SHOWER ROOM Fully tiled shower cubicle with contemporary shower, wash hand basin, low flush W.C, chrome heated towel rail, ceramic tiled floor, fully tiled walls.
BEDROOM 15' 3" x 14' 7" (4.65m x 4.44m) Solid wood floor.
STUDY 10' 2" x 7' 1" (3.1m x 2.16m) Solid wood floor.
OUTSIDE Electric gates to spacious paved driveway, pedestrian gate. South facing enclosed rear garden in lawn with paved patio area. Power sockets.
Broadband Speed Availability
Potential Speeds for 9 Cleaver Avenue
Max Download
10000
Mbps
Max Upload
10000
MbpsThe speeds indicated represent the maximum estimated fixed-line speeds as predicted by Ofcom. Please note that these are estimates, and actual service availability and speeds may differ.
Property Location

Mortgage Calculator
Contact Agent

Contact Fetherstons (South Belfast)
Request More Information
Requesting Info about...
9 Cleaver Avenue, Malone Road, Belfast, BT9 5JA
By registering your interest, you acknowledge our Privacy Policy

By registering your interest, you acknowledge our Privacy Policy