Contact Agent
Contact Templeton Robinson (North Down)
3 Bed Semi-Detached House
62 Kensington Road
Cherryvalley, Belfast, BT5 6NG
offers around
£350,000
Key Features & Description
Attractive red brick semi-detached property
Bright & spacious internal layout
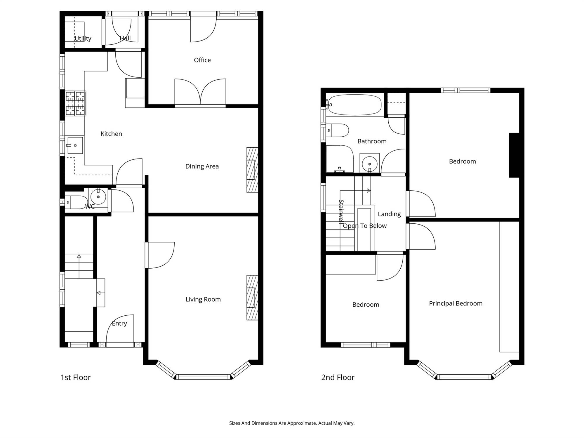
Hallway
Living Room
Kitchen open plan to Dining Room
Converservatory
Three Bedrooms
Main Bathroom
Oil fired central heating
uPVC frame double glazed windows
Vehicular access to side leading to driveway & Garage
Occupying a prime corner site affording a good-sized garden in lawn
Highly convenient & sought after location adjacent to the Outer Ring
Ideal for commuters - offers ease of access to Belfast & beyond
Several leading schools nearby plus various shopping facilities at Cherryvalley, Kings Square & Ballyhackamore
We are confident this property will appeal to a range of prospective purchaser
Description
This attractive semi-detached property is located not only in a very convenient position but a most sought after one adjacent to the Outer Ring, ideal for commuters offering ease of access to Belfast, Holywood and Dundonald.
Occupying a prime corner site affording a good-sized garden in lawn benefitting from a sunny west facing aspect, ample parking for several vehicles plus a detached garage. The equally impressive interior offers bright and spacious accommodation in the form of hallway, living room, kitchen open plan to dining room leading to conservatory and rear hall / utility area. On the first floor are three bedrooms plus main bathroom. The property is further enhanced by uPVC frame double glazed windows and oil-fired central heating.
A highly sought after and ever popular residential location ideal for commuters and families alike, within a short distance of the excellent shopping facilities of Cherryvalley, Kings Road and within proximity to several leading primary and secondary schools. We are confident this property will appeal to a range of prospective purchaser.
This attractive semi-detached property is located not only in a very convenient position but a most sought after one adjacent to the Outer Ring, ideal for commuters offering ease of access to Belfast, Holywood and Dundonald.
Occupying a prime corner site affording a good-sized garden in lawn benefitting from a sunny west facing aspect, ample parking for several vehicles plus a detached garage. The equally impressive interior offers bright and spacious accommodation in the form of hallway, living room, kitchen open plan to dining room leading to conservatory and rear hall / utility area. On the first floor are three bedrooms plus main bathroom. The property is further enhanced by uPVC frame double glazed windows and oil-fired central heating.
A highly sought after and ever popular residential location ideal for commuters and families alike, within a short distance of the excellent shopping facilities of Cherryvalley, Kings Road and within proximity to several leading primary and secondary schools. We are confident this property will appeal to a range of prospective purchaser.
Rooms
uPVC double glazed front door with leaded window to . . .
ENTRANCE HALL:
Ceramic tiled floor.
CLOAKROOM:
Low flush wc, wash hand basin, tiled floor.
LIVING ROOM: 15' 9" X 10' 6" (4.80m X 3.20m)
Exposed oak strip flooring, hole in the wall fireplace with granite hearth.
EXTENDED MODERN FITTED KITCHEN OPEN PLAN TO DINING: 19' 4" X 12' 10" (5.90m X 3.90m)
Shaker style kitchen with excellent range of high and low level units, stainless steel sink with drainer and mixer tap, built-in Belling oven with four ring gas hob, stainless steel extractor fan, space for fridge freezeer, space for dishwasher, laminate worktops, tiled splashback, ceramic tiled floor.
TILED REAR PORCH:
uPVC double glazed door to exterior.
UTILITY CUPBOARD:
Plumbed for washing machine.
Bevelled glazed double doors from dining room to . . .
CONSERVATORY: 9' 6" X 7' 10" (2.90m X 2.40m)
Ceramic tiled floor, uPVC double glazed single door to exterior.
LANDING:
BEDROOM (1): 13' 9" X 8' 6" (4.20m X 2.60m)
(into bay). Wall to wall range of built-in wardrobes with mirror sliding doors, picture rail, cornice ceiling.
BEDROOM (2): 12' 6" X 10' 10" (3.80m X 3.30m)
BEDROOM (3): 8' 6" X 7' 7" (2.60m X 2.30m)
Built-in wardrobes with sliding doors.
BATHROOM:
Four piece white suite comprising panelled bath, fully tiled built-in shower cubicle with Mira Sport electric shower unit, panelled bath with mixer tap, pedestal wash hand basin with mixer tap and tiled splashback, low flush wc, heated towel rail, vinyl flooring, window, hotpress.
Pedestrian access to front. Vehicular access. Driveway to . . .
GARAGE: 17' 1" X 8' 2" (5.20m X 2.50m)
Light and power, oil fired boiler.
Neat front and side garden in lawn bordered by mature trees and shrubbery.
Broadband Speed Availability
Potential Speeds for 62 Kensington Road
Max Download
1800
Mbps
Max Upload
220
MbpsThe speeds indicated represent the maximum estimated fixed-line speeds as predicted by Ofcom. Please note that these are estimates, and actual service availability and speeds may differ.
Property Location
Mortgage Calculator
Directions
Travelling from Knock traffic lights towards Forestside on Outer Ring, turn left into Kensington Road and property is approx 200 yds on left.
Contact Agent
Contact Templeton Robinson (North Down)
Request More Information
Requesting Info about...
62 Kensington Road, Cherryvalley, Belfast, BT5 6NG
By registering your interest, you acknowledge our Privacy Policy
By registering your interest, you acknowledge our Privacy Policy