Land
Dev Site, Newtownards Rd & Templemore Avenue
Belfast, BT4 1QJ
guide price
£525,000
- Status For Sale
- Property Type Land
-
Stamp Duty
Higher amount applies when purchasing as buy to let or as an additional property£16,250 / £42,500*
Description
For sale by CPS Property, Belfast via the iamsold Bidding Platform
Please note this property will be offered by online auction (unless sold prior). For auction date and time please visit iamsoldni.com. Vendors may decide to accept pre-auction bids so please register your interest with us to avoid disappointment.
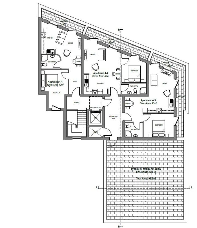
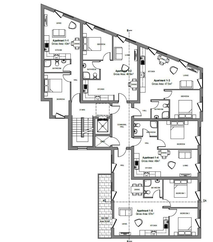
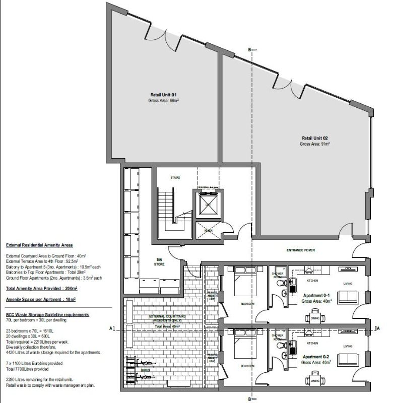
We are delighted to welcome to the market this excellent corner development site circa 0.1 Acres with full planning permission; offering a great opportunity for the construction of 20x Apartments and 2x Retail Units located in East Belfast.
LOCATION
This prominent site is located on the corner of the main Newtownards Road and Templemore Avenue; accessed off Bridge End and Upper Newtownards Road of East Belfast. The site is situated with ease of access to local transport networks and being in close proximity of 1.6 miles to Belfast City Centre
DESCRIPTION
The Land at the junction of Newtownards Road and Templemore Avenue comprises a corner site of circa 0.1 acres with full planning permission for;
17x One Bedroom Apartments.
3x Two Bedroom Apartments.
2x Ground Floor Retail Units.
The proposed building will be five storeys in height and feature a rear courtyard, bin store, and a roof terrace on the fourth floor.
Planning Reference – LA04/2020/1363/F – Planning pack available upon request
SERVICES & CONNECTIONS
As per the planning documents; there are no sewage and water related conditions. In the NI Water consultation, the response states 'there are foul and storm within 20m of the site'.
It has been noted and confirmed by NI Water that 'NI Water have a duty to connect foul and storm to the site into the existing NI Water infrastructure'
It has been further acknowledged that there will be a requirement to restrict storm run-off from the site to the equivalent of greenfield run-off in accordance with current standards.
To access the legal pack, please copy and paste the link below
http://www.iamsoldni.com/properties/3edc570a9bb54e1d80fe13aa75a9caae/auction-pack
TO VIEW OR MAKE A MAKE Contact CPS Property, Belfast or iamsold, www.iamsoldni.com
Please note this property will be offered by online auction (unless sold prior). For auction date and time please visit iamsoldni.com. Vendors may decide to accept pre-auction bids so please register your interest with us to avoid disappointment.
We are delighted to welcome to the market this excellent corner development site circa 0.1 Acres with full planning permission; offering a great opportunity for the construction of 20x Apartments and 2x Retail Units located in East Belfast.
LOCATION
This prominent site is located on the corner of the main Newtownards Road and Templemore Avenue; accessed off Bridge End and Upper Newtownards Road of East Belfast. The site is situated with ease of access to local transport networks and being in close proximity of 1.6 miles to Belfast City Centre
DESCRIPTION
The Land at the junction of Newtownards Road and Templemore Avenue comprises a corner site of circa 0.1 acres with full planning permission for;
17x One Bedroom Apartments.
3x Two Bedroom Apartments.
2x Ground Floor Retail Units.
The proposed building will be five storeys in height and feature a rear courtyard, bin store, and a roof terrace on the fourth floor.
Planning Reference – LA04/2020/1363/F – Planning pack available upon request
SERVICES & CONNECTIONS
As per the planning documents; there are no sewage and water related conditions. In the NI Water consultation, the response states 'there are foul and storm within 20m of the site'.
It has been noted and confirmed by NI Water that 'NI Water have a duty to connect foul and storm to the site into the existing NI Water infrastructure'
It has been further acknowledged that there will be a requirement to restrict storm run-off from the site to the equivalent of greenfield run-off in accordance with current standards.
To access the legal pack, please copy and paste the link below
http://www.iamsoldni.com/properties/3edc570a9bb54e1d80fe13aa75a9caae/auction-pack
TO VIEW OR MAKE A MAKE Contact CPS Property, Belfast or iamsold, www.iamsoldni.com
Property Location
Mortgage Calculator
Contact Agent
Contact iamsold NI
Request More Information
Requesting Info about...
Dev Site, Newtownards Rd & Templemore Avenue, Belfast, BT4 1QJ
By registering your interest, you acknowledge our Privacy Policy
By registering your interest, you acknowledge our Privacy Policy