Contact Agent
Contact John Minnis Estate Agents (Greater Belfast)
1 Bed Apartment
Apt 23 The Gallery, 71 Dublin Road
Belfast City Centre, BT2 7HG
offers around
£139,950
Key Features & Description
o***CASH OFFERS ONLY***
Well Appointed Third Floor Apartment in Belfast City Centre
Doorstep Convenience to Many Local Amenities the City has to Offer
Secure Communal Entrance
Superb Energy Rating with Low Maintenance
Well Proportioned Double Bedroom
Open Plan Kitchen Living Dining Space
Bespoke Fitted Kitchen with Range of Built in Appliances
Luxurious Shower Room with Modern White Suite
Gas Fired Central Heating
UPVC Double Glazing Throughout
Ideally Suited to a Young Professional, Downsizer or Investor
Excellent Investment Opportunity
Management Fee Approx £1860 Per Annum
Early Viewing Highly Recommended
Broadband Speed - Ultrafast
Description
***CASH OFFERS ONLY***
We are delighted to bring to the market this fantastically well-appointed third floor apartment located in Belfast City Centre. Ideally situated on the Dublin Road, within walking distance of many local amenities including shops, bars and restaurants, this fantastic apartment will have immediate appeal to a range of potential purchasers.
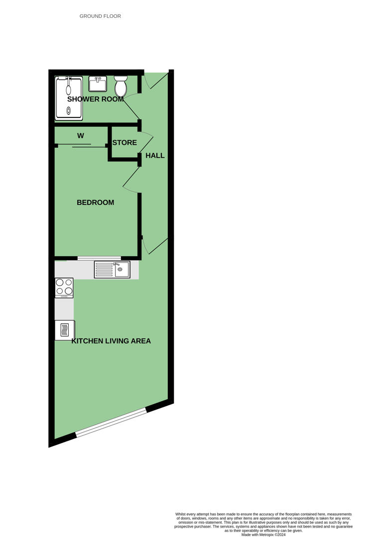
In short, the property comprises of reception hall, open plan kitchen living and dining space, bespoke fitted kitchen with range of storage and built in appliances, one double bedroom with built in storage and a luxurious shower room with modern white suite. The property further benefits from gas fired central heating, uPVC double glazing and lift access.
This apartment is likely to appeal to a wide range of purchasers so early internal inspection is highly recommended to appreciate all this property has to offer.
***CASH OFFERS ONLY***
We are delighted to bring to the market this fantastically well-appointed third floor apartment located in Belfast City Centre. Ideally situated on the Dublin Road, within walking distance of many local amenities including shops, bars and restaurants, this fantastic apartment will have immediate appeal to a range of potential purchasers.
In short, the property comprises of reception hall, open plan kitchen living and dining space, bespoke fitted kitchen with range of storage and built in appliances, one double bedroom with built in storage and a luxurious shower room with modern white suite. The property further benefits from gas fired central heating, uPVC double glazing and lift access.
This apartment is likely to appeal to a wide range of purchasers so early internal inspection is highly recommended to appreciate all this property has to offer.
Rooms
ENTRANCE
Communal Entrance:
Communal entrance with lift and stair access.
THIRD FLOOR
Spacious Reception Hall:
Hardwood front door into spacious reception hall, porcelain tiled floor, built-in storage cupboard with access to gas boiler.
Shower Room:
Modern white suite comprising low flush WC, floating wash hand basin with chrome mixer taps, shower cubicle with glass shower screen, thermostatically controlled valve and rainfall shower head, low voltage recessed spotlighting, extractor fan, porcelain tiled floor, fully tiled walls, chrome heated towel rail.
Bedroom One: 12'9" X 8'5" (3.89m X 2.57m)
Built-in slide robes, excellent storage.
Kitchen / Living / Dining: 19'9" X 11'5" (6.02m X 3.48m)
Bespoke fitted high gloss kitchen with excellent range of high and low level units, integrated fridge with top freezer, built-in oven, integrated microwave, ceramic hob, extractor hood above, integrated dishwasher, integrated washing machine, stainless steel sink and chrome mixer taps, part tiled walls, porcelain tiled floor, open to living/dining space, low voltage recessed spotlighting.
As part of our obligations under the Money Laundering, Terrorist Financing and Transfer of Funds (Information on the Payer) Regulations 2017, all Estate Agents are required to verify the identity of purchasers involved in a property transaction.
To comply with these obligations, all purchasers will be required to complete Customer Due Diligence (AML) identity checks. These checks are carried out on our behalf by our trusted third-party provider, Thirdfort.
A charge will apply of £20 + VAT per purchaser.
To comply with these obligations, all purchasers will be required to complete Customer Due Diligence (AML) identity checks. These checks are carried out on our behalf by our trusted third-party provider, Thirdfort.
A charge will apply of £20 + VAT per purchaser.
Living in the heart of Northern Ireland´s capital offers a unique chance for those wishing to experience vibrant city living to also feel part of a welcoming local community. There is an abundance of fantastic cafes, great pubs, trendy bars and an amazing restaurant scene.
Property Location
Mortgage Calculator
Contact Agent
Contact John Minnis Estate Agents (Greater Belfast)
Request More Information
Requesting Info about...
Apt 23 The Gallery, 71 Dublin Road, Belfast City Centre, BT2 7HG
By registering your interest, you acknowledge our Privacy Policy
By registering your interest, you acknowledge our Privacy Policy