Contact Agent
Contact Michael Chandler Estate Agents
2 Bed Apartment
12A Tyrone House 30 Adelaide Street
Belfast City Centre, BT2 8HH
per month
£950pm
Key Features & Description
Description
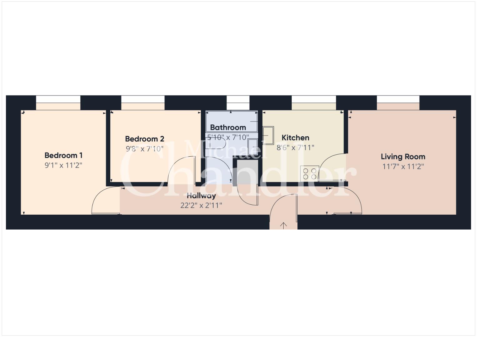
This is a stylish and contemporary two bedroom apartment conveniently located in the heart of Belfast city centre. This is a great opportunity for young professionals with a city centre job and busy lifestyle. With every amenity conceivable close by, from pubs and restaurants, to high street shops and gyms, all within walking distance this is sure to be a fun and convenient place to live.
The accommodation comprises of an entrance hall, a spacious living room, a walnut shaker style fitted kitchen with a breakfast bar and a wide range of appliances, two well proportioned bedrooms and a white three piece bathroom suite. The apartment comes with one allocated car parking space.
A deposit and the first month´s rent are payable in advance. The property is fully furnished and available from 6th April 2026 on a 12 month tenancy.
To arrange a viewing or for further information please contact Michael Chandler Estate Agents on 02890 450 550 or visit www.michael-chandler.co.uk
This is a stylish and contemporary two bedroom apartment conveniently located in the heart of Belfast city centre. This is a great opportunity for young professionals with a city centre job and busy lifestyle. With every amenity conceivable close by, from pubs and restaurants, to high street shops and gyms, all within walking distance this is sure to be a fun and convenient place to live.
The accommodation comprises of an entrance hall, a spacious living room, a walnut shaker style fitted kitchen with a breakfast bar and a wide range of appliances, two well proportioned bedrooms and a white three piece bathroom suite. The apartment comes with one allocated car parking space.
A deposit and the first month´s rent are payable in advance. The property is fully furnished and available from 6th April 2026 on a 12 month tenancy.
To arrange a viewing or for further information please contact Michael Chandler Estate Agents on 02890 450 550 or visit www.michael-chandler.co.uk
Virtual Tour
Property Location
Contact Agent
Contact Michael Chandler Estate Agents
Request More Information
Requesting Info about...
12A Tyrone House 30 Adelaide Street, Belfast City Centre, BT2 8HH
By registering your interest, you acknowledge our Privacy Policy
By registering your interest, you acknowledge our Privacy Policy