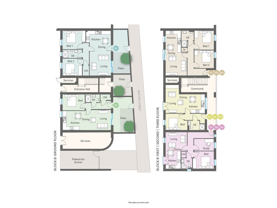
2 Bed Apartment
Soho Foundry, Apt B2 Townsend Street
Belfast City Centre, Belfast, BT13 2BX
asking price
£189,950
- Status For Sale
- Property Type Apartment
- Bedrooms 2
- Receptions 1
- Interior Area 662 sq ft
- Heating Gas
-
Stamp Duty
Higher amount applies when purchasing as buy to let or as an additional property£1,299 / £10,797*
Key Features & Description
Includes Private Patio Area
SPECIFICATION
Highly efficient A Rated gas combi boiler
Communal PV Solar Panels
Ember app-controlled heating system with digital thermostats (SMART compatibility)
Audio intercom communication via keypad at main communal door of each apartment block
"Ring" Video Door bells (as applicable on ground floor apts)
INTERIOR
Painted modern panel internal doors with chrome door furniture
Contemporary skirting boards and architraves
Extensive electrical specification to include pre-wire for BT fibre ultra fast broadband speed of up to 1000 Mps
Internal walls, ceilings and woodwork painted in neutral colours
Comprehensive range of electrical fittings to include light fittings and electrical sockets throughout (x1 double socket with USB port to kitchen and all bedrooms)
TV and data point in living area and bedroom 1
Recessed downlights in kitchen (where applicable)
Mains operated smoke, heat and carbon monoxide detectors
FLOORING / TILING
High quality Elka LVT flooring throughout living room, kitchen and bedrooms
Tiling to bathroom
Quality floor tiles to bathrooms
Full height quality wall tiles to feature areas in shower enclosures
Luxury tiling to communal entrance areas
KITCHEN
Quality kitchen doors, worktop finishes and handles
Soft close doors and drawers
Upstand and cooker splashback
Integrated appliances to include electric oven, hob, extractor fan and fridge freezer
Contemporary LED underlighting to kitchen wall units
Four zone induction hob, integrated canopy extractor
Integrated fridge/freezer, dishwasher and washer/dryer
BATHROOM & SHOWER ROOM
High quality contemporary white sanitary ware with contemporary chrome taps and fittings
Thermostatically controlled bath/shower mixer and screen
Clicker waste system in wash hand basin
Ceramic tiled floor and partial wall tiling fitted from a superior range
Heated chrome towel rail in the bathroom
Low profile shower tray and toughened glass door and panels
Thermostatic rain drench shower head
Feature mirror with mood lighting
EXTERNAL
Traditional cavity wall construction with quality red clay brick
Large walkout balconies and Julliette balconies on upper levels of selected apartments
Feature lighting to communal hallway, entrance doors and balconies
Energy efficient uPVC double glazed windows
Feature paving and bitmac paths
External communal water taps
Secured landscaped gardens with decorative communal seating areas
Separate secure parking is available on request. Please refer to the selling agent for further information
WARRANTY
10 year ICW structural warranty
2 year manufacturer warranty for boiler
2 year manufacturer warranty for appliances
**Please Note: Images are of the show apartments in the Soho Foundry Development
Description
Soho Foundry is a collection of new bulid turn key 1 & 2 bedroom city centre apartments that offer the very best in convenient, modern living. The new Ulster University Campus at York Street in this quarter of the city is now rated as the best in Ireland, and is within a short 5 minute walk. Everything that this vibrant part of the city has to offer is within a few minutes walk - the restaurants and bars of Cathedral Quarter, Belfast"s nightlife hub, shopping and entertainment at Castle Court and Victoria Square, live entertainment at The Grand Opera House and SSE Arena and the new Grand Central Station for reaching all parts north and south
Townsend Street"s industrial development in the 1800s was instrumental in making "Boomtown Belfast" - the largest city in Ireland at the start of the 1900s. The Soho Foundry on Townsend Street developed and fabricated the largest steam turbine in Ireland, and was innovative in the implementation of allowing power to be generated from weak flowing rivers, and paved the way for the significant expansion of Belfast"s industrial footprint. The owner of the foundry was Robert Shipboy McAdam - a remarkable Presbyterian industrialist and Gaelic Scholar who worked tirelessly as a bridge between Belfast"s cultures, faiths and communities. He recruited a workforce from both communities based on merit alone and left a profound mark on Belfast"s social and cultural history.
Soho Foundry is a collection of new bulid turn key 1 & 2 bedroom city centre apartments that offer the very best in convenient, modern living. The new Ulster University Campus at York Street in this quarter of the city is now rated as the best in Ireland, and is within a short 5 minute walk. Everything that this vibrant part of the city has to offer is within a few minutes walk - the restaurants and bars of Cathedral Quarter, Belfast"s nightlife hub, shopping and entertainment at Castle Court and Victoria Square, live entertainment at The Grand Opera House and SSE Arena and the new Grand Central Station for reaching all parts north and south
Townsend Street"s industrial development in the 1800s was instrumental in making "Boomtown Belfast" - the largest city in Ireland at the start of the 1900s. The Soho Foundry on Townsend Street developed and fabricated the largest steam turbine in Ireland, and was innovative in the implementation of allowing power to be generated from weak flowing rivers, and paved the way for the significant expansion of Belfast"s industrial footprint. The owner of the foundry was Robert Shipboy McAdam - a remarkable Presbyterian industrialist and Gaelic Scholar who worked tirelessly as a bridge between Belfast"s cultures, faiths and communities. He recruited a workforce from both communities based on merit alone and left a profound mark on Belfast"s social and cultural history.
Rooms
KITCHEN / DINING / LIVING: 24' 10" X 13' 11" (7.57m X 4.24m)
((max)
BEDROOM (1): 12' 8" X 10' 2" (3.86m X 3.10m)
BEDROOM (2): 10' 9" X 9' 4" (3.28m X 2.84m)
SHOWER ROOM: 10' 9" X 4' 2" (3.28m X 1.27m)
UTILITY: 5' 6" X 3' 5" (1.68m X 1.04m)
Property Location
Mortgage Calculator
Directions
Townsend Street, Belfast
Contact Agent
Request More Information
Requesting Info about...
Soho Foundry, Apt B2 Townsend Street, Belfast City Centre, Belfast, BT13 2BX
By registering your interest, you acknowledge our Privacy Policy
By registering your interest, you acknowledge our Privacy Policy