Contact Agent
Contact John Minnis Estate Agents (Bangor)
5 Bed End Terrace
72 Victoria Road
Bangor, BT20 5ER
offers around
£275,000
Key Features & Description
Prime location on sought-after Victoria Road in Bangor
Within walking distance of Bangor Marina, city centre, cafés, and restaurants
Easy access to picturesque coastal walks and popular sea swimming spots
Charming period home retaining original features and character throughout
Welcoming reception hall with cornice detailing and solid teak herringbone flooring
Spacious lounge with feature marble fireplace, solid maple flooring and open plan archway to dining area
Dining area with solid maple flooring and direct access to rear courtyard via patio doors
Well-appointed kitchen diner with range of fitted units and excellent storage
Rear lean-to providing additional utility and storage space
Flexible accommodation over two upper floors with multiple well-proportioned bedrooms
Bedrooms benefiting from pleasant outlooks including sea glimpses
Separate bathroom and WC, ideal for modern family living
Enclosed rear garden laid in paving with raised beds for low maintenance
Detached garage with roller shutter door and utility provisions
Planning permission previously passed to rebuild and reposition garage
Rare benefit of off-street parking in such a central and desirable location
Gas Fired Central Heating
Double Glazing throughout
Chain free sale
Description
Located on the ever-popular Victoria Road in the heart of Bangor, this attractive period home offers a superb opportunity to enjoy coastal living just moments from the marina, city centre, and an array of scenic shoreline walks. Perfectly positioned for those who enjoy sea swimming, vibrant cafés, and local amenities, this charming property combines character, convenience, and lifestyle in equal measure.
Internally, the home retains a wealth of original features, including cornice detailing, fireplaces, and hardwood finishes, creating a warm and inviting atmosphere throughout. The welcoming reception hall leads to a comfortable lounge with feature marble fireplace and an open archway through to the dining area, providing a natural flow for both everyday living and entertaining. The kitchen diner is well-appointed with a range of units and offers direct access to the rear, enhancing its practicality.
The accommodation is flexible and well-proportioned, extending over two upper floors with multiple bedrooms, some enjoying pleasant outlooks including glimpses of the sea. A separate bathroom and WC add to the home´s functionality, ideal for family living.
Externally, the property benefits from a paved rear garden with raised beds and a useful lean-to area, while the detached garage and courtyard provide the rare advantage of off-street parking in such a central location.
With its enviable setting close to Bangor Marina, coastal paths, and the bustling town centre, this delightful period home will appeal to a wide range of purchasers seeking a home that offers both charm and an exceptional lifestyle.
Located on the ever-popular Victoria Road in the heart of Bangor, this attractive period home offers a superb opportunity to enjoy coastal living just moments from the marina, city centre, and an array of scenic shoreline walks. Perfectly positioned for those who enjoy sea swimming, vibrant cafés, and local amenities, this charming property combines character, convenience, and lifestyle in equal measure.
Internally, the home retains a wealth of original features, including cornice detailing, fireplaces, and hardwood finishes, creating a warm and inviting atmosphere throughout. The welcoming reception hall leads to a comfortable lounge with feature marble fireplace and an open archway through to the dining area, providing a natural flow for both everyday living and entertaining. The kitchen diner is well-appointed with a range of units and offers direct access to the rear, enhancing its practicality.
The accommodation is flexible and well-proportioned, extending over two upper floors with multiple bedrooms, some enjoying pleasant outlooks including glimpses of the sea. A separate bathroom and WC add to the home´s functionality, ideal for family living.
Externally, the property benefits from a paved rear garden with raised beds and a useful lean-to area, while the detached garage and courtyard provide the rare advantage of off-street parking in such a central location.
With its enviable setting close to Bangor Marina, coastal paths, and the bustling town centre, this delightful period home will appeal to a wide range of purchasers seeking a home that offers both charm and an exceptional lifestyle.
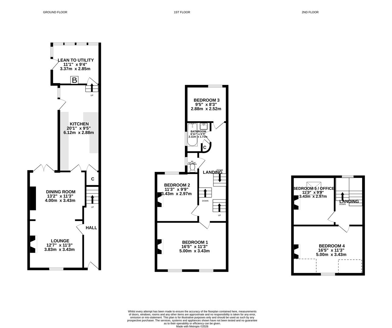
Rooms
ENTRANCE
Front Door
Original hardwood front door, glazed top light, through to reception hall.
GROUND FLOOR
Reception Hall
Period details and cornice bordering, solid teak herringbone floor.
Lounge 12'7 X 11'3 (3.84m X 3.43m)
Solid maple floor, outlook to front, open fire with marble surround and mantle, slate hearth and archway open to dining area.
Dining Area 13'2 X 11'3 (4.01m X 3.43m)
Solid maple floor, uPVC and double glazed patio doors to rear courtyard.
Kitchen Diner 20'1 X 9'5 (6.12m X 2.87m)
With range of high and low level units, oyster slate tiled floor, space for range, space for dishwasher, stainless steel sink and a half with drainer, chrome mixer tap, outlook to side, glazed display cabinetry and plate racks, space for fridge freezer, steps leading to rear lean-to.
Lean To Utility 11'1 X 9'4 (3.38m X 2.84m)
Worcester gas fired boiler, plumbed for utilities, access to rear garden.
FIRST FLOOR RETURN
Landing
With Velux window.
Bathroom 6'11 X 5'7 (2.11m X 1.70m)
White suite comprising of pedestal wash hand basin, hot and cold taps, panelled bath with hot and cold taps, thermostatically controlled shower, telephone handle attachment, feature black and white tiling to wall, hotpress cupboard.
WC
Bedroom Three 9'5 X 8'3 (2.87m X 2.51m)
Outlook to rear.
FIRST FLOOR
Bedroom One 16'5 X 11'3 (5.00m X 3.43m)
Outlook to front, feature original display fireplace with tiled fireplace surround.
Bedroom Two 11'3 X 9'9 (3.43m X 2.97m)
Outlook to rear, beautiful original fireplace.
SECOND FLOOR
Bedroom Four 11'3 X 9'9 (3.43m X 2.97m)
Cast iron display fireplace, Velux window.
Bedroom Five/Office 11'3 X 9'9 (3.43m X 2.97m)
Outlook to front with sea glimpses.
OUTSIDE
Garage
With roller shutter door.
Rear Garden
Laid in paving with raised beds laid in bark. Courtyard with outside tap, access to rear for vehicles, outside hose.
As part of our obligations under the Money Laundering, Terrorist Financing and Transfer of Funds (Information on the Payer) Regulations 2017, all Estate Agents are required to verify the identity of purchasers involved in a property transaction.
To comply with these obligations, all purchasers will be required to complete Customer Due Diligence (AML) identity checks. These checks are carried out on our behalf by our trusted third-party provider, Thirdfort.
A charge will apply of £20 + VAT per purchaser.
To comply with these obligations, all purchasers will be required to complete Customer Due Diligence (AML) identity checks. These checks are carried out on our behalf by our trusted third-party provider, Thirdfort.
A charge will apply of £20 + VAT per purchaser.
A vibrant seaside town on Belfast Lough, Bangor offers the perfect mix of coastal living and community warmth. Its lively marina, cafés, and shops make it a favourite spot for locals and visitors alike. Families love the great schools, parks, and outdoor spaces, from Pickie Fun Park to Ballyholme Beach. Regular trains and road links provide an easy commute to Belfast and beyond. With stunning sea views and a relaxed pace of life, Bangor is a wonderful place to call home.
Broadband Speed Availability
Potential Speeds for 72 Victoria Road
Max Download
1800
Mbps
Max Upload
220
MbpsThe speeds indicated represent the maximum estimated fixed-line speeds as predicted by Ofcom. Please note that these are estimates, and actual service availability and speeds may differ.
Property Location
Mortgage Calculator
Contact Agent
Contact John Minnis Estate Agents (Bangor)
Request More Information
Requesting Info about...