Contact Agent
Contact John Minnis Estate Agents (Donaghadee)
6 Bed Detached House
5 Shandon Close
Bangor, BT20 5GZ
offers around
£479,950
Key Features & Description
Substantial Detached Family Home with Huge Potential
Located in a Small Private Development of Only Four Properties
Popular and Prestigious Ballyholme Location Off Shandon Drive
Bright, Spacious and Flexible Accommodation
Living Room with Attractive Oak Fireplace, Gas Coal Effect Fire
ouPVC Double Glazed French Doors to the Rear Garden
Dining/Reception Hall with Attractive Oak Fireplace and Gas Coal Effect Fire
Large Open Plan Kitchen to Casual Dining/Family Area
Separate Utility Room
Six Bedrooms
Main Bedroom with En Suite Shower Room and Dressing Room
One of the Bedrooms Could be Used as an Additional Reception Room
That All Important Home Office
First Floor Bathroom with Four Piece Suite
Additional Downstairs WC
Phoenix Gas Heating
ouPVC Double Glazed Windows
Pressurised Water System
Gardens in Lawns to Front, Side and Rear
Driveway in Brick Paviour with Parking
Integral Garage
Convenient Location in Close Proximity to Many Amenities
Description
Located in a small gated development of only four properties here is an ideal opportunity to purchase a substantial detached family home tucked away off the popular and prestigious Shandon Drive in Bangor, offering excellent convenience to the many local amenities which include Ballyholme beach and village, sailing clubs, Ballyholme Esplanade and Bangor centre itself.
The property has bright, spacious and flexible accommodation providing a range of different layouts to suit the needs of the owners. The ground floor comprises a spacious dining/entrance hall with attractive carved oak fireplace and gas coal effect fire, good size fitted kitchen open plan to casual dining/family area and living room with attractive oak fireplace, gas coal effect fire and uPVC double glazed French doors onto the rear garden. Upstairs on the first floor you have three bedrooms including main bedroom with en suite shower room and dressing room. One of those bedrooms could be used as an additional reception room if required. You also have a bathroom, with four piece suite to include bath and separate shower, and that all important home office. Finally, on the second floor, there are three bedrooms, two of which have views to Ballyholme Bay.
Outside the property sits on a spacious site with gardens in lawns to front, side and rear. The rear garden has an extensive timber decked terrace which is an ideal spot to take in the views to Ballyholme Bay. Other benefits include Phoenix Gas heating, uPVC double glazed windows, downstairs WC, utility room, integrated garage and pressurised water system.
Demand is anticipated to be high and from a wide range of prospective purchasers. We can therefore recommend viewing at your earliest opportunity so as to appreciate it in its entirety.
Located in a small gated development of only four properties here is an ideal opportunity to purchase a substantial detached family home tucked away off the popular and prestigious Shandon Drive in Bangor, offering excellent convenience to the many local amenities which include Ballyholme beach and village, sailing clubs, Ballyholme Esplanade and Bangor centre itself.
The property has bright, spacious and flexible accommodation providing a range of different layouts to suit the needs of the owners. The ground floor comprises a spacious dining/entrance hall with attractive carved oak fireplace and gas coal effect fire, good size fitted kitchen open plan to casual dining/family area and living room with attractive oak fireplace, gas coal effect fire and uPVC double glazed French doors onto the rear garden. Upstairs on the first floor you have three bedrooms including main bedroom with en suite shower room and dressing room. One of those bedrooms could be used as an additional reception room if required. You also have a bathroom, with four piece suite to include bath and separate shower, and that all important home office. Finally, on the second floor, there are three bedrooms, two of which have views to Ballyholme Bay.
Outside the property sits on a spacious site with gardens in lawns to front, side and rear. The rear garden has an extensive timber decked terrace which is an ideal spot to take in the views to Ballyholme Bay. Other benefits include Phoenix Gas heating, uPVC double glazed windows, downstairs WC, utility room, integrated garage and pressurised water system.
Demand is anticipated to be high and from a wide range of prospective purchasers. We can therefore recommend viewing at your earliest opportunity so as to appreciate it in its entirety.
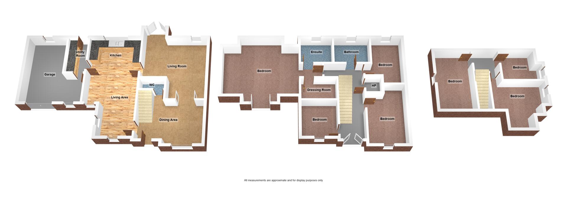
Rooms
FIRST FLOOR
Entrance
Front door with double glazed inset to reception/dining hall.
Reception / Dining 16' X 12'1 (4.88m X 3.68m)
Fully tiled floor, oak fireplace surround, granite inset and hearth and gas coal effect fire.
Downstairs WC
Two piece suite comprising low flush WC, pedestal wash hand basin, fully tiled floor, extractor fan.
Living Room 17'9 X 16'0 (5.41m X 4.88m)
French doors with glazed and bevelled insets from reception/dining hall, attractive carved oak fireplace surround, granite inset and hearth, gas coal effect fire, uPVC double glazed French doors to the rear garden.
Kitchen 27'6 X 13'8 (8.38m X 4.17m)
Range of high and low level Shaker style units, granite effect work surfaces, one and a half bowl single drainer stainless steel sink unit with mixer tap, integrated Bosch oven, integrated four ring gas hob, tiled splashback, extractor fan above, integrated dishwasher, integrated fridge, integrated freezer, glass display cabinets, built-in lighting, tiled floor, part tiled walls
Utility Room
Storage cupboards, granite effect work surfaces, single bowl single drainer stainless steel sink unit with mixer tap, plumbed for washing machine, fully tiled floor, part tiled walls, door to outside, door to integral garage.
Integral Garage 18'4 X 15'6 (5.59m X 4.72m)
Up and over door, power, light, gas fired boiler.
SECOND FLOOR
Landing
Shelved airing cupboard with pressurised water system, uPVC double glazed French doors to Juliet balcony.
Bedroom One 19'7 X 13'7 (5.97m X 4.14m)
En Suite Shower Room : Three piece suite comprising built-in fully tiled shower cubicle, pedestal wash hand basin, low flush WC, fully tiled floor, extractor fan.
Dressing Room
Dressing Room
Bedroom Four 14'2 X 8'6 (4.32m X 2.59m)
Bedroom Five 15'10 X 10'0 (4.83m X 3.05m)
Office/Bedroom Seven 9'7 X 9'2 (2.92m X 2.79m)
Bathroom
Four piece suite comprising panelled bath with mixer tap, telephone hand shower, separate built-in fully tiled shower cubicle, low flush WC, pedestal wash hand basin, tiled splashback, fully tiled floor, part tiled walls, extractor fan.
THIRD FLOOR
Bedroom Two 16'1 X 9'6 (4.90m X 2.90m)
Storage in eaves
Bedroom Three 13'9 X 11'9 (4.19m X 3.58m)
Views to Ballyholme Bay, access to roofspace.
Bedroom Six 10'6 X 8'3 (3.20m X 2.51m)
Storage in eaves, views to Ballyholme Bay.
OUTSIDE
Gardens in lawns to front, side and rear, driveway in brick paviour leading to integrated garage, good size rear and side gardens, rear garden has an extensive raised timber decked terrace which is an ideal spot to take in views to Ballyholme Bay.
As part of our obligations under the Money Laundering, Terrorist Financing and Transfer of Funds (Information on the Payer) Regulations 2017, all Estate Agents are required to verify the identity of purchasers involved in a property transaction.
To comply with these obligations, all purchasers will be required to complete Customer Due Diligence (AML) identity checks. These checks are carried out on our behalf by our trusted third-party provider, Thirdfort.
A charge will apply of £20 + VAT per purchaser.
To comply with these obligations, all purchasers will be required to complete Customer Due Diligence (AML) identity checks. These checks are carried out on our behalf by our trusted third-party provider, Thirdfort.
A charge will apply of £20 + VAT per purchaser.
Bangor is a beautiful seaside town located just over 13 miles from Belfast. Bangor offers a wide variety of property with something to suit all.
Bangor Marina is one of the largest in Ireland and attracts plenty of visitors when the sun shows its face. Tourism is a big factor in this part of the world.
Bangor Marina is one of the largest in Ireland and attracts plenty of visitors when the sun shows its face. Tourism is a big factor in this part of the world.
Broadband Speed Availability
Potential Speeds for 5 Shandon Close
Max Download
1800
Mbps
Max Upload
220
MbpsThe speeds indicated represent the maximum estimated fixed-line speeds as predicted by Ofcom. Please note that these are estimates, and actual service availability and speeds may differ.
Property Location
Mortgage Calculator
Contact Agent
Contact John Minnis Estate Agents (Donaghadee)
Request More Information
Requesting Info about...