Contact Agent

Contact John Minnis Estate Agents (Donaghadee)
5 Bed Detached House
9 Regency Park
Bangor, BT19 6WX
offers around
£325,000

Key Features & Description
Stunning Detached Family Home Located In A Highly Sought-After Cul-De-Sac
Impeccably Presented Throughout, Ready To Move In And Enjoy
Warm And Inviting Ambiance With Bright, Spacious, And Flexible Living Areas
Living Room Featuring An Attractive Fireplace And new Bifold Doors For Seamless Indoor/Outdoor Living
Bespoke Solid Wood Kitchen With Laminate Surfaces, Integrated Appliances And Open-Plan Dining Area
Five Generously Sized Bedrooms Plus A Ground-Floor Shower Room With A Three-Piece Suite
Phoenix Gas Heating
Very recently installed Double-Glazed Windows and new Velux Windows Throughout
Beautifully Landscaped Front And Rear Gardens With Fully Enclosed South Facing Rear Garden
Pebbled Driveway With Excellent Parking And A Detached Garage
Conveniently Located Near Shops, Parks, Schools, And Bloomfield Shopping Complex; High Demand Expected, So Early Viewing Is Recommended
Description
Occupying a prime cul-de-sac position within a highly sought-after residential development, this is a superb opportunity to purchase a fantastic detached family home. Set on a fantastic site, the property combines style, space and flexibility.
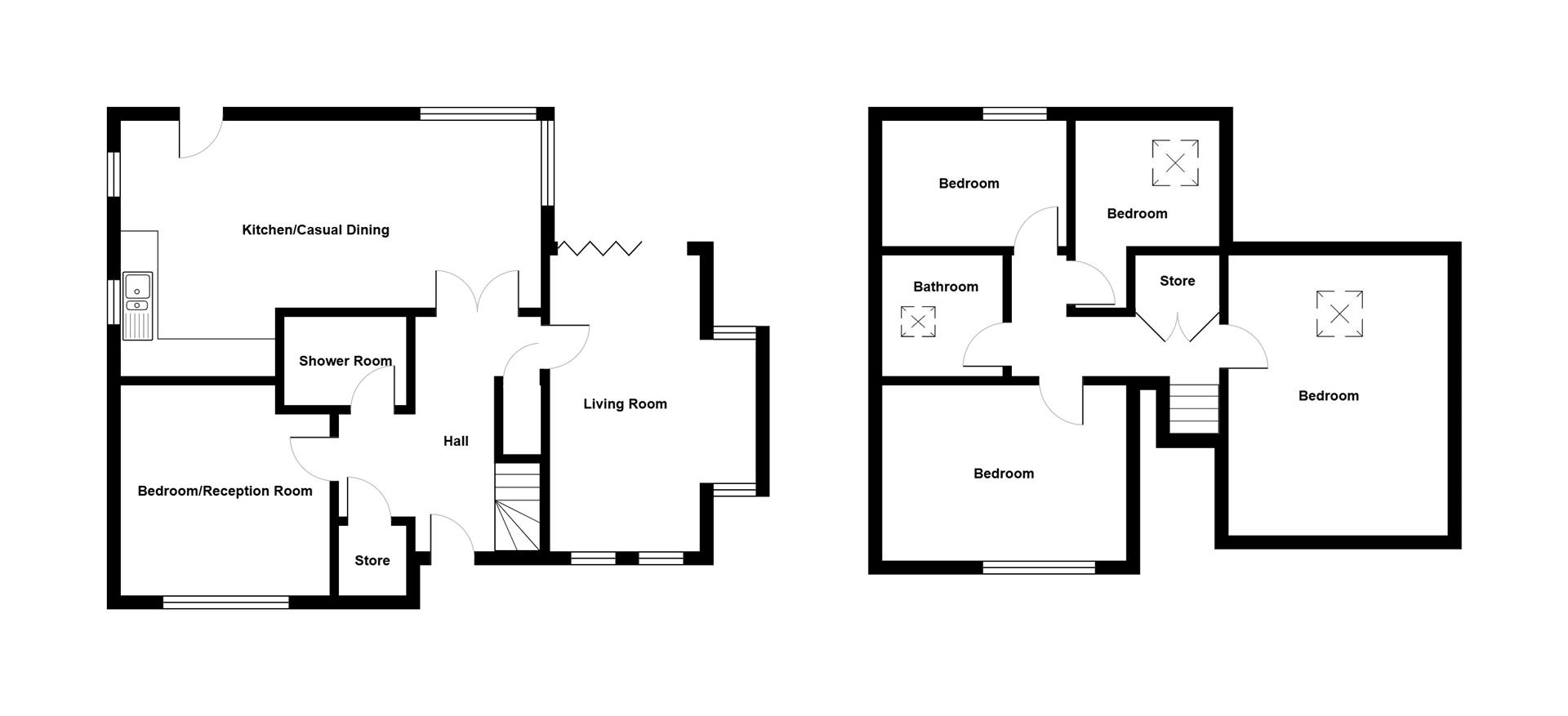
The bright and spacious accommodation is thoughtfully laid out. On the ground floor, there is a large lounge with decorative fireplace and brand-new bi-fold doors into the rear garden. The bespoke fitted pine kitchen boasts a range of integrated appliances and laminate work surfaces, open plan to a casual dining area with a delightful aspect overlooking the rear garden. The large front room can be be used as additional reception space or a very well-proportioned bedroom. A recently fitted shower room with three-piece suite completes the ground floor.
Upstairs, the home offers exceptional versatility with four well-proportioned bedrooms and a family bathroom with three-piece suite.
Externally, this home impresses just as much. The front garden is immaculately maintained in lawns and excellent parking provided by a gravel driveway leading to the large detached garage complete with high-capacity power supply.
The private south-facing rear garden is landscaped with mature trees, shrubs, and an extensive paved terrace, making it perfect for children at play, outdoor entertaining, or simply relaxing in the sun.
Further benefits include Phoenix Gas heating and recently-installed uPVC double-glazed windows.
Ideally located just off Gransha Road, the property is within easy reach of a wide range of amenities including Bloomfield Shopping Centre, Bangor Grammar School, Aurora Leisure Centre, Ward Park, and Bangor town centre, with excellent accessibility for Belfast-bound commuters.
With its enviable position, tremendous flexibility, and beautifully presented site, this is a home that will impress upon internal inspection. Viewing is highly recommended.
Occupying a prime cul-de-sac position within a highly sought-after residential development, this is a superb opportunity to purchase a fantastic detached family home. Set on a fantastic site, the property combines style, space and flexibility.
The bright and spacious accommodation is thoughtfully laid out. On the ground floor, there is a large lounge with decorative fireplace and brand-new bi-fold doors into the rear garden. The bespoke fitted pine kitchen boasts a range of integrated appliances and laminate work surfaces, open plan to a casual dining area with a delightful aspect overlooking the rear garden. The large front room can be be used as additional reception space or a very well-proportioned bedroom. A recently fitted shower room with three-piece suite completes the ground floor.
Upstairs, the home offers exceptional versatility with four well-proportioned bedrooms and a family bathroom with three-piece suite.
Externally, this home impresses just as much. The front garden is immaculately maintained in lawns and excellent parking provided by a gravel driveway leading to the large detached garage complete with high-capacity power supply.
The private south-facing rear garden is landscaped with mature trees, shrubs, and an extensive paved terrace, making it perfect for children at play, outdoor entertaining, or simply relaxing in the sun.
Further benefits include Phoenix Gas heating and recently-installed uPVC double-glazed windows.
Ideally located just off Gransha Road, the property is within easy reach of a wide range of amenities including Bloomfield Shopping Centre, Bangor Grammar School, Aurora Leisure Centre, Ward Park, and Bangor town centre, with excellent accessibility for Belfast-bound commuters.
With its enviable position, tremendous flexibility, and beautifully presented site, this is a home that will impress upon internal inspection. Viewing is highly recommended.
Rooms
Covered Porch Entrance
Welcoming entrance with a panelled front door, decorative glazed side panels, and a sheltered porch area.
Reception Hall
Bright and welcoming entrance hall with laminate wooden flooring, open staircase to the first floor, and direct access to the dining area, creating an inviting flow through the home. Access to understairs storage with featured vaulted ceiling.
Living Room 17'5" X 13'8" (5.31m X 4.17m)
Large, bright spacious living room with cermanic tiled flooring and attractive decorative fireplace. The living room is complemented by recently installed bi-fold doors to give an indoor/ outdoor living space.
Bedroom Five/Reception Room 12' X 10' (3.66m X 3.05m)
Spacious double bedroom with laminate flooring and a skylight, creating a bright and airy atmosphere.
Bespoke Fitted Kitchen to Dining Area 14'6" X 8'9" (4.42m X 2.67m)
A superb kitchen fitted with a range of high and low level units, laminate work surfaces, and a one-and-a-half bowl ceramic sink with mixer tap. Additional features include an induction hob with tiled splashback, integrated oven and grill, space for fridge, plumbing for washing machine and a central island with useful under-counter storage. Stable-style patio door opens directly to the rear garden, creating an effortless indoor-outdoor flow.
The kitchen leads seamlessly into an open plan dining space, complete with laminate wooden flooring and a striking feature open fireplace. Large double windows bathe the room in natural light while offering pleasant views over the garden.
The kitchen leads seamlessly into an open plan dining space, complete with laminate wooden flooring and a striking feature open fireplace. Large double windows bathe the room in natural light while offering pleasant views over the garden.
Fully Tiled Shower Room
Stylish and modern shower room featuring a corner enclosure with rainfall shower, pedestal wash hand basin, and low flush WC. Finished with neutral décor and complemented by a practical wall-mounted cabinet.
FIRST FLOOR
Hotpress with lagged copper cylinder and Willis type immersion, Baxi gas fired boiler, low voltage spotlights, access to roofspace.
Principal Bedroom 14'4" X 12'7" (4.37m X 3.84m)
Generous double bedroom with laminate wooden flooring and a large window flooding the room with natural light.
Bedroom Two 10' X 10' (3.05m X 3.05m)
Charming twin bedroom cleverly designed to maximise storage with use of the eaves.
Bedroom Three 10'5" X 8' (3.18m X 2.44m)
A bright bedroom with laminate flooring and skylight, enjoying excellent natural light.
Bedroom Four 10'5" X 6'12" (3.18m X 2.13m)
Currently utilised as a home office, offering versatility as a fifth bedroom or study space.
Bathroom
White suite comprising: panelled bath with chrome hand shower and chrome mixer taps, low flush WC, pedestal wash hand basin with chrome mixer taps, laminate tiled effect floor, fully tiled walls, low voltage spotlights, Velux window giving additional natural light.
OUTSIDE
Beautifully presented, low maintenance, front and side garden in lawns with attractive plants and shrubs, driveway in loose stones with ample parking for several cars to detached garage. Beautifully presented, fully enclosed, mature rear garden in lawns with attractive plants and shrubs, sapling trees and hedgerows, paved patio barbecue area and outside tap.
DETACHED GARAGE
Brand-new up and over door, high-capacity power supply and ample storage.
Bangor is a beautiful seaside town located just over 13 miles from Belfast. Bangor offers a wide variety of property with something to suit all.
Bangor Marina is one of the largest in Ireland and attracts plenty of visitors when the sun shows its face. Tourism is a big factor in this part of the world.
Bangor Marina is one of the largest in Ireland and attracts plenty of visitors when the sun shows its face. Tourism is a big factor in this part of the world.
Broadband Speed Availability
Potential Speeds for 9 Regency Park
Max Download
1800
Mbps
Max Upload
220
MbpsThe speeds indicated represent the maximum estimated fixed-line speeds as predicted by Ofcom. Please note that these are estimates, and actual service availability and speeds may differ.
Property Location

Mortgage Calculator
Contact Agent

Contact John Minnis Estate Agents (Donaghadee)
Request More Information
Requesting Info about...