3 Bed Semi-Detached House
4 Rosemary Park
Bangor, County Down, BT20 3EX
price
£175,000

Key Features & Description
Description
This attractive red brick semi-detached villa presents an excellent opportunity for young families or first-time buyers seeking a home in one of Bangor´s prime residential locations.
This attractive red brick semi-detached villa presents an excellent opportunity for young families or first-time buyers seeking a home in one of Bangor´s prime residential locations.
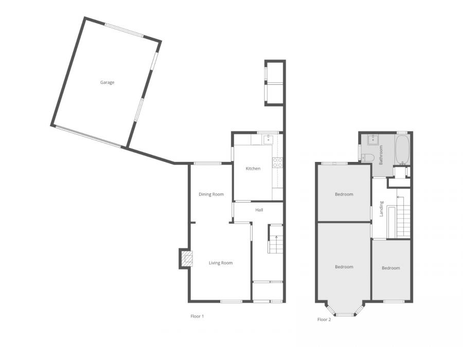
Rooms
Description
This attractive red brick semi-detached villa presents an excellent opportunity for young families or first-time buyers seeking a home in one of Bangor´s prime residential locations.
The accommodation is well proportioned and thoughtfully arranged. A bright lounge leads through to an open-plan dining room, creating an ideal space for everyday family life or entertaining guests. The modern fitted kitchen is both stylish and practical, offering ample storage and worktop space. On the first floor there are three well-presented bedrooms, together with a bathroom fitted with a white suite.
Practical benefits include oil-fired central heating, double glazing, and low-maintenance PVC fascia, soffits and guttering throughout. Externally, the property offers generous driveway parking, a detached garage, and enclosed rear gardens providing a safe and private space for children to play or for outdoor relaxation.
With its combination of location, practicality and appeal, 4 Rosemary Park represents a superb opportunity for those wishing to secure a long-term home in Bangor.
The accommodation is well proportioned and thoughtfully arranged. A bright lounge leads through to an open-plan dining room, creating an ideal space for everyday family life or entertaining guests. The modern fitted kitchen is both stylish and practical, offering ample storage and worktop space. On the first floor there are three well-presented bedrooms, together with a bathroom fitted with a white suite.
Practical benefits include oil-fired central heating, double glazing, and low-maintenance PVC fascia, soffits and guttering throughout. Externally, the property offers generous driveway parking, a detached garage, and enclosed rear gardens providing a safe and private space for children to play or for outdoor relaxation.
With its combination of location, practicality and appeal, 4 Rosemary Park represents a superb opportunity for those wishing to secure a long-term home in Bangor.
Entrance Porch
uPVC double glazed front door, laminate wooden floor, glazed door to hall.
Reception Hall
Cloaks recess under stairs.
Lounge 13'10" X 12'9" (4.22m X 3.89m)
Fireplace with slate hearth, open plan to Dining Room.
Dining Room 10'4" X 7'6" (3.15m X 2.29m)
Kitchen 12'0" X 8'11" (3.66m X 2.72m)
Single drainer stainless steel sink unit with mixer taps, excellent range of high and low level units with laminated work surfaces, built in oven and 4 ring ceramic hob, glass splash back, stainless steel chimney extractor fan, plumbed for washing machine, integrated fridge freezer, laminate wooden floor, uPVC double glazed door to rear garden.
First Floor Landing
Access to roof space.
Bedroom 1 16'4" X 9'6" (4.98m X 2.90m)
Bedroom 2 10'2" X 9'6" (3.10m X 2.90m)
Bedroom 3 10'10" X 6'11" (3.30m X 2.10m)
Bathroom
White suite comprising: Panelled bath with mixer taps and thermostatically controlled shower, dual flush WC pedestal wash hand basin, part panelled walls, heated towel rail, recessed spotlights, hot press with storage above.
Outside
Concrete driveway to excellent off street parking for multiple vehicles.
Detached Garage 19'8" X 13'9" (6.00m X 4.20m)
Roller door, side access.
Gardens
Front and side gardens in lawns and shrubs. Enclosed garden to the rear in lawns, shrubs and paved patio area. PVC Oil tank, boiler house with oil boiler.
The property benefits from PVC fascia soffits and guttering.
The property benefits from PVC fascia soffits and guttering.
NB
As a business carrying out estate agency work, we are required to verify the identity of both the vendor and the purchaser as outlined in the following: The Money Laundering, Terrorist Financing and Transfer of Funds (Information on the Payer) Regulations 2017 - https://www.legislation.gov.uk/uksi/2017/692/contents.
To be able to purchase a property in the United Kingdom all agents have a legal requirement to conduct Identity checks on all customers involved in the transaction to fulfil their obligations under Anti Money Laundering regulations. We outsource this check to a third party and a charge will apply of £30 + VAT for a single purchaser or £50 + VAT per couple.
To be able to purchase a property in the United Kingdom all agents have a legal requirement to conduct Identity checks on all customers involved in the transaction to fulfil their obligations under Anti Money Laundering regulations. We outsource this check to a third party and a charge will apply of £30 + VAT for a single purchaser or £50 + VAT per couple.
Broadband Speed Availability
Potential Speeds for 4 Rosemary Park
Max Download
1800
Mbps
Max Upload
220
MbpsThe speeds indicated represent the maximum estimated fixed-line speeds as predicted by Ofcom. Please note that these are estimates, and actual service availability and speeds may differ.
Property Location

Mortgage Calculator
Contact Agent

Contact Reeds Rains (Bangor)
Request More Information
Requesting Info about...
4 Rosemary Park, Bangor, County Down, BT20 3EX
By registering your interest, you acknowledge our Privacy Policy

By registering your interest, you acknowledge our Privacy Policy