3 Bed Semi-Detached House
50 Beverley Gardens
Bangor, BT20 4NQ
offers in the region of
£235,000
Key Features & Description
Spacious semi detached property located in the popular Ballyholme area
Two separate reception rooms
Dining/kitchen area
3 good sized bedrooms
Shower Room and Separate WC
Double glazing and oil fired central heating
Garge and off road parking for 2 cars
No onward chain
Early viewing is recommended
Description
Located in the highly sought-after Beverley Gardens area of Bangor, this spacious three-bedroom semi-detached home presents an excellent opportunity to create an ideal family home. Just a short stroll from the beach, the property is also close to local schools, churches, cafés, restaurants, Ballyholme village and Bangor city centre.
Inside, the property features two bright and welcoming reception rooms, along with an extended dining kitchen fitted with a wide range of units. Upstairs there are 3 good sized bedrooms and modern bathroom with a white suite. Along side, there is a separate wc.
To the rear, there is a generous enclosed garden with mature plants and shrubs, providing a peaceful outdoor space. A driveway leads to a detached garage, offering excellent parking and additional storage.
Conveniently situated just off the Donaghadee Road, 58 Beverley Gardens will appeal to a variety of buyers. With no onward chain, it´s ready for immediate occupancy-giving you the chance to move in and make it your own.
Early viewing is highly recommended-contact our Bangor team today to arrange your appointment.
Located in the highly sought-after Beverley Gardens area of Bangor, this spacious three-bedroom semi-detached home presents an excellent opportunity to create an ideal family home. Just a short stroll from the beach, the property is also close to local schools, churches, cafés, restaurants, Ballyholme village and Bangor city centre.
Inside, the property features two bright and welcoming reception rooms, along with an extended dining kitchen fitted with a wide range of units. Upstairs there are 3 good sized bedrooms and modern bathroom with a white suite. Along side, there is a separate wc.
To the rear, there is a generous enclosed garden with mature plants and shrubs, providing a peaceful outdoor space. A driveway leads to a detached garage, offering excellent parking and additional storage.
Conveniently situated just off the Donaghadee Road, 58 Beverley Gardens will appeal to a variety of buyers. With no onward chain, it´s ready for immediate occupancy-giving you the chance to move in and make it your own.
Early viewing is highly recommended-contact our Bangor team today to arrange your appointment.
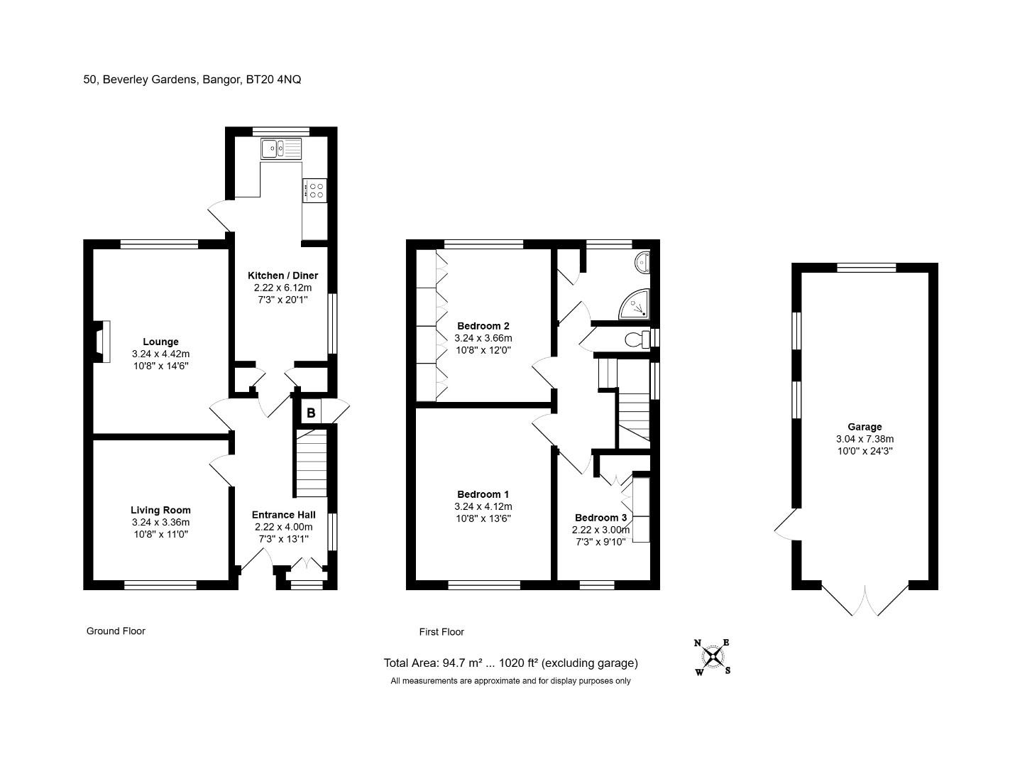
Rooms
Entrance Hall
Upvc entrance door, storage cupboard.
Reception One 11'10" X 10'11" (3.63m X 3.34m)
Reception Two 14'9" X 10'11" (4.52m X 3.33m)
Brick surround fire place with tiled hearth.
Dining Kitchen 21'10" X 7'8"awp (6.66m X 2.35mawp)
High and low level units, single drainer one and half bowl stainless steel sink unit with mixer tap, plumbing for dish washer, four ring ceramic hob with concealed extractor fan, electric oven, part tiled walls, tiled floor, two storage cupboards.
Landing
Bedroom One 13'10" X 10'11" (4.23m X 3.35m)
Bedroom Two 12'10" X 9'1"tobuiltinrobes. (3.93m X 2.79mtobuiltinrobes.)
Bedroom Three 10'0" X 5'10"tobuiltinunits (3.05m X 1.80mtobuiltinunits)
Bathroom 5'10" X 7'6" (1.79m X 2.31m)
Vanity wash hand basin, corner shower cubicle, hot press.
WC
Low flush WC, pvc paneled walls, tiled floor.
External
Mature garden to rear enclosed and bounded by hedging, pvc oil tank. Garden to front in lawns and mature shrubs, tarmac driveway.
Detached Garage 25'2" X 10'3" (7.69m X 3.13m)
Metal up and over door, light and power.
Broadband Speed Availability
Potential Speeds for 50 Beverley Gardens
Max Download
1800
Mbps
Max Upload
220
MbpsThe speeds indicated represent the maximum estimated fixed-line speeds as predicted by Ofcom. Please note that these are estimates, and actual service availability and speeds may differ.
Property Location
Mortgage Calculator
Contact Agent
Contact Rea Estates (Bangor)
Request More Information
Requesting Info about...
50 Beverley Gardens, Bangor, BT20 4NQ
By registering your interest, you acknowledge our Privacy Policy
By registering your interest, you acknowledge our Privacy Policy