Contact Agent

Contact Gordon Smyth Estate Agents

Contact Gordon Smyth Estate Agents

3 Bed End Terrace

36 Ballyhalbert Gardens

Bangor, BT19 1SF

offers in the region of £107,500
  • Status Sale Agreed
  • Property Type End Terrace
  • Bedrooms 3
  • Receptions 2
  • Heating Gas
  • EPC Rating C69 / C72
  • Stamp Duty
    Higher amount applies when purchasing as buy to let or as an additional property
    £0 / £5,375*
  • Typical Mortgage
    Click price to use our mortgage calculator
EPC Rating

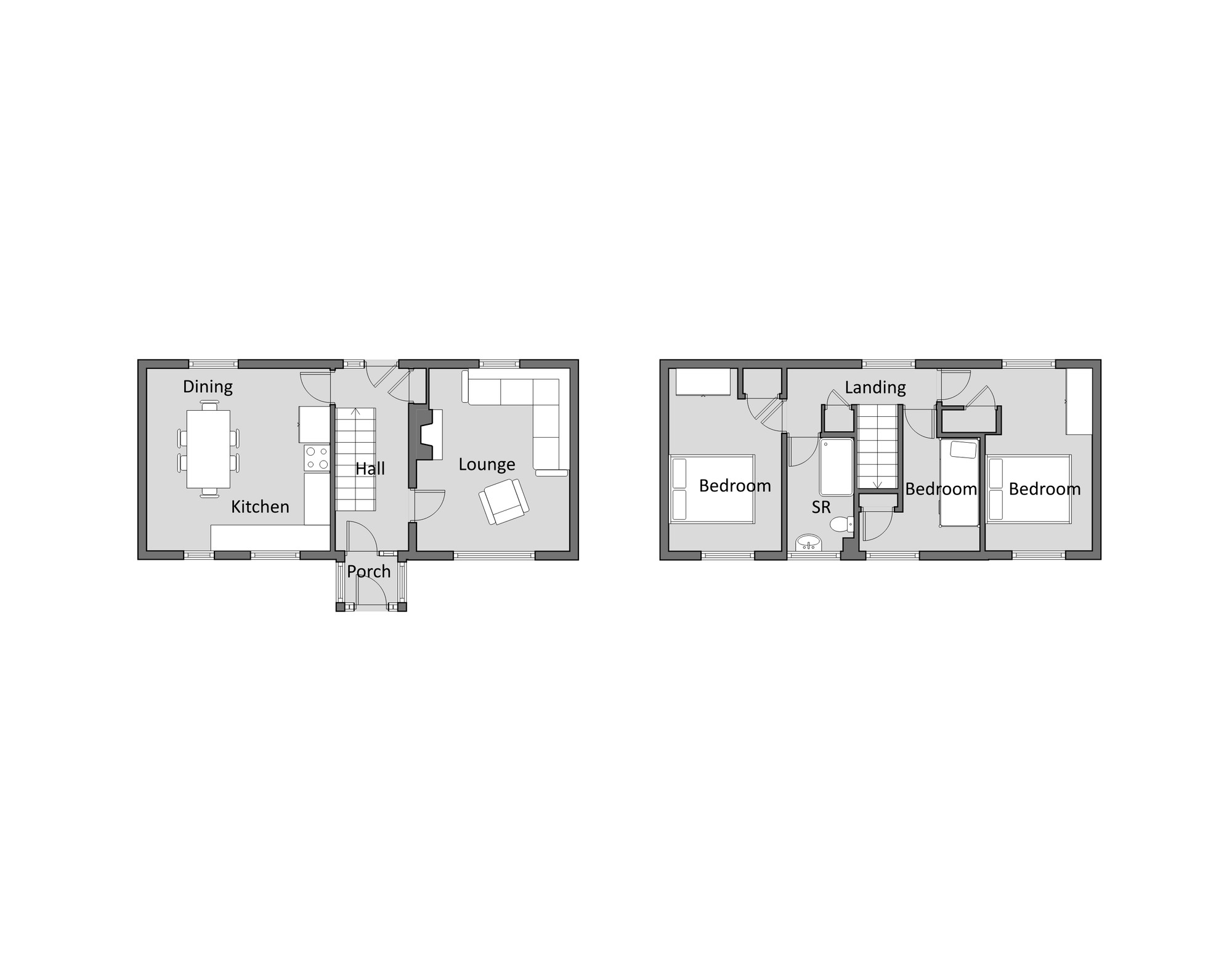
Key Features & Description

Beautifully Presented End Terrace Home
Lounge With Modern Fire Place & Wood Flooring
Spacious Open Plan Kitchen/Dining
Three First Floor Bedrooms With Built In Robes
Shower Room With White Suite
Gas Fired Central Heating
Complete Pvc Front & Rear Doors, Windows and Fascia/Soffit Boards
Generous Gardens To Front & Side
No Onward Chain
Description

This beautifully presented end terrace home sits on a generous site in a quiet cul de sac within this popular residential area.

The accommodation comprises lounge with wood flooring, spacious kitchen/dining, three first floor bedrooms bedrooms (two with built in robes) and a shower room. Outside there are gardens to front and side.

Convenient to local shops on the Rathgael Road and Springhill, primary schools and to the main arterial road for those commuting to Belfast. Bangor City Centre and Lesley Bloomfield are a short car ride away.

We expect this superb home will have wide appeal and early viewing is essential.

Rooms

(0.00m X 0.00m) Tiled floor.
(0.00m X 0.00m) Laminate wood flooring, storage cupboard.
Lounge 11' 7" X 13' 10" (3.53m X 4.22m) Fire place with wood surround and electric fire, laminate wood flooring.
Kitchen / Dining 13' 9" X 13' 11" (4.19m X 4.24m) Single drainer stainless steel sink unit with mixer tap, range of high and low level units, formica work surfaces, extractor hood, plumbed for washing machine, wall tiling, laminate wood flooring.
Landing ( X ) Storage cupboard
Master Bedroom 8' 6" X 13' 10" (2.59m X 4.22m) Built in robe.
Bedroom Two 8'02" X 13'11" (2.49m X 4.24m)
Bedroom Three 9'02" X 10'10" (2.79m X 3.30m) Widest point. Storage cupboard
Shower Room (0.00m X 0.00m) White suite comprising pedestal wash hand basin, low flush wc, double shower cubicle, wall tiling, tiled floor, extractor fan.
(0.00m X 0.00m) Generous gardens to front and side in lawns, hedging and patio area.

Broadband Speed Availability

Ultrafast

Potential Speeds for 36 Ballyhalbert Gardens

Max Download
1000
Mbps
Max Upload
220
Mbps
The speeds indicated represent the maximum estimated fixed-line speeds as predicted by Ofcom. Please note that these are estimates, and actual service availability and speeds may differ.

Property Location

Show Map

Mortgage Calculator

Disclaimer: The following calculations act as a guide only, and are based on a typical repayment mortgage model. Financial decisions should not be made based on these calculations and accuracy is not guaranteed. Always seek professional advice before making any financial decisions.

Directions

From Rathgael Road into Drumhirk Drive, take first left into Ballyhalbert Gardens and no 36 is on the first cul de sac on the right.

Contact Agent

Contact Gordon Smyth Estate Agents

Contact Gordon Smyth Estate Agents

Request More Information
Requesting Info about...
36 Ballyhalbert Gardens, Bangor, BT19 1SF 36 Ballyhalbert Gardens, Bangor, BT19 1SF

By registering your interest, you acknowledge our Privacy Policy
Ask Holmes
Ask Holmes
Let's find your next home

Are you sure you want to reset the chat?

Checking API...