Contact Agent
Contact Victoria Pinkerton (North Down)
Retail
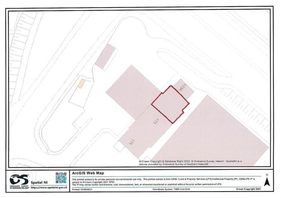
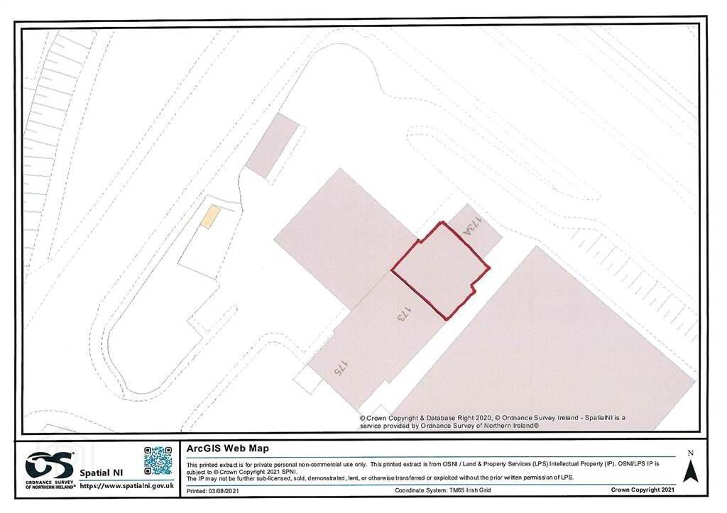
173 Clandeboye Road
Bangor, BT19 1AA
Price on Application
- Status For Rent
- Property Type Retail
Key Features & Description
Large Retail Unit In Prominent Location
Approximately 2100 Sq Ft (195 Sq m)
Located In Prominent Position On Clandeboye Road
Adjoining Mace Supermarket, Chip Shop And Asian Carry Out With Solo Filling Station And Forecourt
Suitable For A Variety of Uses Including Hot Food Use/Coffee Shop (Subject To Planning)
Description
The property has been sub divided from the adjoining Mace Supermarket to which it originally formed a large single unit but now is a separate entry. Located in a prominent position on the corner of Upper Clandeboye Road and West Circular Road this busy complex comprises Solo Filling Station and Forecourt. Mace Supermarket, Dainty's Fish and Chip Shop, Asian Delight carry out and Ulster Bank ATM with almost continuous pedestrian and vehicular use. The premises would be suitable for a variety of uses subject to planning where necessary.
The property has been sub divided from the adjoining Mace Supermarket to which it originally formed a large single unit but now is a separate entry. Located in a prominent position on the corner of Upper Clandeboye Road and West Circular Road this busy complex comprises Solo Filling Station and Forecourt. Mace Supermarket, Dainty's Fish and Chip Shop, Asian Delight carry out and Ulster Bank ATM with almost continuous pedestrian and vehicular use. The premises would be suitable for a variety of uses subject to planning where necessary.
Rooms
Unit 36'10" X 49'10" (11.23m X 15.19m)
Overall with tiled floor, and electric roller shutter door to front, emergency fire escape to rear.
Overall internal floor area approx 2135 Sq Ft (198.4 Sq M)
NB
Consideration could be given for subdivision if required
The premises are supplied with mains water, electricity, storm and foul drainage
A rent free fitting out period will be allowed for fitting out purposes.
Overall internal floor area approx 2135 Sq Ft (198.4 Sq M)
NB
Consideration could be given for subdivision if required
The premises are supplied with mains water, electricity, storm and foul drainage
A rent free fitting out period will be allowed for fitting out purposes.
Directions
Corner of Upper Clandeboye Road and the West Circular Road
Broadband Speed Availability
Potential Speeds for 173 Clandeboye Road
Max Download
1800
Mbps
Max Upload
220
MbpsThe speeds indicated represent the maximum estimated fixed-line speeds as predicted by Ofcom. Please note that these are estimates, and actual service availability and speeds may differ.
Property Location
Contact Agent
Contact Victoria Pinkerton (North Down)
Request More Information
Requesting Info about...
173 Clandeboye Road, Bangor, BT19 1AA
By registering your interest, you acknowledge our Privacy Policy
By registering your interest, you acknowledge our Privacy Policy