4 Bed Detached House
The Barn, 6A Maxwell Lane
Bangor, County Down, BT20 3RR
offers over
£695,000
Key Features & Description
Description
This superb detached home is located just off Maxwell Road in Bangor, offering a rare opportunity to acquire a contemporary, high-end residence in one of North Down´s most sought-after locations, complete with stunning sea views.
Behind its traditional stone façade lies a striking contemporary interior, expertly reimagined by award-winning design consultancy Atelier Branco & Fairley-judges on NI House of the Year.
The open-plan living areas are flooded with natural light, with expansive windows and a terrace framing the ever-changing coastal panorama. Interiors combine warmth and sophistication, featuring clean architectural lines, bespoke joinery, and premium finishes throughout. The kitchen, equipped with a full range of high-end integrated appliances, quartz work surfaces, and a central island, provides the perfect setting for both daily living and entertaining while enjoying the coastal skies and passing maritime activity.
The well-proportioned bedrooms are all on the ground floor, with the principal suite boasting a dedicated dressing area with fitted wardrobes and a contemporary en-suite. A stylish family bathroom and an additional bedroom or home gym complete the accommodation.
Situated just minutes from scenic coastal walks, Bangor City Centre, the marina, and excellent transport links to Belfast, this home is ideally suited to professional couples, families, or those seeking a refined retirement retreat. Early viewing is highly recommended to fully appreciate everything this unique property has to offer.
This superb detached home is located just off Maxwell Road in Bangor, offering a rare opportunity to acquire a contemporary, high-end residence in one of North Down´s most sought-after locations, complete with stunning sea views.
Behind its traditional stone façade lies a striking contemporary interior, expertly reimagined by award-winning design consultancy Atelier Branco & Fairley-judges on NI House of the Year.
The open-plan living areas are flooded with natural light, with expansive windows and a terrace framing the ever-changing coastal panorama. Interiors combine warmth and sophistication, featuring clean architectural lines, bespoke joinery, and premium finishes throughout. The kitchen, equipped with a full range of high-end integrated appliances, quartz work surfaces, and a central island, provides the perfect setting for both daily living and entertaining while enjoying the coastal skies and passing maritime activity.
The well-proportioned bedrooms are all on the ground floor, with the principal suite boasting a dedicated dressing area with fitted wardrobes and a contemporary en-suite. A stylish family bathroom and an additional bedroom or home gym complete the accommodation.
Situated just minutes from scenic coastal walks, Bangor City Centre, the marina, and excellent transport links to Belfast, this home is ideally suited to professional couples, families, or those seeking a refined retirement retreat. Early viewing is highly recommended to fully appreciate everything this unique property has to offer.
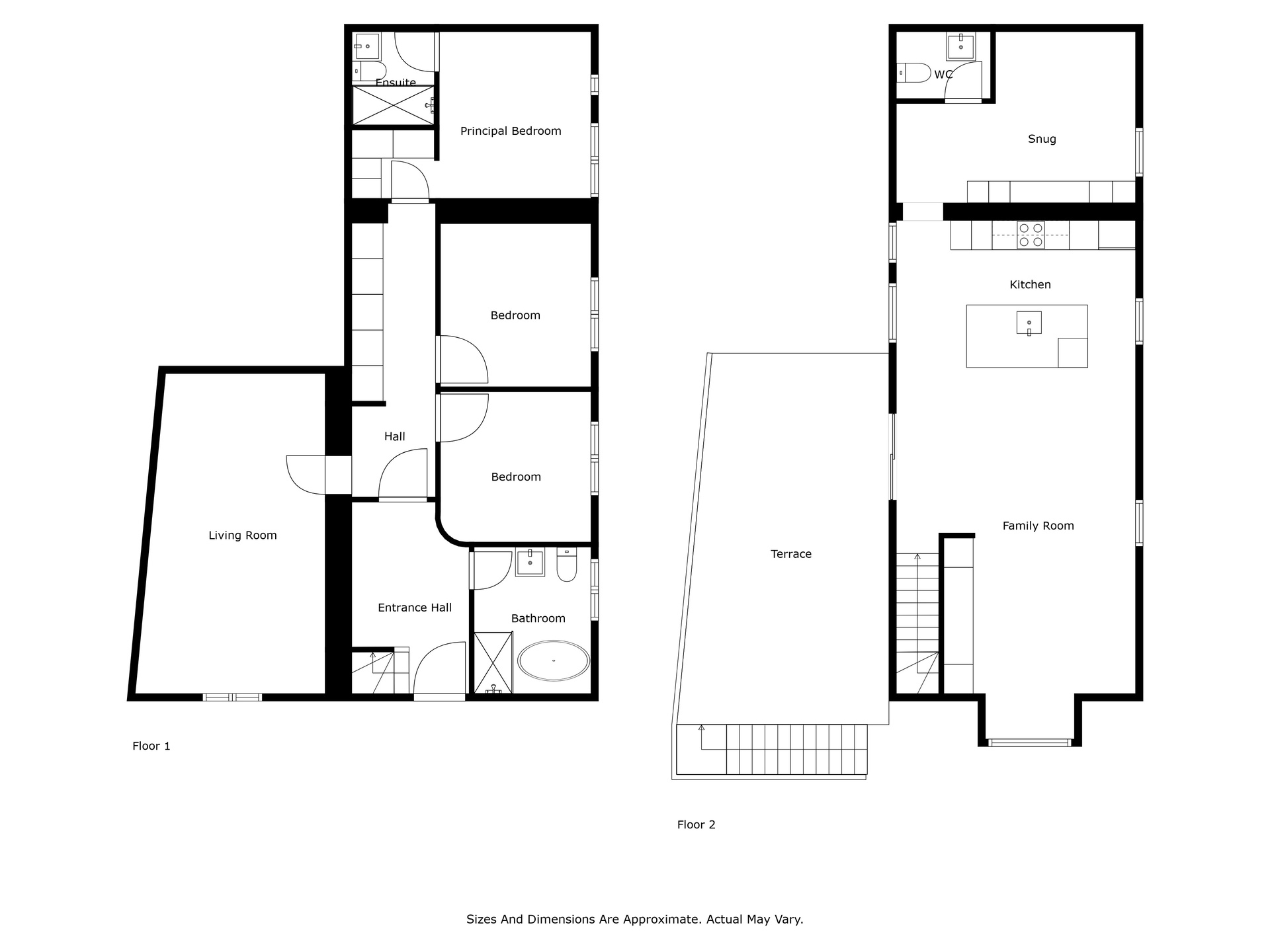
Rooms
Ground Floor
Composite front door to:
Entrance Hall
Ceramic tiled floor.
Bathroom
White suite comprising Adamsez free standing bath with mixer tap and telephone hand shower, low flush wc, wash stand, walk-in shower cubicle with telephone hand shower and rain shower head, fully tiled walls, ceramic tiled floor, LED lighting, extractor fan, touch sensor mirror, brass fusion fittings.
Rear Hallway
Cloaks storage area incorporating laundry area, Hotpoint washing machine, 7kg Hoover heat pump tumble dryer, gas fired boiler.
Gym/Bedroom 4 22'0" X 11'0" (6.70m X 3.35m(Atwidestpoints))
Engineered Real Oak flooring.
Bedroom 2 10'0" X 10'0" (3.05m X 3.05m)
Bedroom 3 10'11" X 10'0" (3.33m X 3.05m)
Principal Bedroom 11'0" X 10'0" (3.35m X 3.05m)
Dressing area with range of built-in wardrobes.
Ensuite Shower Room
Fully tiled shower cubicle with telephone hand shower and rain shower head, low flush wc, wash stand, touch sensor mirror, ceramic tiled floor, fully tiled walls, LED lighting, brass fusion fittings.
Stairs from hall to:
First Floor
Large Kitchen/Living/Dining 31'0" X 16'0" (9.45m X 4.88m)
Living Area
Media wall with dark walnut akupanels, large picture window with panoramic lough view, Engineered Real Oak flooring, sliding doors to balcony sun terrace.
Kitchen
Luxury matt taupe kitchen with range of high and low level units, quartz work surfaces. Island with Franke Kubus single bowl gloss white ceramic undermounted sink, Quooker patinated brass fusion boiling water tap, quad pull out bins, integrated Bosch dishwasher, CDA wine cooler, Evoline stainless steel pop up socket.Neff touch control induction hob, extractor fan and canopy, Neff single slide'n' hide oven and combination Neff microwave / oven, Franke box flush canopy hood, integrated Bosch 70/30 fridge freezer, ultraslim LED lights below kitchen wall units. Engineered Real Oak flooring.
Media wall with dark walnut akupanels, large picture window with panoramic lough view, Engineered Real Oak flooring, sliding doors to balcony sun terrace.
Kitchen
Luxury matt taupe kitchen with range of high and low level units, quartz work surfaces. Island with Franke Kubus single bowl gloss white ceramic undermounted sink, Quooker patinated brass fusion boiling water tap, quad pull out bins, integrated Bosch dishwasher, CDA wine cooler, Evoline stainless steel pop up socket.Neff touch control induction hob, extractor fan and canopy, Neff single slide'n' hide oven and combination Neff microwave / oven, Franke box flush canopy hood, integrated Bosch 70/30 fridge freezer, ultraslim LED lights below kitchen wall units. Engineered Real Oak flooring.
Snug/Cinema Room 15'11" X 11'0" (4.85m X 3.35m)
Media wall in dark walnut akupanels. Engineered Real Oak flooring.
Cloakroom
Low flush wc, wash hand stand, heated towel rail, ceramic tiled floor, fully tiled walls, extractor fan, brass fusion fittings, LED lighting, Velux window.
Outside
Private laneway leading to brick pavior driveway with parking for two cars. Garden area laid in lawns, greenhouse.
Broadband Speed Availability
Potential Speeds for 6a Maxwell Lane
Max Download
1800
Mbps
Max Upload
220
MbpsThe speeds indicated represent the maximum estimated fixed-line speeds as predicted by Ofcom. Please note that these are estimates, and actual service availability and speeds may differ.
Property Location
Mortgage Calculator
Contact Agent
Contact Simon Brien (Holywood)
Request More Information
Requesting Info about...
The Barn, 6A Maxwell Lane, Bangor, County Down, BT20 3RR
By registering your interest, you acknowledge our Privacy Policy
By registering your interest, you acknowledge our Privacy Policy