3 Bed Town House
24 Abbington Manor
Bangor, BT19 1ZQ
offers in region of
£195,000
Key Features & Description
Modern townhouse
Popular Bangor West development close to commuter routes to Belfast
Three bedrooms
Lounge
Modern kitchen / dining area
Bathroom and downstairs cloak room
Enclosed rear garden and off-street parking
Gas fired central heating and double glazed windows
Ideal opportunity for a first time buyer or buy to let investor
Viewing strictly by appointment
Description
This modern townhouse is located in a popular Bangor West development, within walking distance to Springhill Shopping complex and ideally positioned for easy access to commuter routes to Belfast. The property offers three well-proportioned bedrooms, a comfortable lounge, and a contemporary kitchen with dining area. Additional features include a family bathroom and a convenient downstairs cloakroom. Outside, there is an enclosed rear garden along with off-street parking. The home also benefits from gas-fired central heating and double glazing and the property presents an excellent opportunity for first-time buyers, buy-to-let investors or purchasers wishing to downsize.
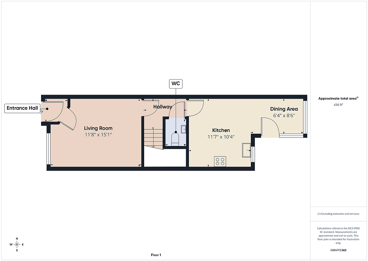
ENTRANCE HALL Solid wood floor.
LIVING ROOM 15' 1" x 11' 8" (4.6m x 3.56m) Feature gas fireplace; solid wood floor.
HALLWAY Solid wood floor.
KICTHEN 11' 7" x 10' 4" (3.53m x 3.15m) Excellent range of high and low level units with drawers and complementary work surfaces; four ring gas hob with electric under oven; extractor hood; integrated fridge / freezer; integrated dishwasher; integrated washing machine; tile floor.
DINING AREA 8' 6" x 6' 4" (2.59m x 1.93m) Tile floor; access to rear garden.
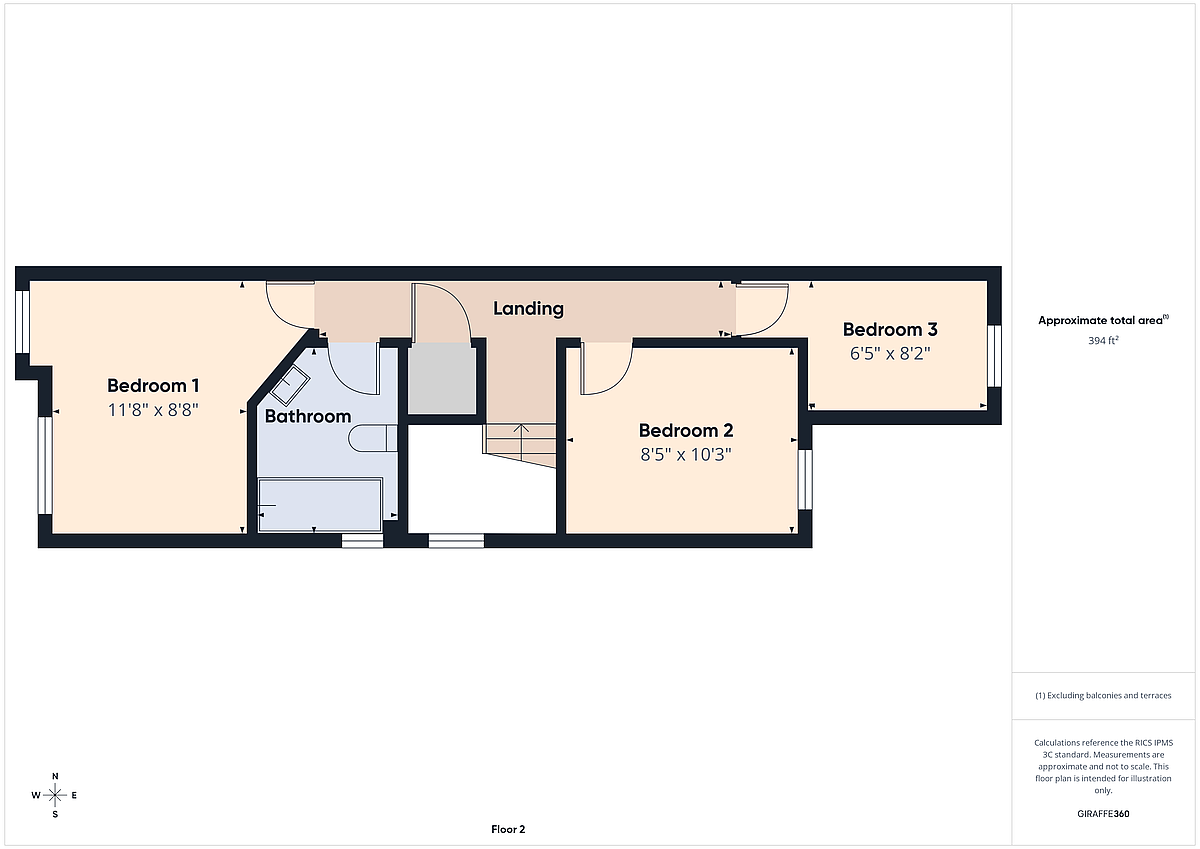
FIRST FLOOR LANDNG
BEDROOM 1 11' 8" x 8' 8" (3.56m x 2.64m)
BEDROOM 2 10' 3" x 8' 5" (3.12m x 2.57m)
BEDROOM 3 8' 2" x 6' 5" (2.49m x 1.96m)
BATHROOM White suite comprising a panelled bath with thermostatic shower over; dual flush WC; free-standing wash hand basin; tile floor.
CLOAK ROOM White suite comprising a dual flush WC and pedestal wash hand basin; tile floor.
OUTSIDE Enclosed rear garden laid in lawn with patio area and alleyway access; residents off-street parking to front.
This modern townhouse is located in a popular Bangor West development, within walking distance to Springhill Shopping complex and ideally positioned for easy access to commuter routes to Belfast. The property offers three well-proportioned bedrooms, a comfortable lounge, and a contemporary kitchen with dining area. Additional features include a family bathroom and a convenient downstairs cloakroom. Outside, there is an enclosed rear garden along with off-street parking. The home also benefits from gas-fired central heating and double glazing and the property presents an excellent opportunity for first-time buyers, buy-to-let investors or purchasers wishing to downsize.
ENTRANCE HALL Solid wood floor.
LIVING ROOM 15' 1" x 11' 8" (4.6m x 3.56m) Feature gas fireplace; solid wood floor.
HALLWAY Solid wood floor.
KICTHEN 11' 7" x 10' 4" (3.53m x 3.15m) Excellent range of high and low level units with drawers and complementary work surfaces; four ring gas hob with electric under oven; extractor hood; integrated fridge / freezer; integrated dishwasher; integrated washing machine; tile floor.
DINING AREA 8' 6" x 6' 4" (2.59m x 1.93m) Tile floor; access to rear garden.
FIRST FLOOR LANDNG
BEDROOM 1 11' 8" x 8' 8" (3.56m x 2.64m)
BEDROOM 2 10' 3" x 8' 5" (3.12m x 2.57m)
BEDROOM 3 8' 2" x 6' 5" (2.49m x 1.96m)
BATHROOM White suite comprising a panelled bath with thermostatic shower over; dual flush WC; free-standing wash hand basin; tile floor.
CLOAK ROOM White suite comprising a dual flush WC and pedestal wash hand basin; tile floor.
OUTSIDE Enclosed rear garden laid in lawn with patio area and alleyway access; residents off-street parking to front.
Virtual Tour
Broadband Speed Availability
Potential Speeds for 24 Abbington Manor
Max Download
1800
Mbps
Max Upload
220
MbpsThe speeds indicated represent the maximum estimated fixed-line speeds as predicted by Ofcom. Please note that these are estimates, and actual service availability and speeds may differ.
Property Location
Mortgage Calculator
Contact Agent
Contact Fetherstons (North Down)
Request More Information
Requesting Info about...
24 Abbington Manor, Bangor, BT19 1ZQ
By registering your interest, you acknowledge our Privacy Policy
By registering your interest, you acknowledge our Privacy Policy