Contact Agent
Contact Templeton Robinson (North Down)
3 Bed Semi-Detached House
46 Lyndhurst Avenue
Bangor, BT19 1AY
offers over
£249,950
Key Features & Description
Extended Semi Detached Villa
Well Presented Throughout
Through Lounge with Study Area
Solid Oak Kitchen open plan to Dining Area
Three Well Proportioned Bedrooms
White Bathroom Suite
Double Glazed Windows / Oil Fired Central Heating
Attached Garage with Utility Area
Additional Driveway Parking
Front & Fully Enclosed Level Rear Garden offering complete Privacy
Popular & Sought After Bangor West Location
Description
Located in the ever-popular Lyndhurst Avenue, this attractive extended semi-detached property offers spacious and flexible accommodation ideal for families, first-time buyers, or those seeking a comfortable home in a convenient residential setting.
The property is well presented throughout and benefits from a thoughtfully designed rear extension, providing additional dining space that enhances everyday family life. The ground floor comprises a welcoming entrance hall, a bright and comfortable lounge, and an open, extended kitchen/dining area that serves as the heart of the homeâperfect for both entertaining and modern living.
Externally, the home benefits from gardens to the front and rear, with the rear garden offering complete privacy which an excellent outdoor space for relaxation or entertaining. Lyndhurst Avenue is conveniently located close to local schools - pathway to Rathmore literally across the road, shops, transport links -Bangor West railway halt is approx 6 mins walk, and Bangor town centre, making this an excellent opportunity for those seeking a home that combines space, comfort, and location.
Early viewing is highly recommended to fully appreciate all that this extended family home has to offer.
Located in the ever-popular Lyndhurst Avenue, this attractive extended semi-detached property offers spacious and flexible accommodation ideal for families, first-time buyers, or those seeking a comfortable home in a convenient residential setting.
The property is well presented throughout and benefits from a thoughtfully designed rear extension, providing additional dining space that enhances everyday family life. The ground floor comprises a welcoming entrance hall, a bright and comfortable lounge, and an open, extended kitchen/dining area that serves as the heart of the homeâperfect for both entertaining and modern living.
Externally, the home benefits from gardens to the front and rear, with the rear garden offering complete privacy which an excellent outdoor space for relaxation or entertaining. Lyndhurst Avenue is conveniently located close to local schools - pathway to Rathmore literally across the road, shops, transport links -Bangor West railway halt is approx 6 mins walk, and Bangor town centre, making this an excellent opportunity for those seeking a home that combines space, comfort, and location.
Early viewing is highly recommended to fully appreciate all that this extended family home has to offer.
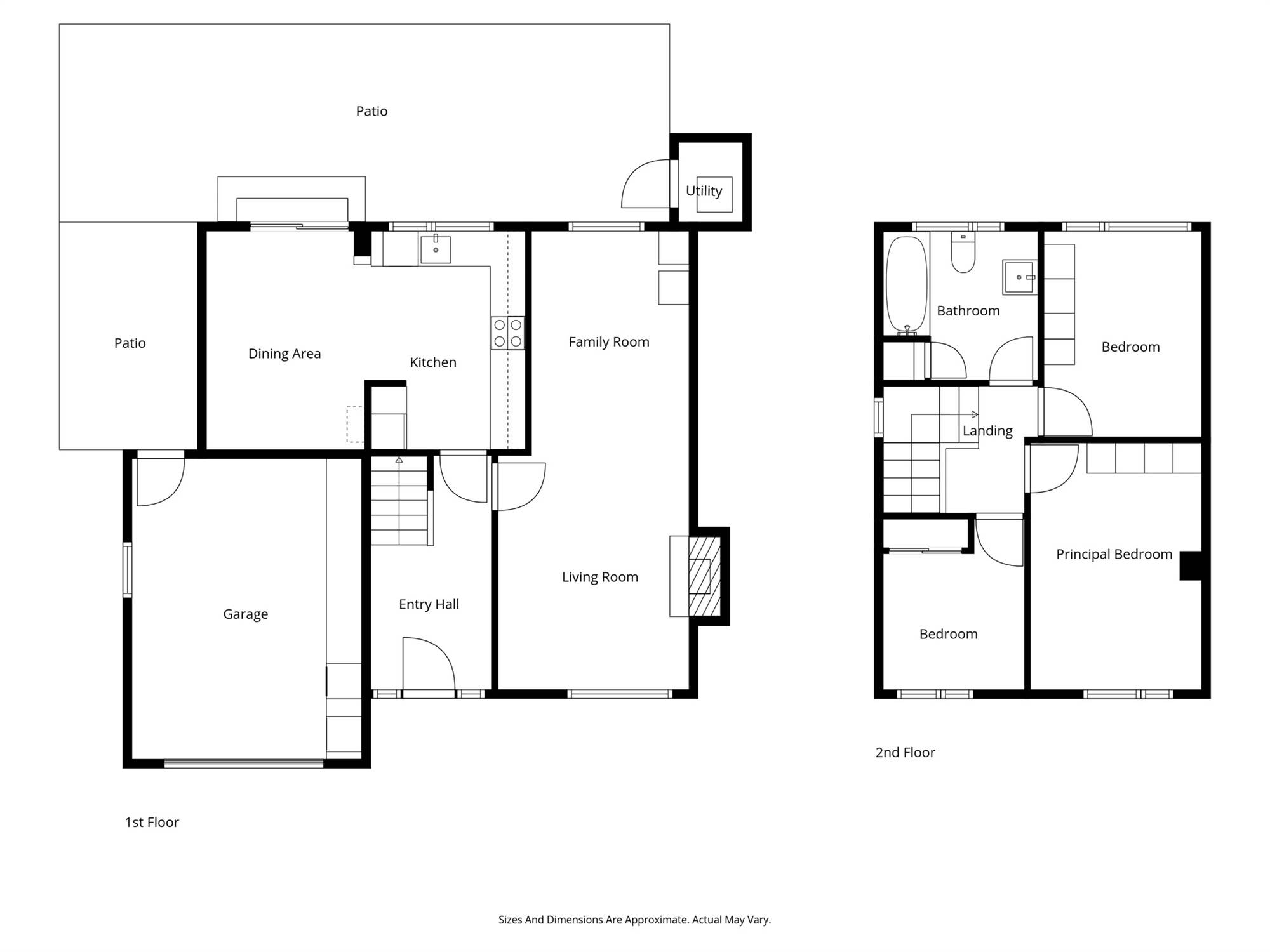
Rooms
uPVC double glazed front door to . . .
ENTRANCE HALL:
Ceramic tiled wood effect flooring.
THROUGH LOUNGE WITH STUDY AREA: 25' 0" X 11' 0" (7.62m X 3.35m)
Ceramic tiled wood effect flooring, hole in the wall fireplace with sleeper mantle, exposed brick inset and cast iron Heta wood burning stove.
KITCHEN: 10' 10" X 8' 0" (3.30m X 2.44m)
Oak kitchen with excellent range of high and low level units, quartz work surfaces, Belfast sink unit with mixer tap, Beko integrated dishwasher, Belling induction hob, Beko oven, stainless steel extractor fan and canopy, space for fridge, ceramic tiled wood effect flooring, LED lighting. Open plan to . . .
DINING ROOM: 12' 0" X 8' 0" (3.66m X 2.44m)
Ceramic tiled wood effect flooring, sliding doors to patio/garden.
LANDING:
Access to roofspace with light via Slingsby type ladder.
BEDROOM (1): 14' 0" X 9' 0" (4.27m X 2.74m)
BEDROOM (2): 11' 0" X 9' 0" (3.35m X 2.74m)
BEDROOM (3): 9' 10" X 7' 10" (3.00m X 2.39m)
Built-in wardrobe.
BATHROOM:
White suite comprising panelled bath with mixer tap, Mira power shower unit, shower screen, low flush wc, pedestal wash hand basin, heated towel rail, fully tiled walls, hotpress with copper cylinder and built-in shelving.
Front garden laid in lawn. Brick paved driveway with parking for two cars.
ATTACHED GARAGE 17' 0" X 12' 0" (5.18m X 3.66m)
Up and over door, light and power, plumbed for washing machine and space for tumble dryer.
Paved rear patio area leading to fully enclosed and private rear garden laid in lawn. Boiler house with Worcester oil fired boiler, outside tap.
Broadband Speed Availability
Potential Speeds for 46 Lyndhurst Avenue
Max Download
1800
Mbps
Max Upload
220
MbpsThe speeds indicated represent the maximum estimated fixed-line speeds as predicted by Ofcom. Please note that these are estimates, and actual service availability and speeds may differ.
Property Location
Mortgage Calculator
Directions
From mini roundabout at junction with Crawfordsburn Road turn right into Springhill Road and 1st right into Innisfayle Drive. Take left into Rutherglen Park and left again into Lyndhurst Avenue.
Contact Agent
Contact Templeton Robinson (North Down)
Request More Information
Requesting Info about...
46 Lyndhurst Avenue, Bangor, BT19 1AY
By registering your interest, you acknowledge our Privacy Policy
By registering your interest, you acknowledge our Privacy Policy