Contact Agent
Contact Templeton Robinson (North Down)
Detached House
12 Hampton Mews
Bangor, BT19 7GJ
offers over
£249,950
Key Features & Description
Attractive Detached Villa
Excellent Standard of Decor Throughout
Living Room open plan to Dining Room
Solid Wood Kitchen
Three Well Proportioned Bedrooms
Luxury White Bathroom Suite
Double Glazed Windows / Gas Heating
Detached Garage with Additional Driveway Parking
Gardens in Lawns, Secluded Patio Area etc
Popular & Convenient Location
Description
Nestled within a peaceful cul-de-sac in the highly sought-after Hampton Mews development, this attractive three-bedroom detached home offers an ideal opportunity for families and professionals alike seeking comfort, privacy and convenience in Bangor.
The property enjoys a welcoming entrance hall leading to a bright and spacious living room with dining area, perfect for relaxing or entertaining guests. A solid wood kitchen with direct access over the private rear garden. Upstairs, the home offers three well-proportioned bedrooms, including a generous principal bedroom, alongside a modern family bathroom. Each room benefits from good natural light, creating a warm and inviting atmosphere throughout.
Externally, the property features a driveway providing off-street parking and a detached garage. Hampton Mews is a quiet residential setting while remaining conveniently close to local schools, shops, Bangor town centre, and excellent transport links to Belfast and beyond.
Nestled within a peaceful cul-de-sac in the highly sought-after Hampton Mews development, this attractive three-bedroom detached home offers an ideal opportunity for families and professionals alike seeking comfort, privacy and convenience in Bangor.
The property enjoys a welcoming entrance hall leading to a bright and spacious living room with dining area, perfect for relaxing or entertaining guests. A solid wood kitchen with direct access over the private rear garden. Upstairs, the home offers three well-proportioned bedrooms, including a generous principal bedroom, alongside a modern family bathroom. Each room benefits from good natural light, creating a warm and inviting atmosphere throughout.
Externally, the property features a driveway providing off-street parking and a detached garage. Hampton Mews is a quiet residential setting while remaining conveniently close to local schools, shops, Bangor town centre, and excellent transport links to Belfast and beyond.
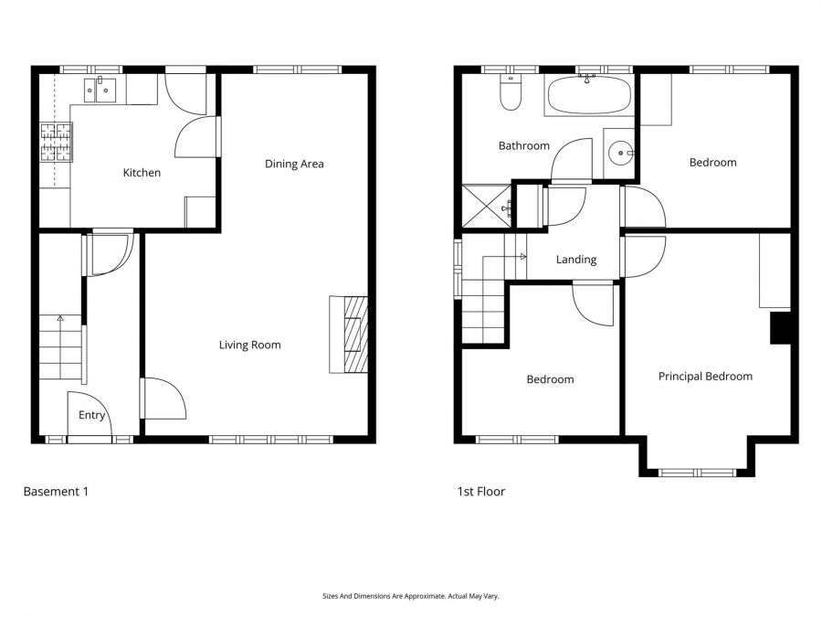
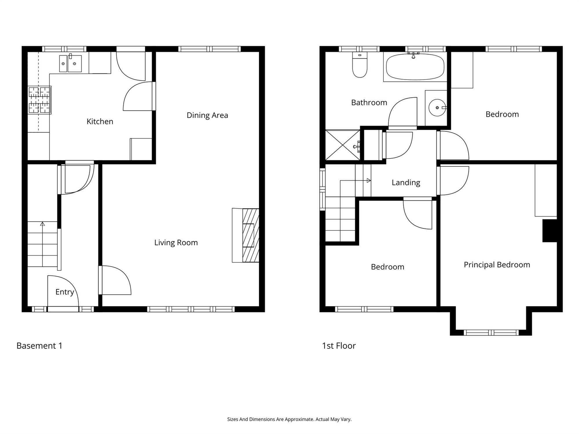
Rooms
Upvc double glazed front door to...
ENTRANCE HALL:
Laminate wood flooring.
LIVING ROOM: 14' 0" X 12' 11" (4.27m X 3.94m)
Laminate wood flooring, feature fireplace with cast iron inset and hearth, open fire.
DINING ROOM: 9' 0" X 9' 11" (2.74m X 3.02m)
Door to..
KITCHEN: 11' 0" X 9' 0" (3.35m X 2.74m)
Solid wood painted kitchen, excellent range of high and low level units, 1.5 stainless steel sink unit, plumbed for dish washer, 4 ring hob, oven, larder, space for fridge/freezer, vinyl flooring with ceramic tiled floor below, part tiled walls, upvc door to patio and garden.
HALLWAY:
Cloaks understairs.
LANDING:
Access to roofspace (insulated). Linen cupboard. Logic combi gas fired boiler.
BEDROOM (1): 15' 0" X 15' 0" (4.57m X 4.57m)
BEDROOM (2): 10' 0" X 9' 11" (3.05m X 3.02m)
BEDROOM (3): 10' 0" X 9' 0" (3.05m X 2.74m)
Built in bed.
BATHROOM:
Luxury white bathroom suite comprising oval bath with mixter tap, low flush WC, washstand, circular wash hand basin, mosaic tiling and ceramic tiled floor, shower cubicle with thermostatic shower valve.
FRONT:
Tarmac driveway, laid in lawns and enclosed rear garden.
REAR:
Further sunken patio area which enjoys the sun throughout the day, Storage area for wood.
Broadband Speed Availability
Potential Speeds for 12 Hampton Mews
Max Download
1800
Mbps
Max Upload
220
MbpsThe speeds indicated represent the maximum estimated fixed-line speeds as predicted by Ofcom. Please note that these are estimates, and actual service availability and speeds may differ.
Property Location
Mortgage Calculator
Directions
From Bangor along Gransha Road, straight through roundabout, at traffic lights into Balloo Road, second left into Primacy Road and first left into Hampton Park, Hampton Mews is on the left hand side.
Contact Agent
Contact Templeton Robinson (North Down)
Request More Information
Requesting Info about...