Contact Agent

Contact Templeton Robinson (North Down)

Contact Templeton Robinson (North Down)

3 Bed Semi-Detached House

1 Cedar Mount

Bangor, BT20 3DL

offers around £275,000
  • Status For Sale
  • Property Type Semi-Detached
  • Bedrooms 3
  • Receptions 1
  • Heating Gas
  • EPC Rating C75 / C80 -
  • Stamp Duty
    Higher amount applies when purchasing as buy to let or as an additional property
    £3,750 / £17,500*
  • Typical Mortgage
    Click price to use our mortgage calculator
EPC Rating

Key Features & Description

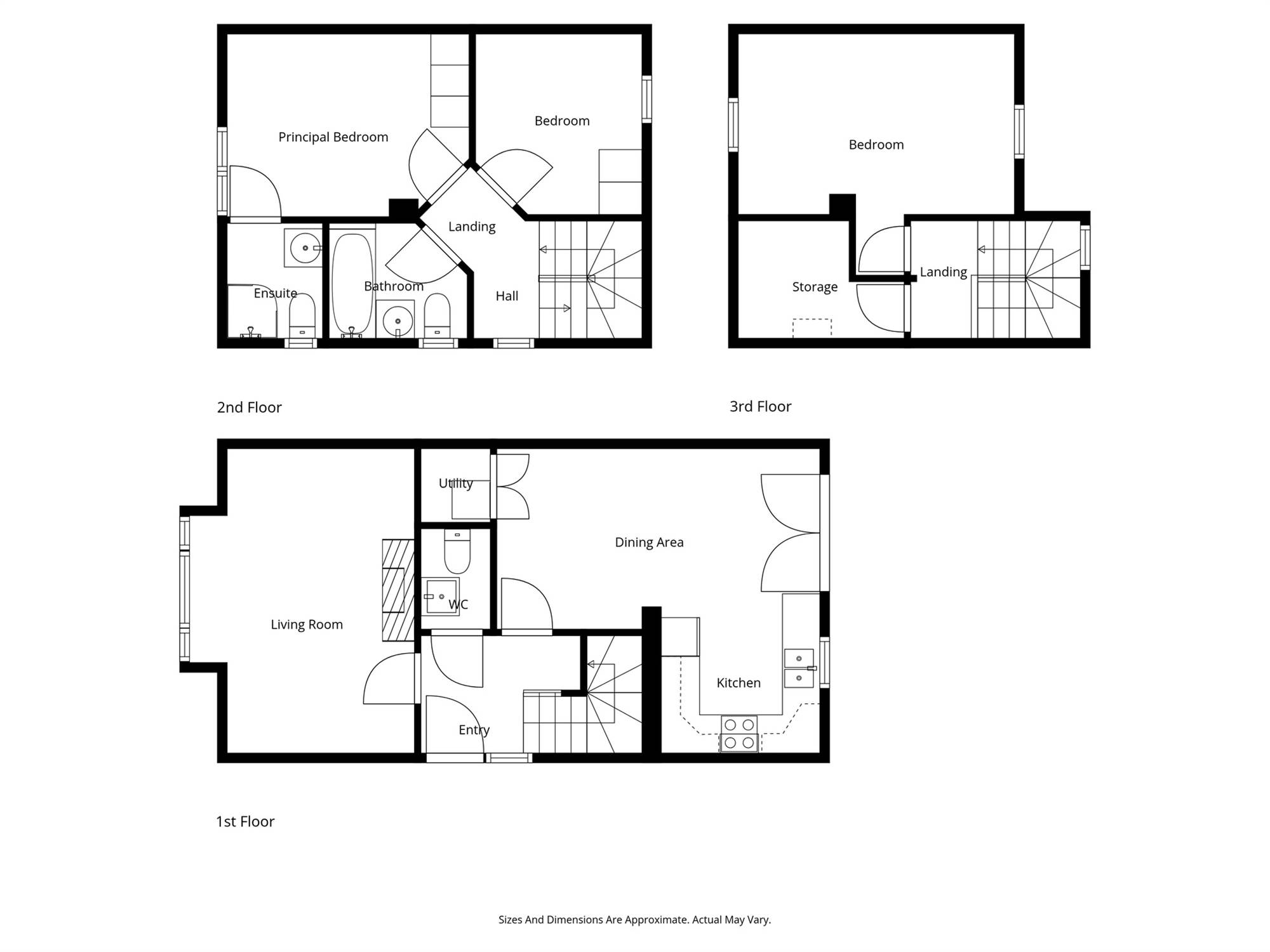
Well Presented Semi Detached Villa over Three Floors
Low Maintenance Living Environment
Lounge with Feature Fireplace and Open Fire
Contemporary Kitchen open plan to Casual Dining & Living Area
Utility Cupboard
Ground Floor Cloaks with Low Flush Suite
Two First Floor Bedrooms, Principal Bedroom with Ensuite Shower Room
White Bathroom Suite
Further Bedroom on Second Floor
Luggage / Storeroom on Second Floor
Gas Heating / Double Glazed Windows
Driveway Parking for 2 Cars
Enclosed Rear Garden in Lawns, Patio Area etc
Popular & Sought After Bangor West Location
Description
This well-presented three bedroom semi-detached home, built approximately 9 years ago, and ideally suited to first-time buyers, young families, or downsizers.
The property offers modern living throughout, with a bright and spacious layout. The accommodation is well balanced, providing comfortable living spaces alongside well-proportioned bedrooms, principal bedroom with ensuite shower room and separate family bathroom.
Externally, the home enjoys a fully enclosed garden which enjoys a sunny aspect and ideal for those seeking outdoor space without significant upkeep, along with off-street parking. Situated in a popular and convenient residential area, the property is close to local amenities, schools, and transport links.
An excellent opportunity not to be missed therefore early viewing is a must.

Rooms

Composite front door.
ENTRANCE HALL: Laminate wood effect floor.
CLOAKROOM: Pedestal wash hand basin, vanity unit, ceramic tiled floor. Extractor fan.
LOUNGE: 15' 10" X 11' 0" (4.83m X 3.35m) Cast iron fireplace, open fire. Laminate wood effect floor.
KITCHEN / LIVING / DINING: 16' 10" X 15' 10" (5.13m X 4.83m) (L-Shaped). Grey kitchen with excellent range of high, and low-level solid oak work surfaces. Double stainless steel sink unit with mixer tap. Single oven, four ring hob, extractor fan, display shelving, glazed display cabinets. Velux window, LED lights. Enclosed utility area plumbed for washing machine.
CASUAL LIVING AND DINING AREA: Double doors to patio/garden.
BEDROOM (2): 9' 0" X 9' 0" (2.74m X 2.74m) Laminate wood effect floor.
BATHROOM: White bathroom suite comprising panelled bath with mixer tap, shower screen and telephone hand shower, low flush WC, pedestal wash hand basin, part tiled walls, LED lighting, extractor fan, ceramic tiled floor.
PRINCIPAL BEDROOM: 12' 0" X 9' 0" (3.66m X 2.74m) Laminate wood effect floor.
ENSUITE SHOWER ROOM: Fully tiled shower enclosure with thermostatic shower unit, low flush WC, pedestal wash hand basin, heated towel rail, ceramic tiled floor, LED lighting, wall mirror with in-built LED light, shaver socket, extractor fan.
BEDROOM (3): 14' 0" X 9' 0" (4.27m X 2.74m) Laminate wood effect floor. Velux windows, storage into eaves.
LUGGAGE ROOM/STORE: Laminate wooden floor, Viesmann gas fired boiler.
Pebbled front area, tarmac driveway with parking for two cars. Double patio doors open onto fully enclosed paved patio area with steps to garden laid in lawn.

Broadband Speed Availability

Ultrafast

Potential Speeds for 1 Cedar Mount

Max Download
1800
Mbps
Max Upload
220
Mbps
The speeds indicated represent the maximum estimated fixed-line speeds as predicted by Ofcom. Please note that these are estimates, and actual service availability and speeds may differ.

Property Location

Show Map

Mortgage Calculator

Disclaimer: The following calculations act as a guide only, and are based on a typical repayment mortgage model. Financial decisions should not be made based on these calculations and accuracy is not guaranteed. Always seek professional advice before making any financial decisions.

Directions

Travelling along the Bryansburn Road from Bangor, Cedar Mount is on the left-hand side.

Contact Agent

Contact Templeton Robinson (North Down)

Contact Templeton Robinson (North Down)

Request More Information
Requesting Info about...
1 Cedar Mount, Bangor, BT20 3DL 1 Cedar Mount, Bangor, BT20 3DL

By registering your interest, you acknowledge our Privacy Policy
Ask Holmes
Ask Holmes
Let's find your next home

Are you sure you want to reset the chat?

Checking API...