Contact Agent
Contact Templeton Robinson (North Down)
3 Bed Semi-Detached House
28 Crawfords Farm Grove
Bangor, BT19 1PL
offers over
£315,000
Key Features & Description
Contemporary Semi Detached Home
Stylish Modern Kitchen with Dining Area
Bright and Spacious Lounge with Cast Iron Wood Burning Stove
Ground Floor Cloaks with Low Flush Suite / Utility Cupboard
Three Well Proportioned Bedrooms, Principal Bedroom with Ensuite Shower Room
Modern Family Bathroom
Private Rear Garden Ideal for Entertaining
Double Glazed Windows, Gas Heating (underfloor heating to ground floor)
Driveway Parking
Popular Residential Location
Close to Local Amenities, Schools and Transport Links
Description
This is a beautifully presented contemporary three-bedroom semi detached home, offering stylish living spaces and a modern finish throughout.
The property opens into a bright and welcoming interior, with a spacious living room ideal for both relaxing and entertaining. To the rear, a sleek modern kitchen and dining area provides an excellent hub of the home with direct access to the garden, perfect for everyday family life!
Upstairs, the home offers three well-proportioned bedrooms, including a generous principal bedroom with ensuite shower room, along with a modern family bathroom finished to a high standard. Neutral décor throughout allows buyers to move straight in and personalise with ease.
Externally, the property benefits from a private rear garden, ideal for outdoor dining or play, while off-street parking adds further convenience. Situated within a popular residential area, Crawfords Farm Grove is well placed for local amenities, schools and transport links, making this an excellent choice for families, first-time buyers or those looking to upsize.
This is a beautifully presented contemporary three-bedroom semi detached home, offering stylish living spaces and a modern finish throughout.
The property opens into a bright and welcoming interior, with a spacious living room ideal for both relaxing and entertaining. To the rear, a sleek modern kitchen and dining area provides an excellent hub of the home with direct access to the garden, perfect for everyday family life!
Upstairs, the home offers three well-proportioned bedrooms, including a generous principal bedroom with ensuite shower room, along with a modern family bathroom finished to a high standard. Neutral décor throughout allows buyers to move straight in and personalise with ease.
Externally, the property benefits from a private rear garden, ideal for outdoor dining or play, while off-street parking adds further convenience. Situated within a popular residential area, Crawfords Farm Grove is well placed for local amenities, schools and transport links, making this an excellent choice for families, first-time buyers or those looking to upsize.
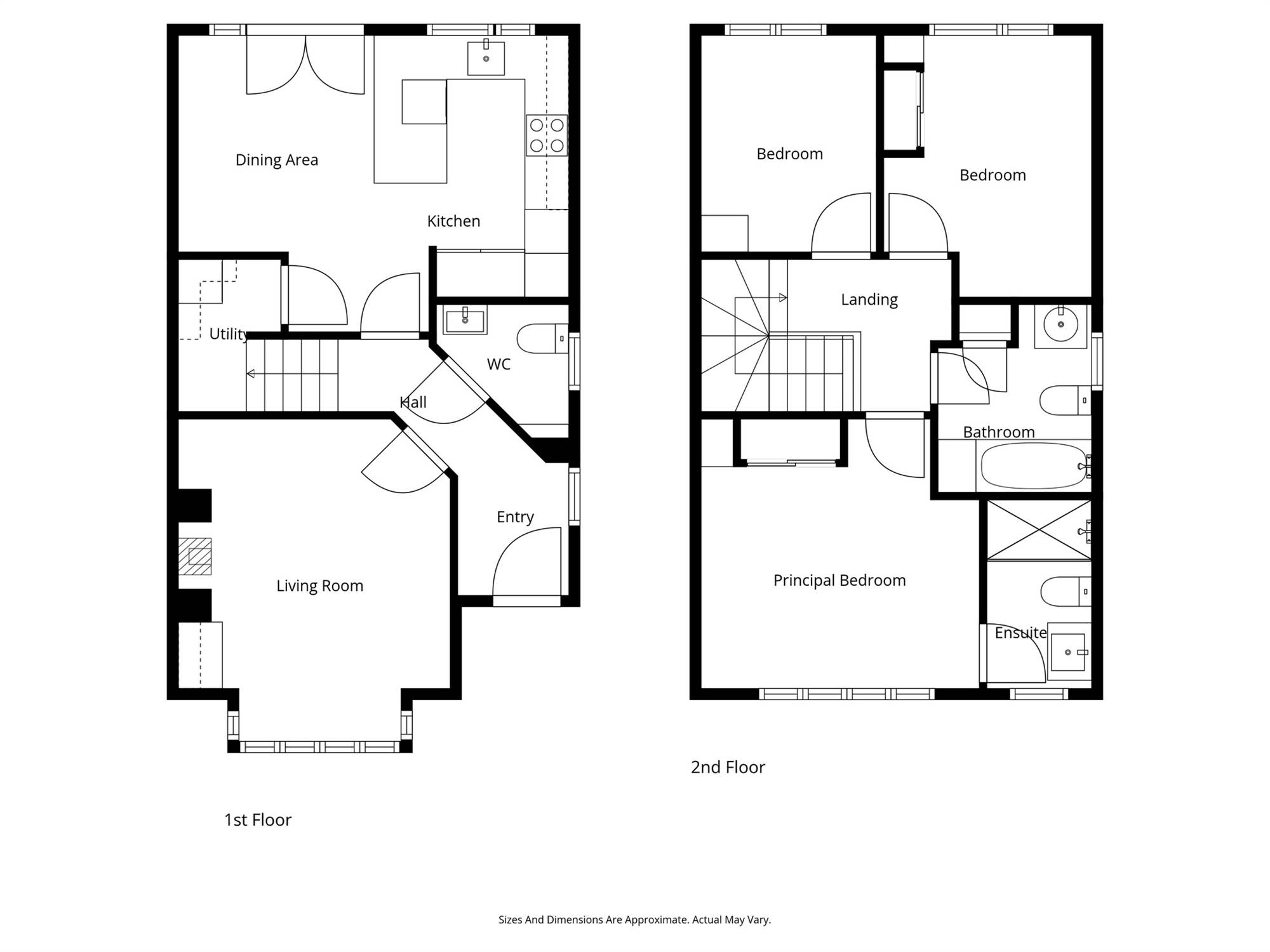
Rooms
COVERED ENTRANCE:
Front door leading to . . .
ENTRANCE HALL:
Luxury vinyl tiled flooring.
LOUNGE: 14' 0" X 12' 0" (4.27m X 3.66m)
(into bay). Cast iron wood burning stove, display shelving with cupboard, wired for projector, LED lights.
CLOAKROOM:
Wash hand basin, low flush wc, Worcester gas fired boiler, extractor fan, LED lighting, luxury vinyl tiled flooring.
KITCHEN / DINER: 17' 0" X 13' 0" (5.18m X 3.96m)
Graphite kitchen with excellent range of high and low level units, quartz work surfaces, stainless steel sink unit with mixer tap, Quooker tap, Bora hob with built-in extractor fan, larder cupboard with fridge freezer, Normende microwave and oven, built-in store with dishwasher, saucepan drawers, wine fridge, wall lights, luxury vinyl tiled flooring, underfloor heating, LED lighting, bench seating with storage below, double doors to outside.
CLOAKS CUPBOARD:
Plumbed for washing machine, further storage.
LANDING:
Access to floored roofspace via Slingsby type ladder , linen cupboard with built-in shelves and rail.
PRINCIPAL BEDROOM: 12' 0" X 12' 0" (3.66m X 3.66m)
Laminate wood effect floor, built-in wardrobes with mirror fronted sliding doors.
ENSUITE SHOWER ROOM:
Walk-in double shower cubicle with thermostatic shower unit and rain shower head, low flush wc, contemporary wash stand, ceramic tiled floor, LED lighting, extractor fan.
BEDROOM (2): 11' 0" X 9' 0" (3.35m X 2.74m)
Laminate wood effect floor, LED lighting.
BEDROOM (3): 10' 0" X 7' 10" (3.05m X 2.39m)
Laminate wood effect floor.
BATHROOM:
White suite comprising shower bath with mixer tap and thermostatic shower unit and shower screen, heated towel rail, low flush wc, wash stand with circular sink unit.
Enclosed rear garden laid in lawn, paved patio area. Front garden laid in lawn, driveway with parking for two cars.
Broadband Speed Availability
Potential Speeds for 28 Crawfords Farm Grove
Max Download
1800
Mbps
Max Upload
220
MbpsThe speeds indicated represent the maximum estimated fixed-line speeds as predicted by Ofcom. Please note that these are estimates, and actual service availability and speeds may differ.
Property Location
Mortgage Calculator
Directions
From Bangor travelling along the Crawfordsburn Road turn left into Wandsworth Road, second right into Rosevale Avenue which leads you into Crawfords Farm Grove.
Contact Agent
Contact Templeton Robinson (North Down)
Request More Information
Requesting Info about...
28 Crawfords Farm Grove, Bangor, BT19 1PL
By registering your interest, you acknowledge our Privacy Policy
By registering your interest, you acknowledge our Privacy Policy