Contact Agent

Contact Templeton Robinson (North Down)
Site
Site @ 25-37 Gray's Hill
Bangor, BT20 3BB
offers around
£320,000
- Status For Sale
- Property Type Site
-
Stamp Duty
Higher amount applies when purchasing as buy to let or as an additional property£6,000 / £22,000*
Description
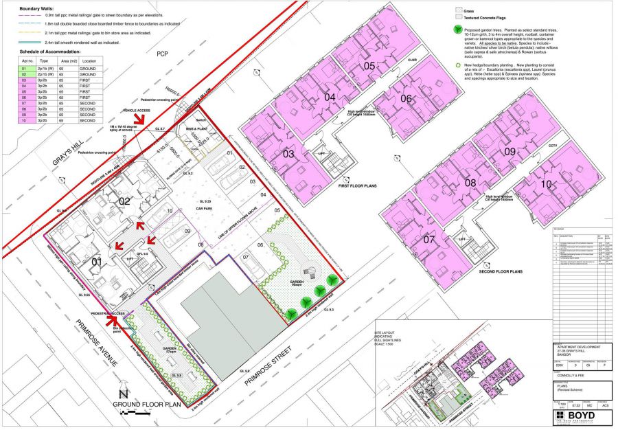
Situated in the heart of Bangor city centre, this development site benefits from Full Planning Permission for 10 apartments (Ref: LA06/2021/1495/F).
This is a rare opportunity for developers or investors to acquire a site at an exciting time, as the long-awaited redevelopment of the nearby seafront has now commenced.
The approved plans allow for a three-storey building comprising 10 apartments, each extending to approximately 65 sq.m, with associated car parking to the rear. The site occupies a prominent corner position at the junction of Gray"s Hill and Primrose Avenue, and is bounded to the rear by Primrose Street.
This is a rare opportunity for developers or investors to acquire a site at an exciting time, as the long-awaited redevelopment of the nearby seafront has now commenced.
The approved plans allow for a three-storey building comprising 10 apartments, each extending to approximately 65 sq.m, with associated car parking to the rear. The site occupies a prominent corner position at the junction of Gray"s Hill and Primrose Avenue, and is bounded to the rear by Primrose Street.
Property Location

Mortgage Calculator
Directions
Travelling from Holywood, turn left off Belfast Road onto Springhill Road. At the roundabout, turn right onto Crawfordsburn Rd. Continue straight on Bryansburn Road and follow to end. At roundabout, continue straight onto Gray's Hill. Site is located on right hand side at junction for Somerset Ave and Primrose Ave.
Contact Agent

Contact Templeton Robinson (North Down)
Request More Information
Requesting Info about...
Site @ 25-37 Grays Hill, Bangor, BT20 3BB
By registering your interest, you acknowledge our Privacy Policy

By registering your interest, you acknowledge our Privacy Policy