Contact Agent
Contact Ulster Property Sales (UPS) Donaghadee
Commercial
101 Springwell Road
Bangor, BT19 6LX
Price on Application
- Status For Rent
- Property Type Commercial
Key Features & Description
Spacious Commercial Unit With Various Office Space
Well Known Location And Reputation
Parking Surrounding Unit
Multiple Points Of Access Into The Unit
Attracts A Wide Variety Of Potential Clients
Landlord Will Accept Responsibility For Paying The Council Rates
Description
Located in the desirable area of Springwell Road, Bangor, this impressive commercial unit presents a unique opportunity for those seeking a prominent location for their business. Renowned for its excellent reputation, this spacious property boasts multiple access points, ensuring ease of entry for both customers and deliveries alike.
The generous size of the unit allows for a variety of potential uses, making it an ideal choice for entrepreneurs looking to establish or expand their ventures. There are two separate office spaces on both floors within the premises. Additionally, the property benefits from ample allocated parking, providing convenience for both staff and visitors.
With its strategic location and well-established standing in the community, this commercial unit is poised to attract attention and drive success. Whether you are starting a new business or relocating an existing one, this property offers the perfect blend of space, accessibility, and reputation. Do not miss the chance to make this prime location your own.
Located in the desirable area of Springwell Road, Bangor, this impressive commercial unit presents a unique opportunity for those seeking a prominent location for their business. Renowned for its excellent reputation, this spacious property boasts multiple access points, ensuring ease of entry for both customers and deliveries alike.
The generous size of the unit allows for a variety of potential uses, making it an ideal choice for entrepreneurs looking to establish or expand their ventures. There are two separate office spaces on both floors within the premises. Additionally, the property benefits from ample allocated parking, providing convenience for both staff and visitors.
With its strategic location and well-established standing in the community, this commercial unit is poised to attract attention and drive success. Whether you are starting a new business or relocating an existing one, this property offers the perfect blend of space, accessibility, and reputation. Do not miss the chance to make this prime location your own.
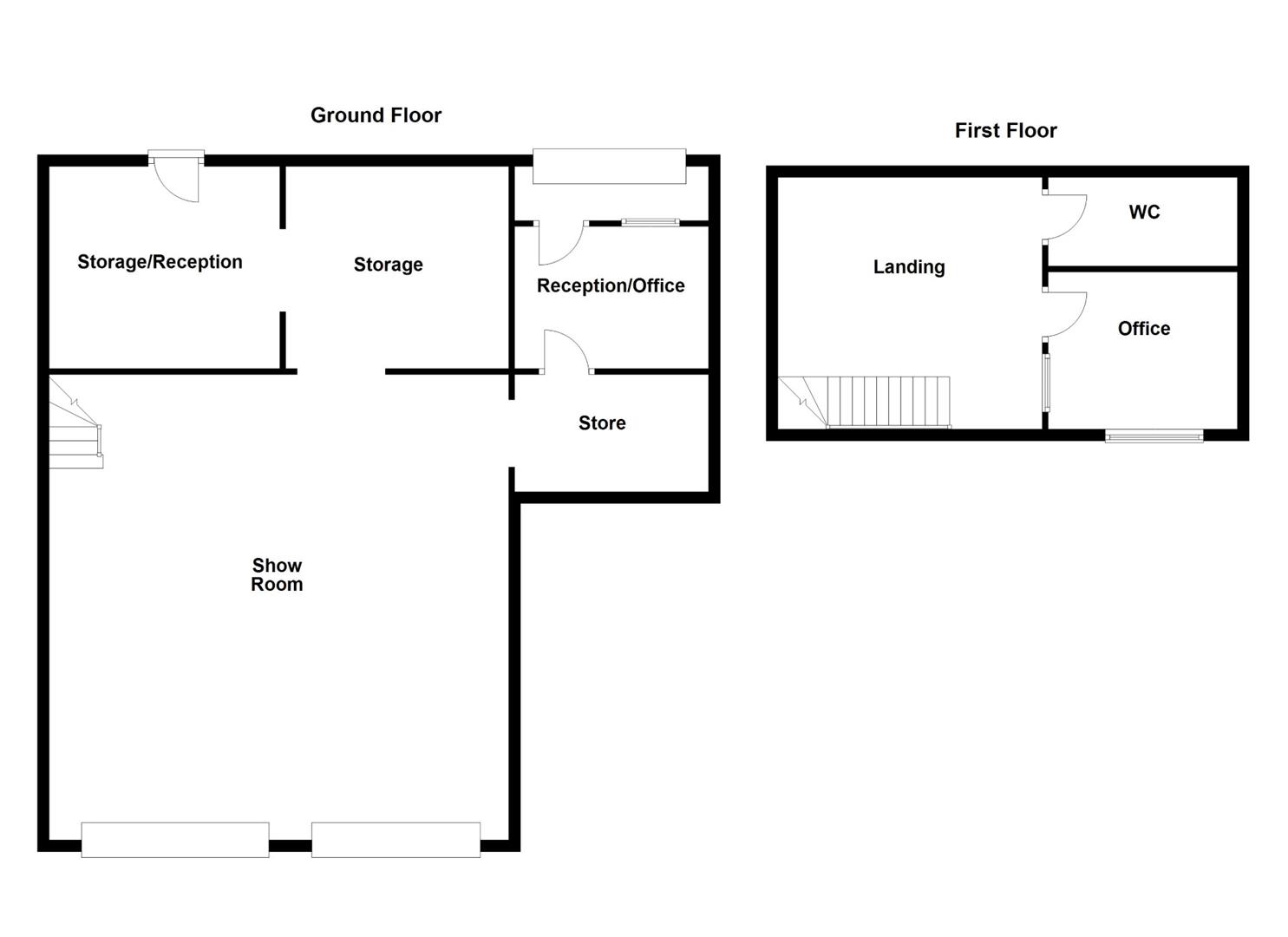
Rooms
Accommodation Comprises
Main Office Space 25'10" X 26'2" (7.89m X 7.99m)
Two electric roller doors.
Store 12'7" X 11'2" (3.86m X 3.41m)
Reception Space 12'10" X 14'4" (3.92m X 4.38m)
Downstairs Office 11'11" X 11'4" (3.64m X 3.47m)
First Floor
Landing
W / C
White suite comprising, low flush w/c, vanity unit with mixer tap and storage.
Office 8'6" X 10'7" (2.60m X 3.25m)
Broadband Speed Availability
Potential Speeds for 101 Springwell Road
Max Download
1800
Mbps
Max Upload
220
MbpsThe speeds indicated represent the maximum estimated fixed-line speeds as predicted by Ofcom. Please note that these are estimates, and actual service availability and speeds may differ.
Property Location
Contact Agent
Contact Ulster Property Sales (UPS) Donaghadee
Request More Information
Requesting Info about...
101 Springwell Road, Bangor, BT19 6LX
By registering your interest, you acknowledge our Privacy Policy
By registering your interest, you acknowledge our Privacy Policy