Contact Agent
Contact John Minnis Estate Agents (Bangor)
5 Bed Detached House
156 Groomsport Road
Ballyholme, Bangor, BT20 5PF
offers around
£629,950
Key Features & Description
Exceptional Detached Family Home
Picturesque Sea Views
Bright, Spacious and Flexible Accommodation
Conservatory with uPVC Double Glazed French Doors to Outside
Large Open Plan Kitchen
Separate Utility Room
Five Well Proportioned Double Bedrooms
Guest Bedroom with En Suite Shower Room
That All Important Home Office
Bathroom with Four Piece Suite
Additional Downstairs WC
Phoenix Gas Heating
ouPVC Double Glazed Windows
Mature Garden in Lawns
Attractive Brick Paviour Sun Terrace
Driveway to the Rear Accessed Off Ashley Gardens
Detached Garage to the Rear
In Close Proximity to Many Amenities
Early Viewing Essential
Description
Located in the heart of the prestigious Ballyholme area of Bangor, this exceptional detached family home offers stunning sea views and convenient access to a wide range of amenities, including Ballyholme beach and village, top schools, yacht clubs, shops, cafes, restaurants, and Bangor Golf Club. Spanning approximately 3,000 sq ft, the property provides bright, spacious, and flexible accommodation across three levels, ideal for a variety of family needs.
The ground floor features a welcoming living room with a carved mahogany fireplace, gas coal-effect fire, ceiling rose, and cornicing, open-plan to a dining area with similar finishes and engineered wooden flooring. From here, French doors lead to a bright conservatory with access to the garden. The large kitchen is open-plan to a casual dining and family space, boasting quartz worktops, integrated appliances, and an open fireplace.
Upstairs on the first floor are three double bedrooms, including a primary suite with an en suite shower room, a study or office, and a main bathroom with a four-piece suite. The top floor offers two additional double bedrooms, both with sea views, one of which has an en suite shower room.
Externally, the home enjoys beautifully maintained gardens with lawns, hedging, shrubs, a brick-paved sun terrace, and a barbecue area. Rear access via Ashley Gardens leads to a driveway and detached garage. Additional benefits include Phoenix Gas heating, double glazing, a downstairs WC, and a utility room.
This rare opportunity in a highly sought-after location is expected to generate significant interest. Early viewing is strongly recommended
Located in the heart of the prestigious Ballyholme area of Bangor, this exceptional detached family home offers stunning sea views and convenient access to a wide range of amenities, including Ballyholme beach and village, top schools, yacht clubs, shops, cafes, restaurants, and Bangor Golf Club. Spanning approximately 3,000 sq ft, the property provides bright, spacious, and flexible accommodation across three levels, ideal for a variety of family needs.
The ground floor features a welcoming living room with a carved mahogany fireplace, gas coal-effect fire, ceiling rose, and cornicing, open-plan to a dining area with similar finishes and engineered wooden flooring. From here, French doors lead to a bright conservatory with access to the garden. The large kitchen is open-plan to a casual dining and family space, boasting quartz worktops, integrated appliances, and an open fireplace.
Upstairs on the first floor are three double bedrooms, including a primary suite with an en suite shower room, a study or office, and a main bathroom with a four-piece suite. The top floor offers two additional double bedrooms, both with sea views, one of which has an en suite shower room.
Externally, the home enjoys beautifully maintained gardens with lawns, hedging, shrubs, a brick-paved sun terrace, and a barbecue area. Rear access via Ashley Gardens leads to a driveway and detached garage. Additional benefits include Phoenix Gas heating, double glazing, a downstairs WC, and a utility room.
This rare opportunity in a highly sought-after location is expected to generate significant interest. Early viewing is strongly recommended
Rooms
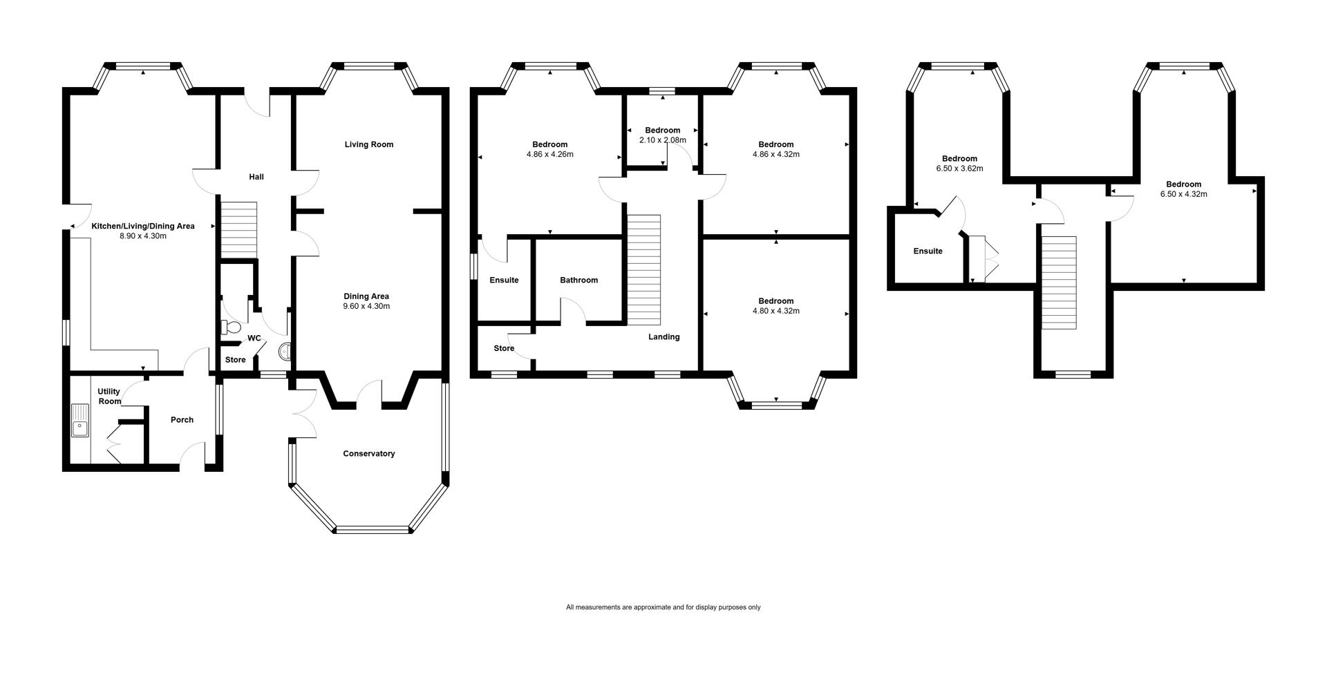
GROUND FLOOR
uPVC double glazed front door, uPVC double glazed side panels and over panel to reception hall.
Reception Hall
Part tiled floor, part engineered wooden floor, part wood panelled walls, cornice ceiling, plate display, shelving.
Downstairs WC
Two piece white suite comprising low flush WC, pedestal wash hand basin, fully tiled floor, part tongue and groove walls, storage under stairs, additional storage cupboard.
Living Room Open Plan to Dining Area 13´11" X 15´10" (3.96m X 4.57m)
into bay at widest points Living room with attractive carved mahogany fireplace surround, granite inset and hearth, gas coal effect fire, dado rail, cornice ceiling, ceiling rose, bay window.
Dining Area 13´11" X 16´ (3.96m X 4.88m)
into bay at widest points Archway from living room, attractive carved mahogany fireplace surround, granite inset and hearth, gas coal effect fire, ceiling rose, picture rail, engineered wooden floors throughout
Conservatory 13´9" X 11´8" (3.96m X 3.35m)
at widest points Fully tiled floor, uPVC double glazed French doors to outside.
Kitchen Open Plan to Casual Dining/Family Area 29´1" X 13´11" (8.84m X 3.96m)
at widest points Range of high and low level units, quartz work surface, integrated four ring hob, tiled splashback, extractor fan above, integrated Bosch double oven, integrated fridge freezer, large island unit with additional storage cupboards, quartz work surfaces, one and a half bowl sink unit with mixer tap, matching quartz drainer, breakfast bar, integrated dishwasher, concealed bin storage area, tiled floor in kitchen, part tiled walls, cornice ceiling, dining/family area with attractive wooden fireplace surround, cast iron inset, granite hearth, open fire, cornice ceiling, picture rail, bay window, engineered wooden floor, uPVC double glazed door to outside.
Rear Porch
Fully tiled floor, uPVC double glazed door to outside.
Utility Room
Storage cupboards, granite effect work surfaces, single bowl single drainer stainless steel sink unit, mixer tap, plumbed for washing machine, extractor fan, part tiled walls.
Stairs to First Floor
FIRST FLOOR
Landing
Walk-in shelved airing cupboard, cornice ceiling, picture rail.
Bedroom One 13´11" X 16´10" (3.96m X 4.88m)
into bay at widest points Cornice ceiling, ceiling rose, picture rail, bay window.
En Suite Shower Room
Three piece suite comprising built-in fully tiled shower cubicle, low flush WC, wash hand basin with mixer tap, storage beneath, heated towel rail, fully tiled floor, part tiled walls, extractor fan.
Bedroom Two 13´11" X 16´ (3.96m X 4.88m)
into bay at widest points Cornice ceiling, ceiling rose, bay window.
Bedroom Three 13´11" X 15´10" (3.96m X 4.57m)
into bay at widest points Cornice ceiling, ceiling rose, picture rail, bay window.
Office or Study 6´9" X 6´10" (1.83m X 1.83m)
Cornice ceiling, picture rail.
Bathroom
Four piece suite comprising panelled bath, separate shower cubicle, low flush WC, pedestal wash hand basin with mixer tap, fully tiled floor, part tiled walls, extractor fan.
Stairs to Second Floor
Landing
Bedroom Four 21´4" X 14´ (6.40m X 4.27m)
at widest points Views to Belfast Lough and Antrim coastline, storage in eaves.
Bedroom Five 9´9" X 21´2" (2.74m X 6.40m)
into bay at widest points to include en suite Views to Belfast Lough and Antrim coastline, storage in eaves.
En Suite Shower Room
Three piece suite comprising built-in fully tiled shower cubicle, low flush WC, pedestal wash hand basin, heated towel rail, fully tiled walls, extractor fan.
OUTSIDE
Beautifully presented mature gardens in lawns to front and side with attractive boundary hedgerow plants and shrubs, additional brick paviour sun terrace/barbecue area to side. Access and driveway from Ashley Gardens, tarmac driveway with ample parking for numerous cars leading to detached garage.
Detached Garage 21´5" X 12´ (6.40m X 3.66m)
Up and over door, power and light.
Bangor is a beautiful seaside town located just over 13 miles from Belfast. Bangor offers a wide variety of property with something to suit all.
Bangor Marina is one of the largest in Ireland and attracts plenty of visitors when the sun shows its face. Tourism is a big factor in this part of the world.
Bangor Marina is one of the largest in Ireland and attracts plenty of visitors when the sun shows its face. Tourism is a big factor in this part of the world.
Broadband Speed Availability
Potential Speeds for 156 Groomsport Road
Max Download
1800
Mbps
Max Upload
220
MbpsThe speeds indicated represent the maximum estimated fixed-line speeds as predicted by Ofcom. Please note that these are estimates, and actual service availability and speeds may differ.
Property Location
Mortgage Calculator
Contact Agent
Contact John Minnis Estate Agents (Bangor)
Request More Information
Requesting Info about...
156 Groomsport Road, Ballyholme, Bangor, BT20 5PF
By registering your interest, you acknowledge our Privacy Policy
By registering your interest, you acknowledge our Privacy Policy