Contact Agent

Contact Rodgers & Browne

Contact Rodgers & Browne

5 Bed Semi-Detached House

Cooldara, 77 Princetown Road

Bangor West, BT20 3TD

offers over £899,950
  • Status Sale Agreed
  • Property Type Semi-Detached
  • Bedrooms 5
  • Receptions 4
  • Interior Area c. 3,800 Sqft
  • Heating OFCH
  • EPC Rating E51 / D66 -
  • Stamp Duty
    Higher amount applies when purchasing as buy to let or as an additional property
    £34,998 / £79,995*
  • Typical Mortgage
    Click price to use our mortgage calculator
EPC Rating

Key Features & Description

The facts you need to know...
Stunning example of a Georgian family home dating back to c.1890"s set on an elevated site
Recently extensively renovated throughout to offer a magnificent family home finished to a stunning standard
Merging modern day living with period features still very much in place
Impressive drawing room and dining room each with feature fireplaces, herringbone flooring and views to Bangor Marina and the Irish Sea
First floor family room and additional Study
Luxury kitchen opening to casual dining and sitting areas, feature oil fired cream Aga and modular unit, one piece Quartz top central island and breakfast bar area
Separate preparation kitchen finished with shaker style units, marble worktops, integrated appliances and open shelving
Five bedrooms and two walk-in fully fitted dressing rooms
Luxury fitted bathroom including walk-in shower and claw and ball foot bath
Two further luxury fitted shower rooms
Main bathroom and second floor shower room with underfloor heating
Pressurised oil fired central heating system
South facing enclosed courtyard with sitting areas and a purpose built barbecue and Bocce Court
Sweeping driveway with parking for up to six cars
Detached single garage
Only minutes from the Ulster Walkway, Bangor Marina and the City Centre
Belfast City Airport and Belfast City centre are easily accessible via road or rail
South facing rear garden laid in lawns, patio areas and a Bocce court
Description
The Owner's Perspective...
"We feel privileged to have both lived in and modernised this magnificent property.
Dating back to the 1880s, it was important that the original feel and character was not compromised as we updated the interior and hopefully the result speaks for itself! It is truly a wonderful place to live, always waking up to a stunning view, even on the wet and windy days. Being steps from the shoreline and coastal path is a real treat and while we now have other unexpected adventures ahead of us, we will truly miss this wonderful house"

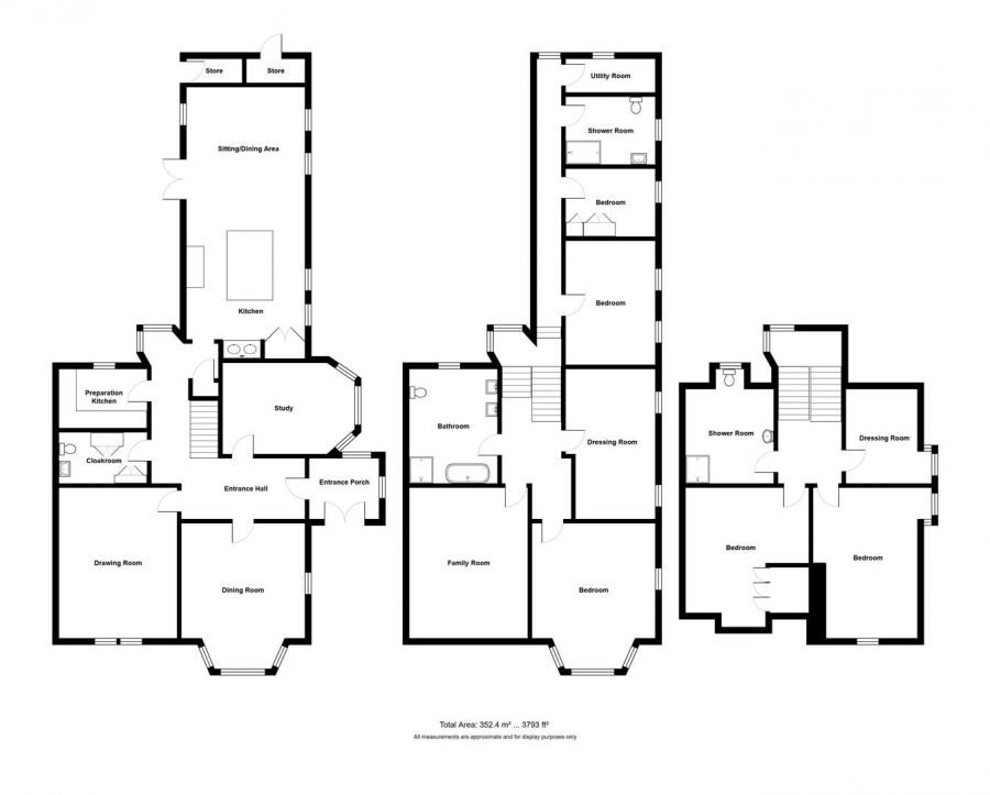
Rooms

Double panelled period doors to:
ENTRANCE PORCH: Terrazzo flooring. Window seat. Glazed door with side light and top lights to:
ENTRANCE HALL: Cornice ceiling, picture rail. Staircase to the first floor with painted spindles, Newell post and handrail. Period style tall radiators.
CLOAKROOM Comprising low flush wc, Duravit inset sink with marble surround and splashback, gold swan neck taps, ceramic tiled floor, cornice ceiling. Period style radiator, built-in cabinets with hanging space and cupboards below.
DRAWING ROOM: 17' 0" X 13' 5" (5.18m X 4.09m) Fireplace with marble surround, cast iron inset, slate hearth, open fire, limed oak herringbone floor, picture rail, cornice ceiling, glazed panelled door to hallway. Views to Bangor Marina, the Irish Sea and Scotland on a good day.
DINING ROOM: 17' 2" X 13' 11" (5.23m X 4.24m) Fireplace with marble surround, cast iron horseshoe inset, slate hearth, wall lighting, limed oak herringbone floor, cornice ceiling, picture rail, feature panelled bay window with views over Bangor Marina, the Irish Sea and Scotland on a good day.
StUDY 15' 5" X 10' 1" (4.70m X 3.07m) Limed oak herringbone floor, picture rail, cornice ceiling, feature panelled bay window, glazed door to entrance hall.
LUXURY KITCHEN OPENING TO CASUAL SITTING AND DINING AREA 27' 5" X 13' 8" (8.36m X 4.17m) Extensive range of high and low level cupboards in shaker style panels, stone worktops, large centre island with one piece Quartz, inset double sink, chrome mixer tap, double Belfast sink, integrated dishwasher, feature cream gas fired Aga and modular unit, tiled splashback and over mantle, space for fridge freezer, marble tiled floor, two feature period radiators, open shelving, built-in seating bench. French doors to enclosed courtyard.
LUXURY FITTED PREPARATION KITCHEN 9' 11" X 6' 9" (3.02m X 2.06m) Hand painted shaker style doors with marble worktops and splashback, open shelving, inset Belfast sink with chrome mixers, integrated AEG oven and AEG induction hob, extractor canopy above, space for a wine fridge and fridge, ceramic tiled floor, cornice ceiling, feature tall wall mounted radiator.
Feature corner window with views into the courtyard. Cornice ceiling, wall lighting.
GUEST BEDROOM 13' 3" X 10' 2" (4.04m X 3.10m) Limed oak herringbone floor, cornice ceiling, picture rail, built-in wardrobes.
BEDROOM (5): 10' 2" X 8' 0" (3.10m X 2.44m) Limed oak herringbone floor. Range of built-in wardrobes with cabinets above.
LUXURY SHOWER ROOM 10' 2" X 8' 1" (3.10m X 2.46m) Fully tiled shower cubicle, thermostatically controlled over drencher and telephone shower, Bays Water London low flush wc, contemporary inset sink set on chrome feet with finials and glass, shelving, mixer taps, tiled splashback, part tiled walls, low flush wc, wall lighting, open shelving.
UTILITY ROOM: Double stacked area for washing machine and tumble dryer plus built-in cabinets.
LANDING: Access to the second floor.
MAIN BEDROOM 17' 2" X 14' 0" (5.23m X 4.27m) Limed oak herringbone floor, cornice ceiling, picture rail. Feature panelled bay window with views over Bangor Marina, the Irish Sea and Scotland on a good day.
DRESSING ROOM: 17' 2" X 10' 8" (5.23m X 3.25m) Beautiful, designed range of open hanging space, open shelving and concealed hanging space. Sitting area and cupboards, limed oak herringbone floor, cornice ceiling, picture rail.
FIRST FLOOR FAMILY ROOM 13' 6" X 17' 1" (4.11m X 5.21m) Limed oak herringbone floor, cornice ceiling, picture rail. Views over Bangor Marina, the Irish Sea and Scotland on a good day.
LUXURY BATHROOM: A wide walk-in shower, thermostatically controlled shower unit with telephone shower and over drencher, tiled shelf. Heritage claw and ball foot cast iron bath with wall mounted mixer tap and telephone shower. Burlington his and hers pedestal wash hand basins with mixer taps, two electrical shaving points, low flush wc, period style heated towel radiator, electric underfloor heating, porcelain tiled floor and part tiled walls, cornice ceiling picture rail, open shelving, wall lighting.
BEDROOM (3): 17' 9" X 11' 7" (5.41m X 3.53m) Limed oak wooden floor. Feature beams views over Bangor Marina, the Irish Sea and Scotland on a good day.
DRESSING ROOM: 11' 1" X 8' 3" (3.38m X 2.51m) Open hanging space and extensive range of built-in cupboards, limed oak wooden floor.
BEDROOM (4): 16' 5" X 12' 6" (5.00m X 3.81m) Limed oak wooden floor. Feature window seat and built-in cupboards.
LUXURY SHOWER ROOM 12' 1" X 8' 7" (3.68m X 2.62m) Fully tiled shower cubicle with slimline shower tray, gold thermostatically controlled shower unit with over drencher and telephone shower, gold heated tall radiator, low flush wc, contemporary rice bowl sink with mixer tap set on a stone worktop with cupboard below and vanity unit with drawers, ceramic tiled floor, fully tiled walls.
South facing enclosed courtyard. Quarry tiled floor. Barbecue and preparation area with granite tops and storage.
Outside toilet with high flush wc.
CONCEALED BIN STORE & PVC OIL TANK Boiler house with oil fired central heating boiler, pressurised water tank and oil tank..
Gardens laid in lawns, raised flowerbeds, flagged patio area surrounded by raise beds and trellising. Bocce court.
Outside tap. Outside mood lighting.
SINGLE DETACHED GARAGE 16' 0" X 10' 4" (4.88m X 3.15m) Double wooden doors.
Gardens to the front laid in lawns, mature borders and sweeping tarmac driveway with parking for up to six cars.

Video

Broadband Speed Availability

Ultrafast

Potential Speeds for 77 Princetown Road

Max Download
1800
Mbps
Max Upload
220
Mbps
The speeds indicated represent the maximum estimated fixed-line speeds as predicted by Ofcom. Please note that these are estimates, and actual service availability and speeds may differ.

Property Location

Show Map

Mortgage Calculator

Disclaimer: The following calculations act as a guide only, and are based on a typical repayment mortgage model. Financial decisions should not be made based on these calculations and accuracy is not guaranteed. Always seek professional advice before making any financial decisions.

Directions

Travelling from Maxwell Road towards Bangor City Centre continue for approximately one mile and the road merges into Princetown Road. No.77 will be on your right.

Contact Agent

Contact Rodgers & Browne

Contact Rodgers & Browne

Request More Information
Requesting Info about...
Cooldara, 77 Princetown Road, Bangor West, BT20 3TD Cooldara, 77 Princetown Road, Bangor West, BT20 3TD

By registering your interest, you acknowledge our Privacy Policy