Flat
Apt 6 , Whitkirk House, 27 Main Street
Ballywalter, BT22 2PQ
offers in region of
£109,950
- Status Sale Agreed
- Property Type Flat
- Heating Electric Heating
-
Stamp Duty
Higher amount applies when purchasing as buy to let or as an additional property£0 / £5,498*
Key Features & Description
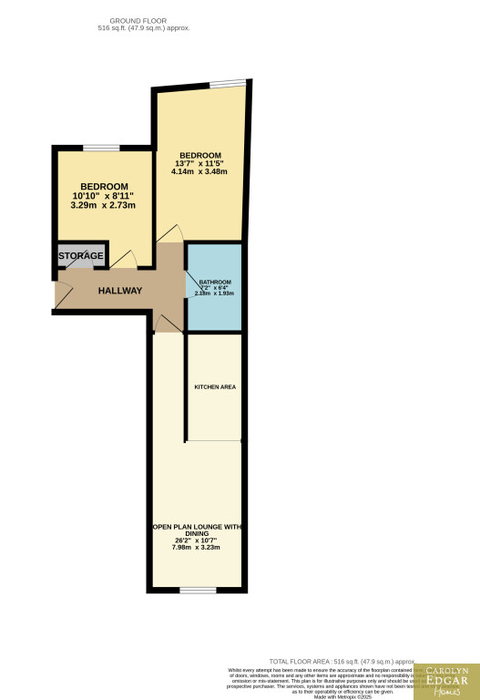
Modern and Spacious Apartment of Approx 62m2
Minutes' Walk to Stunning Local Beaches
Set in a Convenient Location Close to Many Local Amenities
Two Double Bedrooms
Large Open Plan Lounge with Casual Dining and Modern Fitted Kitchen with Built in Appliances
Contemporary Shower Room
Electric Heating
Intercom System
Description
This spacious and bright two-bedroom apartment is set in a prime location only a stones throw from the stunning beaches of Ballywalter and right in the heart of the village, appealing to a wide range of buyers due to its exceptional location and modern and easily maintained interior. Internally the property offers comfortable and airy accommodation throughout and comprises of entrance hallway with plenty of built in storage, large open plan lounge with casual dining area and modern well equipped grey shaker style kitchen, two double bedrooms, one currently used as a second reception room with floor to ceiling windows flooding the room with plenty of natural light and modern shower room. Outside of the property has private gated communal area and access to the beach.
This spacious and bright two-bedroom apartment is set in a prime location only a stones throw from the stunning beaches of Ballywalter and right in the heart of the village, appealing to a wide range of buyers due to its exceptional location and modern and easily maintained interior. Internally the property offers comfortable and airy accommodation throughout and comprises of entrance hallway with plenty of built in storage, large open plan lounge with casual dining area and modern well equipped grey shaker style kitchen, two double bedrooms, one currently used as a second reception room with floor to ceiling windows flooding the room with plenty of natural light and modern shower room. Outside of the property has private gated communal area and access to the beach.
Video
Property Location
Mortgage Calculator
Contact Agent
Contact Carolyn Edgar Homes
Request More Information
Requesting Info about...
Apt 6 , Whitkirk House, 27 Main Street, Ballywalter, BT22 2PQ
By registering your interest, you acknowledge our Privacy Policy
By registering your interest, you acknowledge our Privacy Policy