4 Bed Detached House
38 Forthaven
Ballyrobert, BT39 9GU
offers over
£389,950
Key Features & Description
Impressive Family Detached
Four Bedroom; Four+ Reception
Sun Lounge
Kitchen With Informal Dining Area
Utility Room; Furnished Cloakroom
Deluxe Bathroom; En Suite Shower Room
Oil Heating; PVC Double Glazing
Private Driveway
Garden Room/Bar
Large, Fully Enclosed Rear Garden
Description
Immaculately presented, spacious, four bedroom/four+ bedroom, detached family home with matching detached garage (converted to garden room), occupying a prime, corner site, within the well sought after Forthaven development, Ballyrobert village, Ballyclare.
The property comprises entrance hall, furnished cloakroom, lounge, study, family room, sun lounge, kitchen with informal dining area, utility room, four well-proportioned bedrooms, to include principal en suite, and separate deluxe family bathroom.
Externally, the property enjoys private driveway, matching detached garage (converted to garden room/bar), and large, fully enclosed rear garden.
Other attributes include oil heating and PVC double glazing.
Early viewing highly recommended.
Immaculately presented, spacious, four bedroom/four+ bedroom, detached family home with matching detached garage (converted to garden room), occupying a prime, corner site, within the well sought after Forthaven development, Ballyrobert village, Ballyclare.
The property comprises entrance hall, furnished cloakroom, lounge, study, family room, sun lounge, kitchen with informal dining area, utility room, four well-proportioned bedrooms, to include principal en suite, and separate deluxe family bathroom.
Externally, the property enjoys private driveway, matching detached garage (converted to garden room/bar), and large, fully enclosed rear garden.
Other attributes include oil heating and PVC double glazing.
Early viewing highly recommended.
Rooms
ACCOMMODATION
ENTRANCE HALL
Hardwood, panelled front door with matching double glazed side screens and fanlight over. Tiled floor. Feature height ceiling continuing throughout remainder of property. Stairwell to first floor.
FURNISHED CLOAKROOM
Contemporary, white, two piece suite comprising vanity unit and WC. Splashback tiling to sink. Tiled floor. Access to under stairs store.
LOUNGE 16'4" X 11'8" (4.98m X 3.57m)
Open fire in cast iron fireplace with granite hearth and contrasting surround. Timber flooring.
STUDY 11'8" X 10'4" (3.58m X 3.17m)
FAMILY ROOM 11'8" X 11'5" (3.57m X 3.49m)
Cast iron, wood burning stove on granite hearth. Tiled floor. Open arch leading to:
KITCHEN WITH INFORMAL DINING AREA 18'0" X 9'10" (5.50m X 3.00m)
Luxury fitted kitchen with range of high and low level storage units with contrasting solid quartz worktop. Matching breakfast bar area. Ceramic sink. Recess for range style oven with extractor hood over. Space for American style fridge freezer. Integrated dishwasher. Built in wine rack. Splashback tiling to range area. Tiled floor. Open arch to:
SUN LOUNGE 10'4" X 10'3" (3.17m X 3.14m)
Dual aspect windows. PVC double glazed French doors leading to rear garden. Tiled floor.
UTILITY ROOM 7'1" X 5'7" (2.17m X 1.72m)
Range of fitted storage units with contrasting melamine work surface. Stainless steel sink unit with draining bay. Plumbed and space for washing machine. Splashback tiling to wall. Tiled floor. PVC double glazed door to driveway.
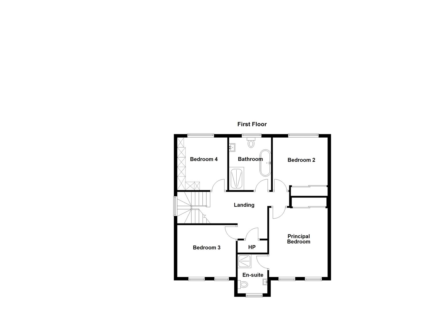
FIRST FLOOR
LANDING
Access to shelved hot press. Access to partially floored open truss roof space with strengthened joists (ready for conversion, subject to necessary checks and approval).
PRINCIPAL BEROOM 13'10" X 11'4" (plus wardrobe space) (4.24m X 3.47m (plus wardrobe space))
Fitted wardrobes in mirror and glass panelled sliding doors.
DELUXE EN SUITE SHOWER ROOM
Contemporary, white three piece suite comprising fully tiled shower enclosure, floating vanity unit and WC. Thermostat controlled main shower unit with drench shower head. Splashback tiling to sink. Chrome towel radiator. Tiled floor.
BEDROOM 2 10'11" X 10'5" plus wardrobe space (3.34m X 3.18m plus wardrobe space)
Fitted wardrobes in mirror and glass panelled sliding doors.
BEDROOM 3 11'8" X 10'4" (3.58m X 3.17m)
BEDROOM 4 10'4" X 9'4" (3.15m X 2.87m)
Comprehensive range of fitted wardrobes and storage.
DELUXE BATHROOM
Contemporary, white, four piece suite comprising free standing bath, separate oversized shower enclosure, floating vanity unit and WC. Thermostat controlled main shower unit with drench shower head. Part tiling to walls. Chrome towel radiator. Tiled floor.
EXTERNAL
Generous sized private driveway area finished in decorative stone.
Front garden finished in lawn.
External lighting.
PVC soffits, fascia and rainwater goods.
Electric car charging point.
Generous sized rear garden finished in lawn, paved patio areas and decorative stone.
PVC oil storage tank.
Front garden finished in lawn.
External lighting.
PVC soffits, fascia and rainwater goods.
Electric car charging point.
Generous sized rear garden finished in lawn, paved patio areas and decorative stone.
PVC oil storage tank.
DETACHED GARAGE (CONVERTED TO GARDEN ROOM) 14'7" X 9'11" (4.45m X 3.03m)
Fitted bar unit. Exposed brick feature walls. Power and light. Wood laminate floor covering. PVC double glazed window and matching French doors leading to rear garden.
IMPORTANT NOTE TO ALL POTENTIAL PURCHASERS
Every care has been taken with the preparation of these particulars, but complete accuracy cannot be guaranteed. If there is any point, which is of particular importance to you, please obtain professional confirmation. Alternatively, we will be pleased to check the information for you. All measurements quoted are approximate. The Fixtures, Fittings & Appliances have not been tested and therefore no guarantee can be given that they are in working order. Photographs are reproduced for general information and it cannot be inferred that any item shown is included in the sale.
Broadband Speed Availability
Potential Speeds for 38 Forthaven
Max Download
10000
Mbps
Max Upload
10000
MbpsThe speeds indicated represent the maximum estimated fixed-line speeds as predicted by Ofcom. Please note that these are estimates, and actual service availability and speeds may differ.
Property Location
Mortgage Calculator
Contact Agent
Contact Colin Graham Residential
Request More Information
Requesting Info about...
38 Forthaven, Ballyrobert, BT39 9GU
By registering your interest, you acknowledge our Privacy Policy
By registering your interest, you acknowledge our Privacy Policy